MITTO – Boniswil

Gewerbehaus im Mitteldorf

Boniswil besitzt mit der charakteristischen Stellung der Bauten zur geschwungenen Seengerstrasse und den ehemaligen Bauernhäusern im Oberdorf und der Kappelen noch ein Dorfbild, das diesen Namen verdient.

Unser Neubau ersetzt ein volumengeschütztes Objekt, das ortsbildprägend an der Kreuzung Seenger- und Seetalstrasse den Strassenraum fasst. So ordnet sich der Neubau bezüglich Proportionen und Form in die gewachsene Bebauung ein.

Als Referenz an den ehemaligen Bau sind die Stirnfassaden fast geschlossen gehalten und mit einem gestockten Beton in Anlehnung an die bestehende geschichtete Steinfassade ausgeführt.

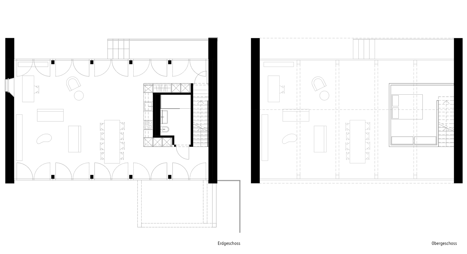
Der Innenraum lebt von der Dachkonstruktion, die sich in einer eleganten Abfolge von Portiken zeigt.

Mit einer Küche und einer Nasszelle, lässt das Gebäude sowohl Wohn- als auch Gewerbenutzung zu.

Die Längsfassaden sind verglast, so dass der Innenraum sich auf eine grosse rückseitige Terrasse erweitert.

 

Auftraggeber:privat
Fotografie: Goran Potkonjak
Fotografie: Goran Potkonjak
Fotografie: Goran Potkonjak
Fotografie: Goran Potkonjak
Fotografie: Goran Potkonjak
Fotografie: Goran Potkonjak
Fotografie: Goran Potkonjak
Fotografie: Goran Potkonjak
Situationsplan
Erdgeschoss / Obergeschoss