GRELL – Grellingen

Wohnüberbauung

In zentraler Lage entwickelt Husistein & Partner im Auftrag der Forleo AG eine Wohnüberbauung. Die Herausforderungen der bislang unbebauten Parzelle – eine steile Hanglage sowie der Nordausrichtung des Hanges – werden geschickt genutzt, um eine attraktive Überbauung mit Weitblick und guter Belichtung zu schaffen.

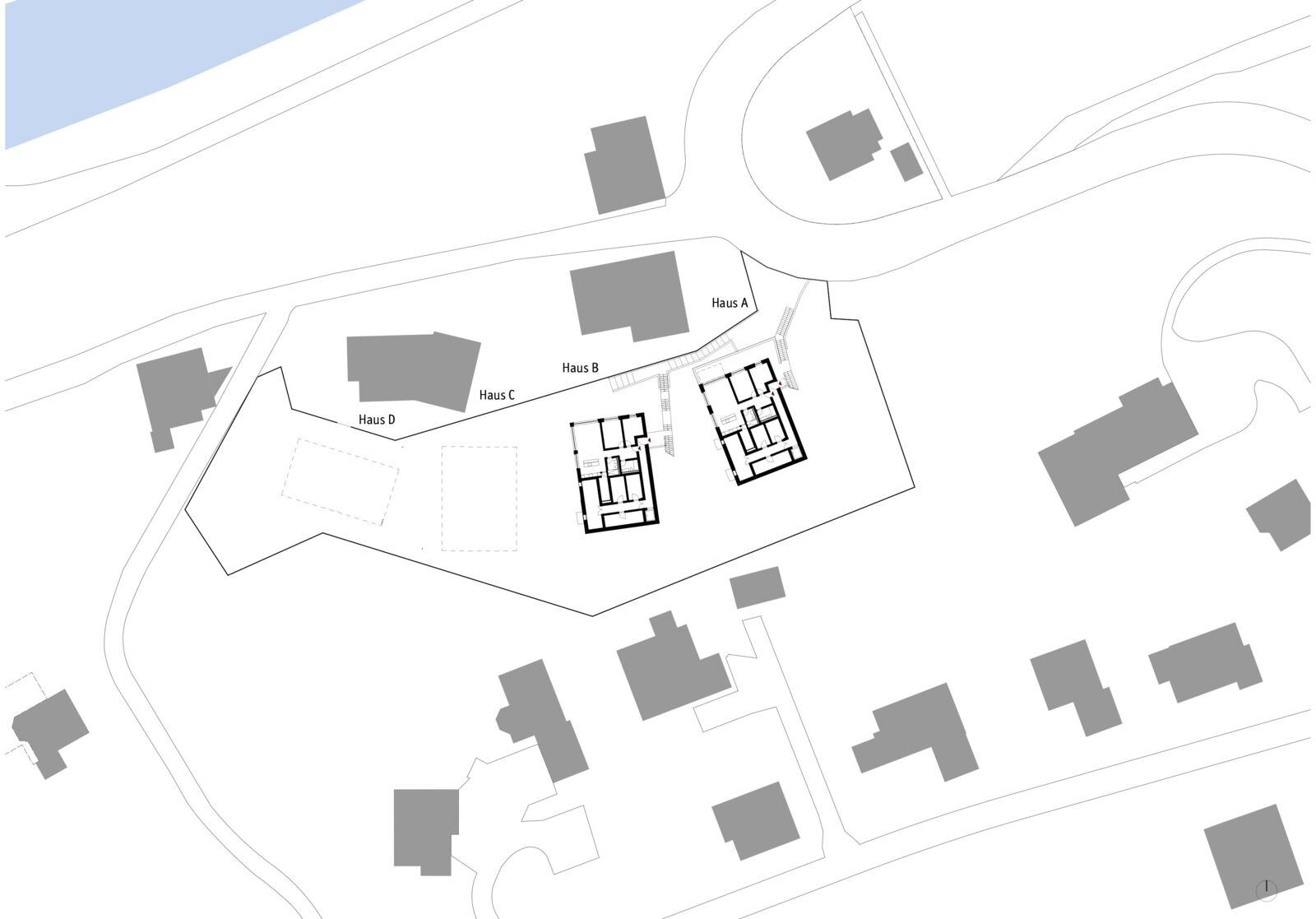
Das Projekt nutzt die zentrale Lage und besetzt mittels baulicher Verdichtung die Leerstelle im ansonsten bebauten Ortsgefüge.

Vier schmale Baukörper werden so in den Hang gesetzt, dass die Hangsituation weiterhin gut erlebbar bleibt. Die Bauten sind abgetreppt konzipiert, so dass sie dem Hangverlauf folgen und diesen nachbilden. Mittels Abdrehung und Abstufung nutzen die Bauten die Platzverhältnisse der konischen Parzellenform optimal aus.

In der Regel entspricht jede der terrassierten Stufen einer Wohneinheit, nur die Attikageschosse werden als Teil von Maisonettewohneinheiten genutzt. Im kleinsten der vier Baukörper werden zwei Wohnungen Platz finden.

Alle Wohnungen sind an eine gemeinsame Einstellhalle angebunden, wobei jede Einheit barrierefrei mit Lift erreichbar ist. Darüber hinaus gibt es individuelle Zugänge über eine jeweils östlich des Gebäudes liegende Aussentreppe. Jeder Wohnung ist ein Aussenraum in Form einer Loggia oder einer grosszügigen Terrasse zugeordnet.

Neben der Ausarbeitung des Bauprojektes begleiten wir das Quartierplanverfahren.

Auftraggeber:Forleo Immobilien und Entwicklungs AG, Zürich
Visualisierung www.swissinteractive.ch
Visualisierung www.swissinteractive.ch
Schwarzplan
Situationsplan
Situationsplan Ebene 2
Ebene 1
Ebene 2
Ebene 3
Ebene 4
Ebene 5
Ebene 0
Ansicht Nord
Ansicht Ost
Ansicht Süd
Ansicht West
Querschnitte
Längsschnitt Haus A
Längsschnitt Haus B
Längsschnitt Haus C
Längsschnitt Haus D
Materialisierung