KING – Egerkingen

Wohnüberbauung Holenbaumacker

Die nach Südwesten orientierten Gebäude schliessen die gebaute Siedlungsstruktur ab und bilden einen Übergang zur angrenzenden Landwirtschaftszone.

Im Osten werden die Gebäude über ein differenziertes Wegenetz erschlossen, welches an die bestehende Infrastruktur anschliesst und diese ergänzt.

Die grosszügigen Gemeinschaftsflächen mit gedecktem Pavillon bieten den Bewohnern Raum für gemeinschaftliche Aktivitäten. Im Westen befinden sich die privaten Aussenbereiche der Erdgeschosswohnungen. Einzelne hochstämmige Bäume vermitteln zwischen den landwirtschaftlich genutzten Feldern und den Gärten der Wohnungen.
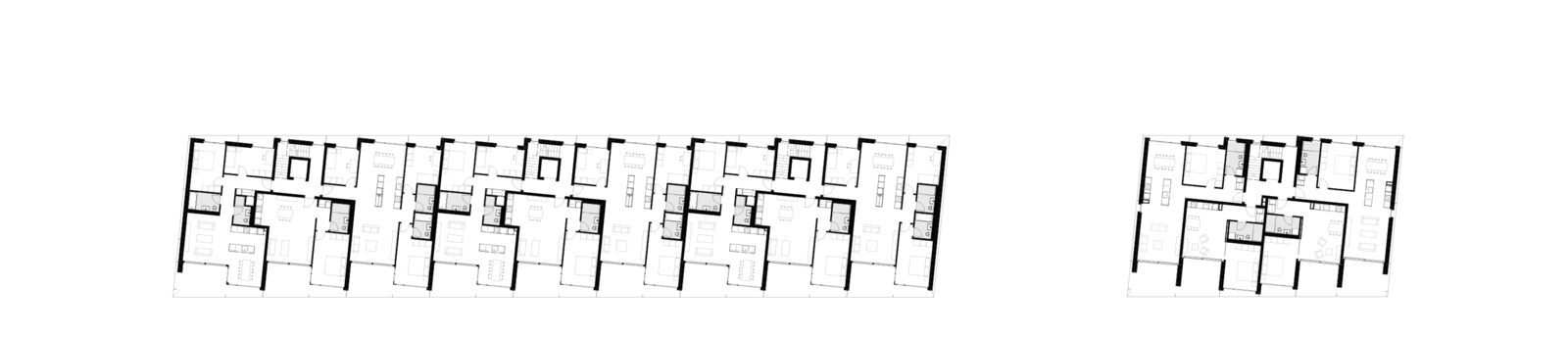
Zwei dreispännig organisierte Mehrfamilienhäuser bieten insgesamt Platz für 34 Mietwohnungen. Die 2.5 Zi – bis 4.5 Zi Wohnungen wenden sich von der Strasse ab und orientieren sich zur nahegelegenen Jurakette.

Die feinen Versätze der einzeln ablesbaren Wohneinheiten gliedern die Volumen, sorgen für Privatsphäre und generieren gleichzeitig die privaten Aussenräume.

https://www.corpora.swiss/de/projekte/king

Auftraggeber:Corpora Immobilien AG, Aarau
Fotografie Goran Potkonjak
Fotografie Goran Potkonjak
Fotografie Goran Potkonjak
Fotografie Goran Potkonjak
Fotografie Goran Potkonjak
Fotografie Goran Potkonjak
Fotografie Goran Potkonjak
Fotografie Goran Potkonjak
Fotografie Goran Potkonjak
Fotografie Goran Potkonjak
Fotografie Goran Potkonjak
Fotografie Goran Potkonjak
Fotografie Goran Potkonjak
Fotografie Goran Potkonjak
Fotografie Goran Potkonjak
Fotografie Goran Potkonjak
Fotografie Goran Potkonjak
Schwarzplan
Umgebungsplan
Obergeschoss
Attikageschoss
Querschnitt Haus Nord