MAN – Schlieren

Studie Wohnen- und Dienstleistung

Das MAN-Areal liegt - durch Bernstrasse und Badenerstrasse begrenzt - in einem Gürtel grossmassstäblicher Bauten. Untergeordnet bestehen einzelne Wohneinheiten, von einem eigentlichen Wohnquartier kann heute jedoch nicht gesprochen werden. Mit der geplanten Aufwertung der Verbindung nach Unterengstringen («Stadtentwicklung Schlieren») übernimmt das Areal einen wichtigen Brückenschlag. Die Positionierung an der Ecke Engstringer- und Bernstrasse macht das zukünftige Gebäude zum wichtigen Zeichen zwischen dem Dorfzentrum und dem Zelgli-Quartier. Im Rahmen der Stadtentwicklung soll im Einmündungsbereich der Rütistrasse die Adresse für das Wohnquartier etabliert werden. Der Ort ist gut besonnt, verfügt nach Norden über eine schöne Aussicht, unterliegt jedoch durch die Engstringer- und insbesondere die Bernerstrasse einer hohen Belastung.

Auftraggeber:Implenia
Modellfoto
Ansicht
Schwarzplan
Modellfoto
Modellfoto
Regelgeschoss
Ansicht
Grundriss Erdgeschoss mit Umgebung
Skizze
Visualisierung
Visualisierung
Visualisierung
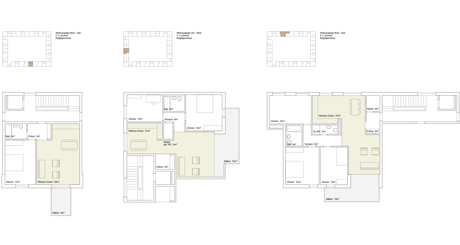
Wohnungsschema
Typengrundrisse