ROMB – Rombach

Wohnen gleichwertig unterschiedlich

Wie schafft Nähe zum Nachbar das Gefühl im Erleben ein grösseres Haus zu besitzen?

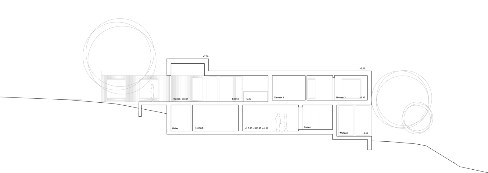
Unter einem Dach liegend, etablieren die beiden Hausteile eine individualisierte Wohnform: Wohnen auf einem Geschoss und Wohnen auf zwei Geschossen. Den Eigentümern gehört nicht ein "halbes" Haus sondern ein Teil der villa-artigen Bebauung. Die Gebäudeteile zonieren den Aussenraum zu je eigenen, intimen Bereichen. Die Materialisierung verfolgt unter dem engen Kostenrahmen das Konzept "Raum vor Oberfläche". Die Materialwahl lässt sich auch im Innenraum ablesen: die so ausgezeichneten Körper unterscheiden zwischen offenem Wohnen und geborgenem Schlafen.

Auftraggeber:privat
Skizze
Schema
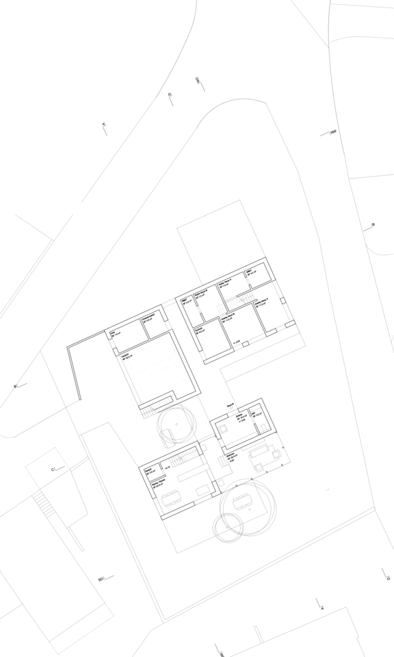
Situationsplan
Schnitt
Perspektive
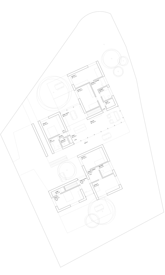
Erdgeschoss
Perspektive
Perspektive
Perspektive
Ansicht Nord-Ost
Modellfoto
Historische Karte 1994
Obergeschoss
Modellfoto
Skizze