GUETLI – Zofingen

Wohn- und Gewerbeüberbauung Untere Grabenstrasse

Das Areal Güetli liegt im eigentlichen Kernbereich Zofingens, in unmittelbarer Nähe zur Altstadt. Es ist durch die SBB-Linie im Westen, die Untere Grabenstrasse im Osten, die Henzmannstrasse im Süden und die Funkenstrasse im Norden begrenzt. Für das Areal wurde ein Gestaltungsplan erstellt, dieser basiert aufgrund der sehr unterschiedlichen Interessen der Grundeigentümer, nicht auf einem konkreten, parzellenübergreifenden Bebauungskonzept.
Aufgrund der zentralen und städtebaulich prominenten Lage, gegenüber der historischen Stadtmauer, besteht ein grosses öffentliches Interesse an einer optimalen Entwicklung innerhalb dieses Schildes und einer guten Integration in den Kontext der Bauten und Nutzungen im näheren Umfeld.
Anstelle eines ehemaligen Bankgebäudes auf einer Parzelle sollen hier auf zwei Parzellen zwei mehrstöckige Gebäude erstellt werden, welche im Untergrund über eine Tiefgarage sowie im Erdgeschoss und 1. Obergeschoss miteinander verbunden sind.
Die städtebauliche Setzung reagiert auf die Nähe der Altstadt, schliesst die jetzige Baulücke und führt die prägende Flucht entlang der Unteren Grabenstrasse weiter. Der nördliche Gebäudeteil nimmt mit drei Vollgeschossen die Höhe der bestehenden Nachbargebäude auf. Durch den ein Geschoss höheren südlichen Gebäudeteil wird ein Akzent gegenüber der Kreuzung respektive zur Verbindung zur Altstadt, dem Hellmühleeingang, gesetzt und zur Unteren Grabenstrasse hin ergänzen wir mit Vorgärten das städtebauliche Konzept. Die aufgelöste, vertikal und horizontal gegliederte Fassadengestaltung verleiht dem Gebäude einen städtischen Charakter.

Auftraggeber:Baugesellschaft Guetli c/o Wetter Immobilien AG
Ansicht Ost Haus B und Haus A
Schwarzplan
Umgebungsplan
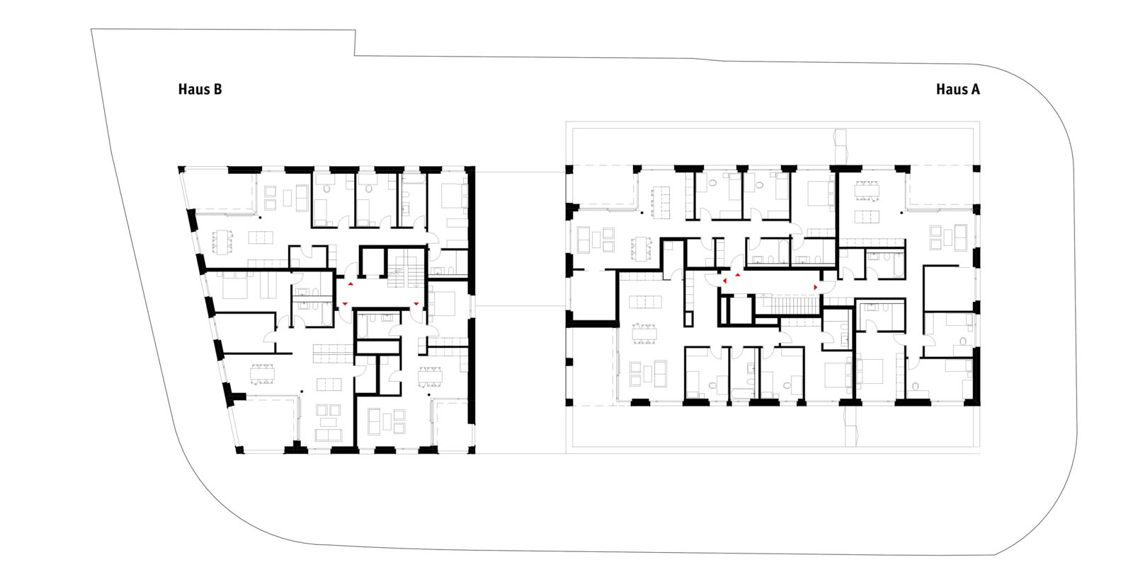
Erdgeschoss Haus B und Haus A
1. Obergeschoss Haus B und Haus A
2. Obergeschoss Haus B und Haus A
3. Obergeschoss Haus B und Attika Haus A
Attika Haus B
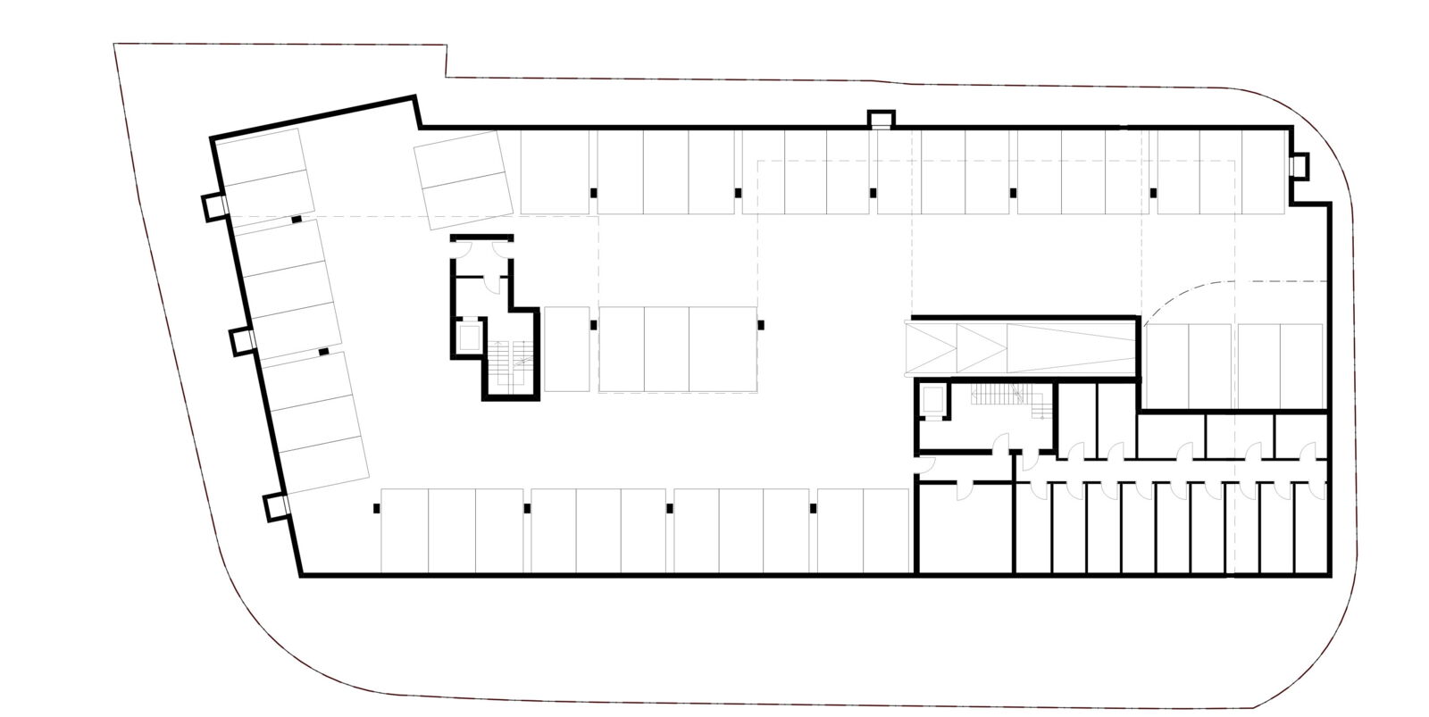
1. Untergeschoss
2. Untergeschoss
Ansicht Nord Haus A
Ansicht Ost Haus B und Haus A
Ansicht Süd Haus B
Ansicht West Haus A und Haus B
Längsschnitt
Querschnitt Haus A
Querschnitt Haus B
Modellfoto