SAELI – Olten

Überbauung an der Fustlighalde

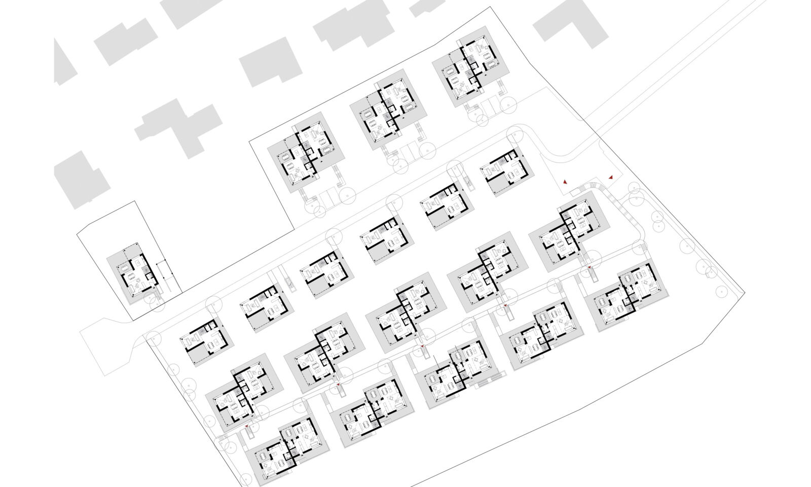
Auf dem Fustligfeld in Olten planen wir eine neue Siedlung mit 13 Doppelfamilienhäusern und 7 Einfamilienhäusern im Eigentum. Das 15‘486 m2 grosse Grundstück auf der Parzellen 722 und 6837 ist geprägt durch eine Hanglage. Hangseitig, im Süden wird das Grundstück begrenzt durch den Fustligweg und den anschliessenden Säliwald. Talseitig, gegen Norden, öffnet sich der Blick über die Stadt Olten. Die Häuser sind gegliedert in vier Reihen, die parallel zum Hang laufen.

Die Häuser sind zweigeschossig und verfügen über ein Attikageschoss. Im Erdgeschoss befinden sich der offene Koch- / Essbereich mit angegliedertem Sitzplatz und der zweigeschossige Wohnbereich. Damit wird ein räumlicher Bezug geschaffen zum Obergeschoss mit den Zimmern und einer Galerie. Das Attikageschoss mit grosszügiger Terrasse dient als Masterbedroom mit Ankleide und Bad.

Die Häuser werden in Massivbauweise erstellt, mit Fassaden in Klinker. Es ist vorgesehen, die Fassaden so zu gestalten, dass die Siedlung einen einheitlichen Ausdruck erhält.

https://www.corpora.swiss/de/projekte/saeli.pdf]

Auftraggeber:Corpora Immobilien AG, Aarau
Visualisierung www.obra.ch
Visualisierung www.obra.ch
Visualisierung www.obra.ch
Visualisierung www.obra.ch
Schwarzplan
Umgebungsplan
Luftaufnahme
Ansicht Nord
Ansicht Ost
Ansicht Süd
Ansicht West
Erdgeschoss
1. Obergeschoss
Attikageschoss
Dachaufsicht
Materialisierung