BONI – Boniswil

Neubau von drei Mehrfamilienhäuser

Das Areal Seetalstrasse 50 liegt am Rande von Boniswil, in einer sehr ländlich geprägten und heterogenen Umgebung, aufgrund der Mischung aus Wohn- und Gewerbenutzung. Das Areal wird nordöstlich durch die Seetalstrasse und südwestlich durch die Eisenbahnlinie der SBB begrenzt. Über die Bahngeleise im Süden schaut man hinaus auf weitläufige landwirtschaftliche Flächen.

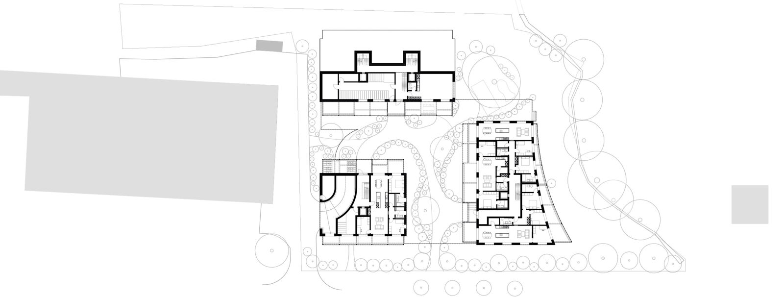
Unsere Konzeption sieht drei freistehende Mehrfamilienhäuser mit unterschiedlichen Volumen und einer gestaffelten Bauhöhe vor. Die Gebäude werden längs der Parzellenränder zu Bachlauf, Bahnlinie und Seetalstrasse platziert. So entsteht ein Gebäudeensemble, das sich um einen mittigen Hofraum gruppiert und allseitig von einem grüngestaltetem Aussenraum umgeben ist. Durch eine leicht versetzte Anordnung sollen Durchsichten aus den Wohnungen auf den Hallwilersee ermöglicht werden. Zudem schützt die Längsstellung von Haus C an der Seetalstrasse dahinterliegende Freiräume und Wohnung vor Immissionen von der Strasse.

Durch die Stellung der Kuben ergibt sich eine niedrigere Bauhöhe an der Seetalstrasse, zur Bahn hin eine höhere. Der Strassenraum der Seetalstrasse wird auf diese Weise kaum beeinträchtigt und das Bauvorhaben stimmig in die Umgebung eingepasst und mit grünen Vorgärten und Bäumen gestaltet. Alle Wohnungen sind zum zentralen, grünen Hofraum ausgerichtet.

https://www.corpora.swiss/de/projekte/boni

Auftraggeber:Corpora Immobilien AG, Aarau
Visualisierung www.obra.ch
Visualisierung www.obra.ch
Visualisierung www.obra.ch
Schwarzplan
Luftaufnahme
Umgebungsplan
Erdgeschoss
1. Obergeschoss
2. Obergeschoss
3. Obergeschoss
Dachaufsicht
Untergeschoss
Ansicht West
Querschnitt