WEIHER – Aarau

Neubau Mehrfamilienhaus mit Einstellhalle

Die beiden Grundstücke an der Weihermattstrasse liegen am südlichen Rand des Telli-Quartiers in Aarau. Das Umfeld ist geprägt durch die grosse nördlich gelegene Sportanlage sowie den bewaldeten Hang im Süden. Durch Zusammenlegung beider Grundstücke und als Arealüberbauung umgesetzt, schöpft das Projekt die baulichen Verdichtungsmöglichkeiten in dieser Lage geschickt aus.

Zusätzlich ortsspezifisch ist die Gartenseite mit aneinander gereihten Privatgärten. Sie zeichnen sich dadurch aus, dass kaum Hecken oder Mauern zwischen den Gärten den Raum verschliessen. Dieser Freiraum zeigt sich daher als zusammenhängendes grünes Band. Dieses sich zwischen Häuserzeile und Hangfuss erstreckende Gartenband wird aufgenommen und analog gestaltet. Das Kontinuum des charakteristischen Grünraumbandes kann zumindest im südlichen Abschnitt, dem Hangfuss entlang, weiterhin gesichert werden. Auch wird in der Aussenraumgestaltung darauf geachtet, dass Durchblicke zwischen den benachbarten Gartenbereichen weiterhin möglich bleiben. Um die privaten Vorräume der Erdgeschosswohnungen angemessen zu schützen ist eine lockere, durchlässige Heckenstruktur zwischen Privat- und Gemeinschaftsgarten vorgesehen.

Der Neubau reiht sich konsequent in der Flucht der benachbarten Gebäude auf und stärkt die bauliche Front diesseitig der Weihermattstrasse. Der strassenseitig kompakte Baukörper löst sich gartenseitig auf und wird gegliedert in einer sich gegen Südwesten gerichteten Staffelung. Die naturnahe Farbgebung der Fassaden fügen sich gut ins Umfeld ein, in welchem bereits heute helle bis vereinzelt braun-rötliche Töne dominieren. 

Auftraggeber:Urdo Immobilien, Hunzenschwil
Fotograf www.goranpotkonjak.ch
Fotograf www.goranpotkonjak.ch
Fotograf www.goranpotkonjak.ch
Fotograf www.goranpotkonjak.ch
Fotograf www.goranpotkonjak.ch
Fotograf www.goranpotkonjak.ch
Fotograf www.goranpotkonjak.ch
Fotograf www.goranpotkonjak.ch
Fotograf www.goranpotkonjak.ch
Schwarzplan
Umgebungsplan
Situationsplan
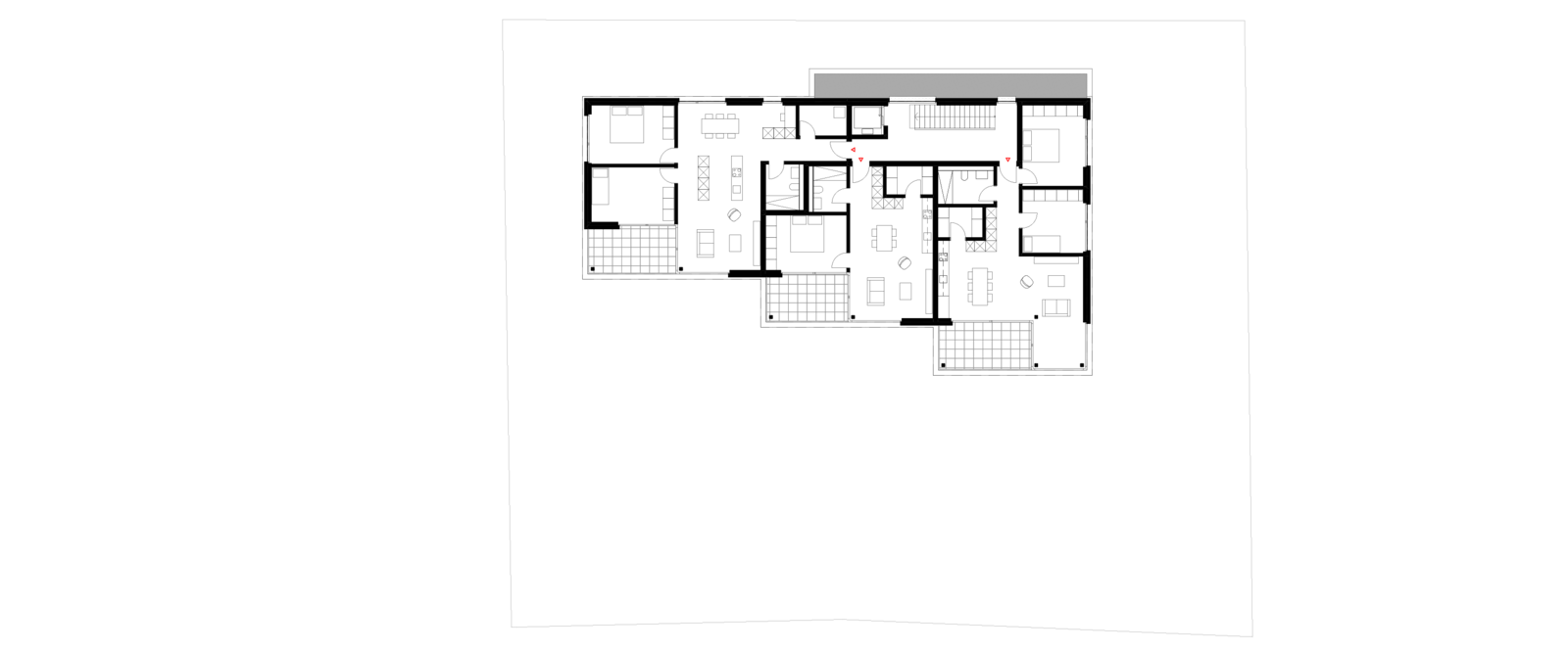
Erdgeschoss
Grundriss Obergeschoss
Attikageschoss
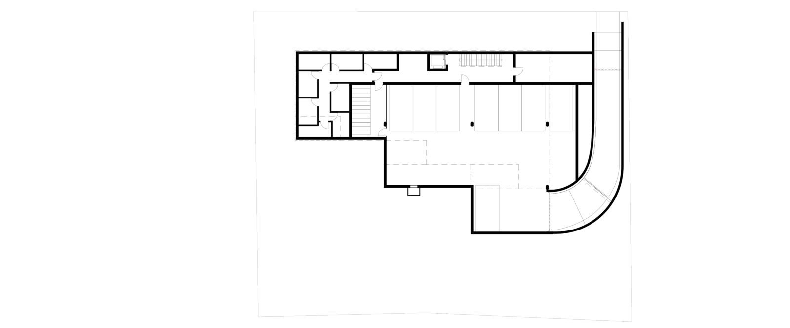
Untergeschoss
Längsschnitt
Querschnitt
Ansicht Nord
Ansicht Ost
Ansicht Süd
Ansicht West
Materialisierung