FELD – Burg

Neubau Einfamilienhaus

Konzentration auf Raumfolgen und Proportionen: Bauen mit kostengünstigen Bauteilen, klare Auslegung der Komfortansprüche.

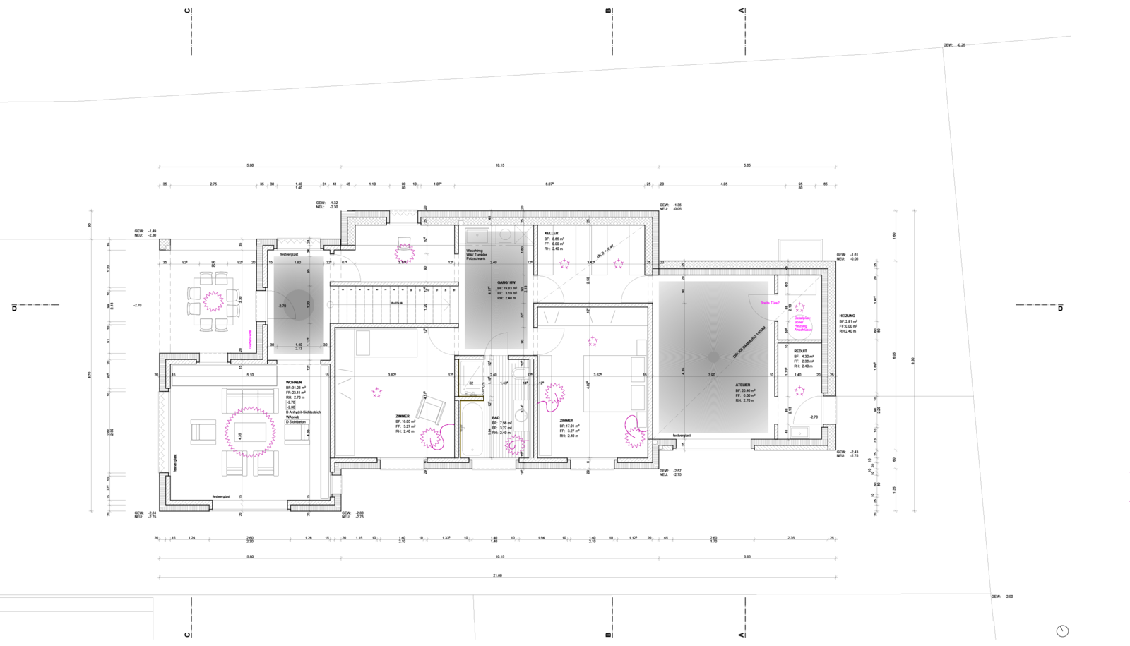
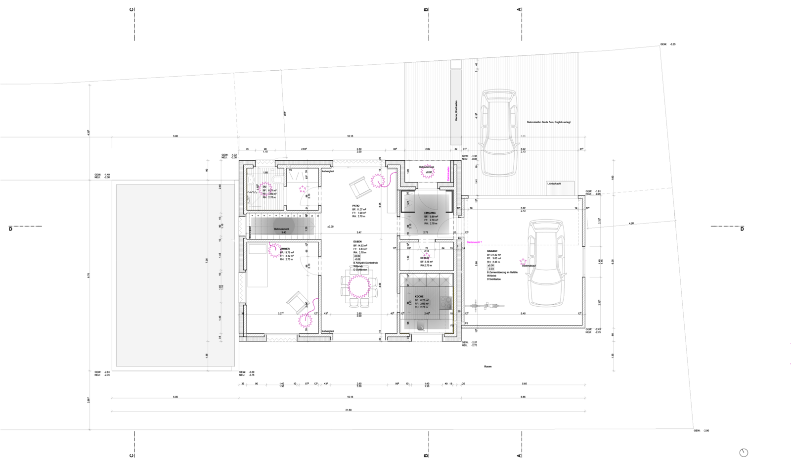
Die Strasse verläuft nahezu auf der Höhenkurve dorfauswärts. Unterhalb dieser Strasse, in einem kleinen Baumgarten, befindet sich das Grundstück. Der Entwurf sieht ein Bau, aus drei in der Höhe gestaffelten Körpern, vor welches durch seine Erscheinung die nachbarschaftlichen Gebäude vermittelt und auf die Aussichten reagiert. Im Grundriss ist eine klare Zonierung ablesbar: Tag- und Nachtnutzung, Wohn- und Schlafbereich. Das zweigeschossige Wohnhaus wird vor Ort gefertigt. Die Backstein wände werden mit einem dünnen Kalkputz geschlämmt. Der Bodenbelag ist ein Anhydrit-Sichtestrich. Die Innenraumgestaltung ist eine Neuinterpretation des handwerklich geprägten Shaker-Stils.

Auftraggeber:Privat
Fotografie: Radek Brunecky
Fotografie: Radek Brunecky
Fotografie: Radek Brunecky
Fotografie: Radek Brunecky
Perspektive
Visualisierung
Skizze
Visualisierung
Katasterplan
Fotografie
Fotografie
Modellfoto
Fotografie
Fotografie
Muster
Fotografie
Strassengeschoss
Gartengeschoss
Schnitt
Erdgeschoss mit Umgebung