ESP – Endingen

Ersatzneubau Mehrfamilienhaus

Das historische Zentrum Endingens ist am heutigen Bestand ablesbar, der Rand jedoch bruchstückhaft und aufgelöst. Aus der sorgfältigen Analyse des Kontextes entstand der Leitgedanke, den äusseren Rand des Zentrums von Endingen wieder zu stärken. Dadurch wird das Ortsbild beruhigt und historische Bezüge wiederhergestellt.

In Bezug auf die Bebauungsstruktur des Ortes schliesst das geplante Gebäudevolumen im Norden an das angrenzende Gebäude an und bildet eine Verlängerung der historischen Häuserzeile. Zur Kantonsstrasse wird ein grosszügiger öffentlicher Aussenraum geschaffen, gleichzeitig werden die privaten Aussenräume der lärmabgewandten Seite geschützt.

Volumetrische Vertiefungen in der Ostfassade bilden die, aufgrund der erhöhten Lärmbelastung der Kantonsstrasse, benötigten akustischen Massnahmen.
Die Einfahrt der Einstellhalle ist im Norden des Gebäudes vorgesehen. Dadurch wird der im Süden liegende Fussweg zur Synagoge nicht durch zusätzlichen Verkehr belastet. Die Trennung zwischen Fussgänger und motorisiertem Verkehr bleibt gewahrt.

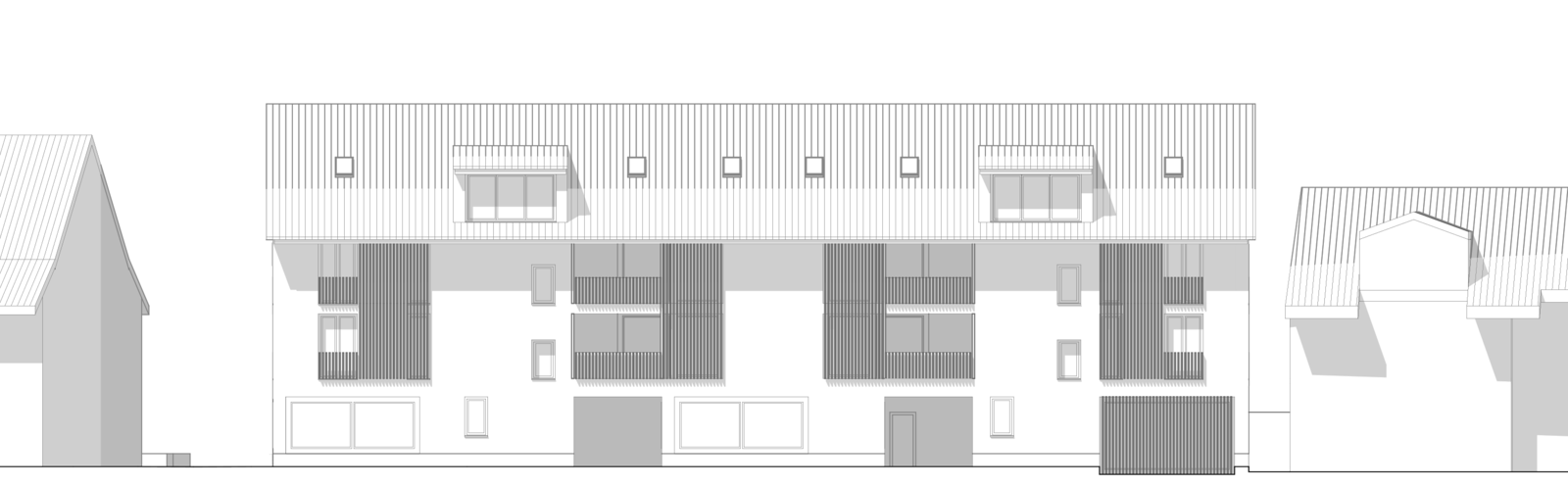
Die Dachform und die Gestaltung der Fassaden orientieren sich am Bestand, traditionelle Themen wie die Holzlaube und Lukarnen prägen den Ausdruck des Gebäudes. Die Materialisierung mit gebürstetem Verputz und Holzelementen übersetzt die historischen Themen ins Zeitgenössische.

Das in sich stimmige Projekt fügt sich respektvoll und selbstverständlich in das historische Zentrum Endingens ein.

Auftraggeber:SE Immobilien AG
Fotografie: Goran Potkonjak
Fotografie: Goran Potkonjak
Fotografie: Goran Potkonjak
Fotografie: Goran Potkonjak
Fotografie: Goran Potkonjak
Fotografie: Goran Potkonjak
Fotografie: Goran Potkonjak
Fotografie: Goran Potkonjak
Fotografie: Goran Potkonjak
Fotografie: Goran Potkonjak
Fotografie: Goran Potkonjak
Fotografie: Goran Potkonjak
Fotografie: Goran Potkonjak
Fotografie: Goran Potkonjak
Fotografie: Goran Potkonjak
Fotografie: Goran Potkonjak
Fotografie: Goran Potkonjak
Fotografie: Goran Potkonjak
Fotografie: Goran Potkonjak
Fotografie: Goran Potkonjak
Fotografie: Goran Potkonjak
Fotografie: Goran Potkonjak
Fotografie: Goran Potkonjak
Fotografie: Goran Potkonjak
Schwarzplan
Situationsplan
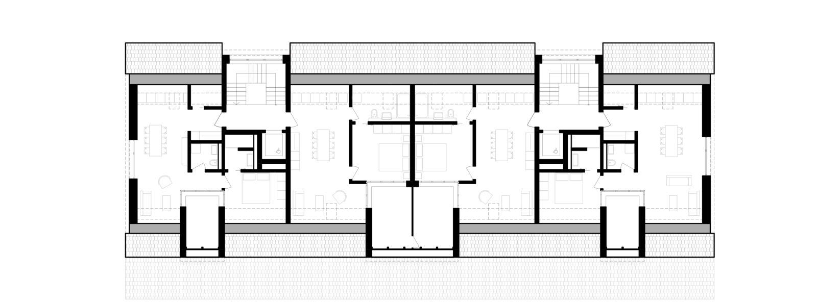
Erdgeschoss mit Umgebung
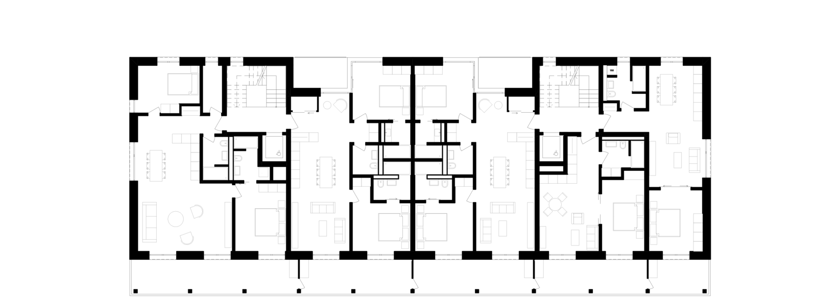
1. Obergeschoss
3. Obergeschoss
Fassade West
Fassade Ost
Schnitt 1
Schnitt 2
Baustelle August 2021, Fotografie: Goran Potkonjak
Baustelle August 2021, Fotografie: Goran Potkonjak
Baustelle Juli 2021; Fotografie: Husistein & Partner AG
Foto Referenz 1925