MUBO WW NEU – Boniswil

Mehrfamilienhaus Alte Mühle, Wettbewerb 1. Rang

Die ausserordentliche Situation im Ortszentrum, im Umfeld der denkmalgeschützten Mühle wie auch die Lage zwischen Kantonsstrassen und der neuen Seetalbahnline machte eine Sondernutzungsplanung erforderlich, die wir 2009 erarbeitet haben.

Während die denkmalgeschützte Mühle weitgehend in ihrer Struktur belassen und umgenutzt werden soll, wurde 2010 das Restaurant Ochsen abgebrochen und an seiner Stelle wird nun der Neubau erstellt.

Der Wohnbau nimmt mit seiner Geschossigkeit und der Dachlandschaft Rücksicht auf den gewachsenen Gebäudebestand. Die unterschiedlichen Charaktere und Eigenschaften des inventarisierten Gartens und des dreiseitig gefassten Hofes der benachbarten Mühle werden durch den Innenhof des Neubaus weitergestrickt.

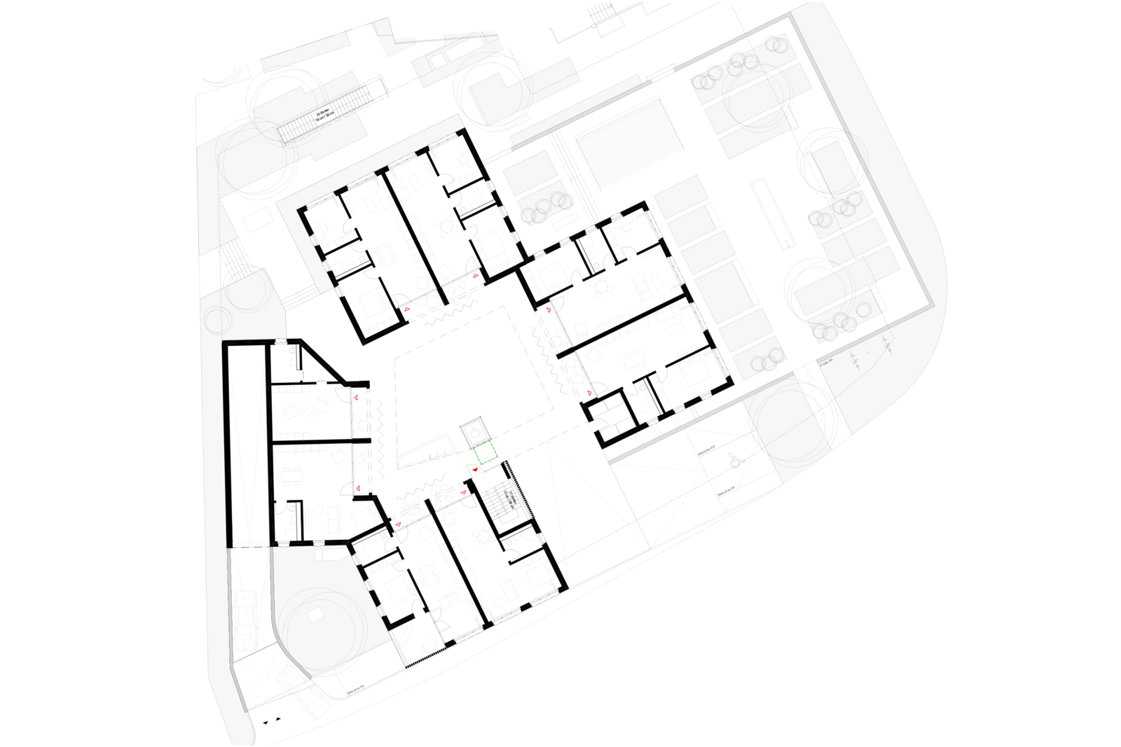
Das Bauvorhaben hat zum Ziel eine gemeinschaftlich geprägte Wohnform umzusetzen. Das zeigt sich durch die Gesamtkonzeption der Neubauten, 4 Gebäude gruppieren sich giebelständig um einen gemeinsamen Innenhof. Die Wohnungen werden über einen hofseitig liegenden Laubengang erschlossen. An diesem Laubengang sind neben den Wohnungszugängen auch die privaten Sitzplätze angeordnet. Um eine gewisse Privatheit zu schaffen werden mobile Trennelemente die gleichzeitig auch zur Verschattung dienen vor den Sitzplätzen angeboten.

Geplant sind 31 Wohnungen, die mit Klein- und Kleinstwohnungen dem Bedürfnis von Paaren, Singles und Kleinfamilien entsprechen. Für die Bewohner bestehen differenzierte Möglichkeiten zum Aufenthalt und zur Erholung in Form von privaten Sitzplätzen, gemeinschaftlichem Innenhof und dem öffentlichen Bauerngarten.

Die Fassadengestaltung bildet eine Reminiszenz an den früheren teilmechanisierten Betrieb der Alten Mühle und knüpft mit seinen stehenden Fensterformaten an diese Geschichte an.

Die geplante Umgebungsgestaltung sieht unterschiedliche Bepflanzungen, Hochstammbäume, verschiedene Bodenbeläge und Wasserbecken vor. Der Gemeinschaftsgarten orientiert sich in der Lage an dem bestehenden Garten der Alten Mühle und lehnt sich an die Gestaltung alter Bauerngärten an. Umgesetzt wird dies mit den geplanten Beeten (Gemüse, Obststräucher, Blumen) und mehrstämmigen Solitärsträuchern. Wir waren verantwortlich für den Wettbewerb sowie das Richtprojekt für den Gestaltungsplan und das Bauprojekt.

Fotografie Goran Potkonjak
Fotografie Goran Potkonjak
Fotografie Goran Potkonjak
Fotografie Goran Potkonjak
Perspektive
Perspektive
Schwarzplan
Situation
Umgebungsplan
Grundriss Erdgeschoss
Grundriss 2.Obergeschoss
Ansicht Nord
Ansicht Süd
Ansicht Ost
Ansicht West
Querschnitt Haus A
Querschnitt Haus B
Querschnitt Haus C
Querschnitt Haus D
Gesamtschnitt
Gesamtschnitt
Fassadenschnitt und Fassade Materialisierung
Fassadenschnitt und Fassade Materialisierung
Querschnitt