STATION – Embrach

Mehrfamilienhaus

Die Parzelle liegt an der Stationsstrasse 99 am nördlichen Dorfrand von Embrach, in unmittelbarer Nähe zum Bahnhof der SBB in einer heterogenen Umgebung bestehend aus grösseren und kleineren Wohnnutzungen sowie Gewerbebauten.

Unsere Konzeption sieht, aus dem Ort abgeleitet, folgende Haltung vor: Strassenseitig folgt das Volumen den Regeln seiner Nachbarschaft und reiht sich ein im Ensemble und der Abfolge der Wohnbauten entlang der Stationsstrasse. Gartenseitig und angelehnt an die ‚hängenden Gärten von Semiramis‘, treppt sich das Volumen gegen oben ab. Es ergeben sich grosszügige und variantenreiche private Aussenräume. Die Längsseite jeder Wohnung erstreckt sich parallel zum Aussenraum und so wird Innen und Aussen zu einem zusammengehörenden Ganzen.

In seiner äusseren Erscheinung und Materialisierung ist das Gebäude zurückhaltend und wertig. Die helle hinterlüftete Holzfassade und die hellen Balkone bilden den Hintergrund für den Garten der privaten Aussenräume.

https://urbangardens-embrach.ch/

https://www.corpora.swiss/de/projekte/station

Auftraggeber:Corpora Immobilien AG, Aarau
Visualisierung www.obra.ch
Visualisierung www.obra.ch
Umgebungsplan
Schwarzplan
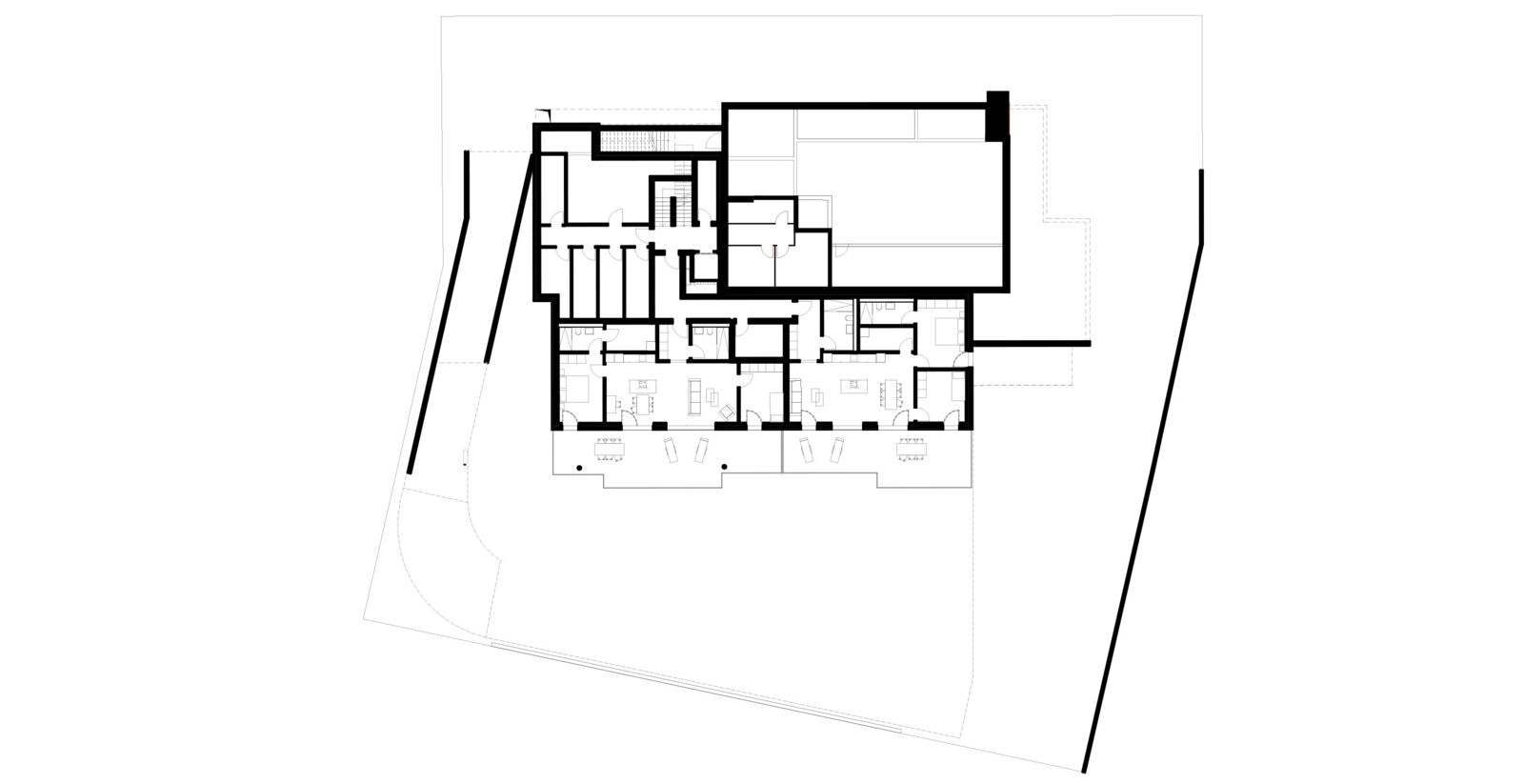
Erdgeschoss
1. Obergeschoss
2. Obergeschoss
3. Obergeschoss
1. Untergeschoss
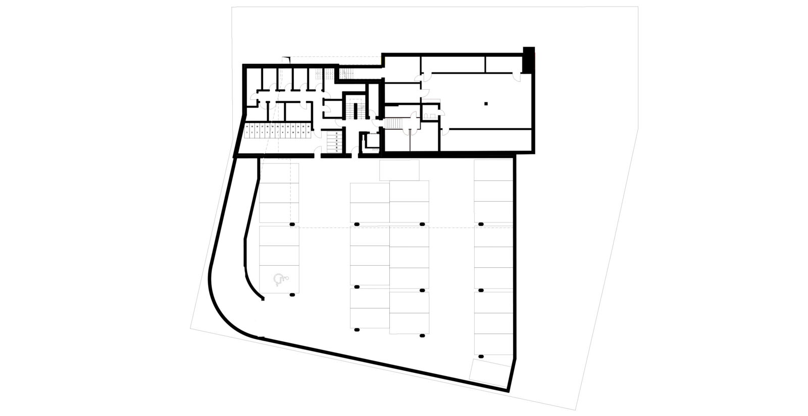
Tiefgarage
Längsschnitt
Querschnitt
Nord Ansicht
Ost Ansicht
Süd Ansicht
West Ansicht
Materialisierung