KLEIN – Kleindöttingen

Mehrfamilienhaus am Rosenweg

Das fein gegliederte Gebäude steht im Norden der Parzelle. Dadurch erlangt der Solitärbau eine besondere Präsenz im Strassenraum, da er nicht wie die Nachbargebäude von der Strasse zurückweicht, sondern bewusst in den Strassenraum hineinragt und somit eine klare Adresse bildet.

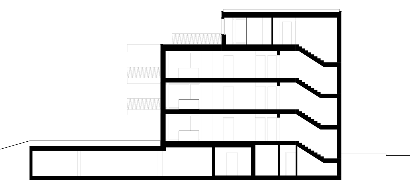
Die drei Vollgeschosse, das Attikageschoss sowie die Massnahmen zum Hochwasserschutz lassen das Gebäude im Norden turmartig in die Höhe ragen. Dieser Vertikalität werden im Süden die horizontal auskragenden Platten der Balkone gegenüber gestellt. Die Zimmer der 4 Wohnungen werden über ein vestibülartiges Entrée erschlossen, durch einen kurzen Korridor wird der Übergang in die grosszügigen nach Süden orientierten Wohn-/Essräume inszeniert.

Das mehrheitlich in weiss gehaltene Haus erfährt eine Akzentuierung durch die bronzefarbenen Fensterrahmen und Schlosserarbeiten.
In Putz ausformulierte Gewände um die Fenster betonen die Öffnungen der Fassaden.

https://www.corpora.swiss/de/projekte/klein

Auftraggeber:Corpora Immobilien AG, Aarau
Fotografie: Goran Potkonjak
Fotografie: Goran Potkonjak
Fotografie: Goran Potkonjak
Fotografie: Goran Potkonjak
Fotografie: Goran Potkonjak
Baustelle April 2017, Fotografie: Goran Potkonjak
Baustelle April 2017, Fotografie: Goran Potkonjak
Baustelle April 2017,Fotografie: Goran Potkonjak
Baustelle April 2017, Fotografie: Goran Potkonjak
Aussenraum, Visualisierung Augpunkt
Wohnung 1. OG, Visualisierung Augpunkt
Attikawohnung, Visualisierung Augpunkt
Erdgeschoss
1. Obergeschoss
Attikageschoss
Ansicht West
Längsschnitt