LOHA – Hägendorf

Loftwohnungen

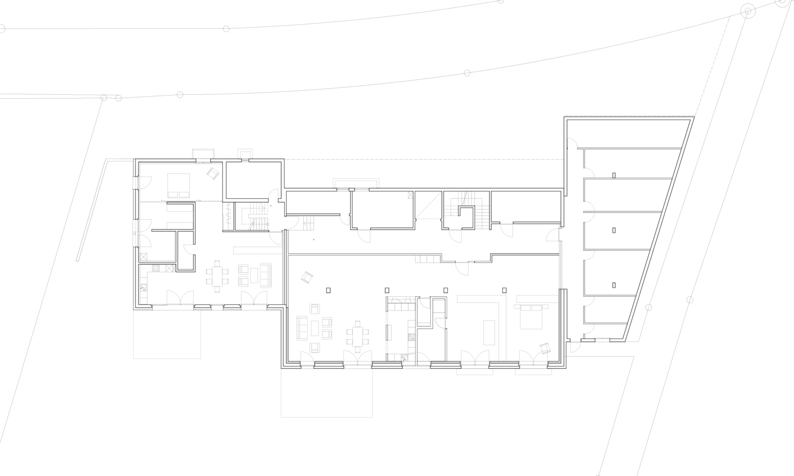
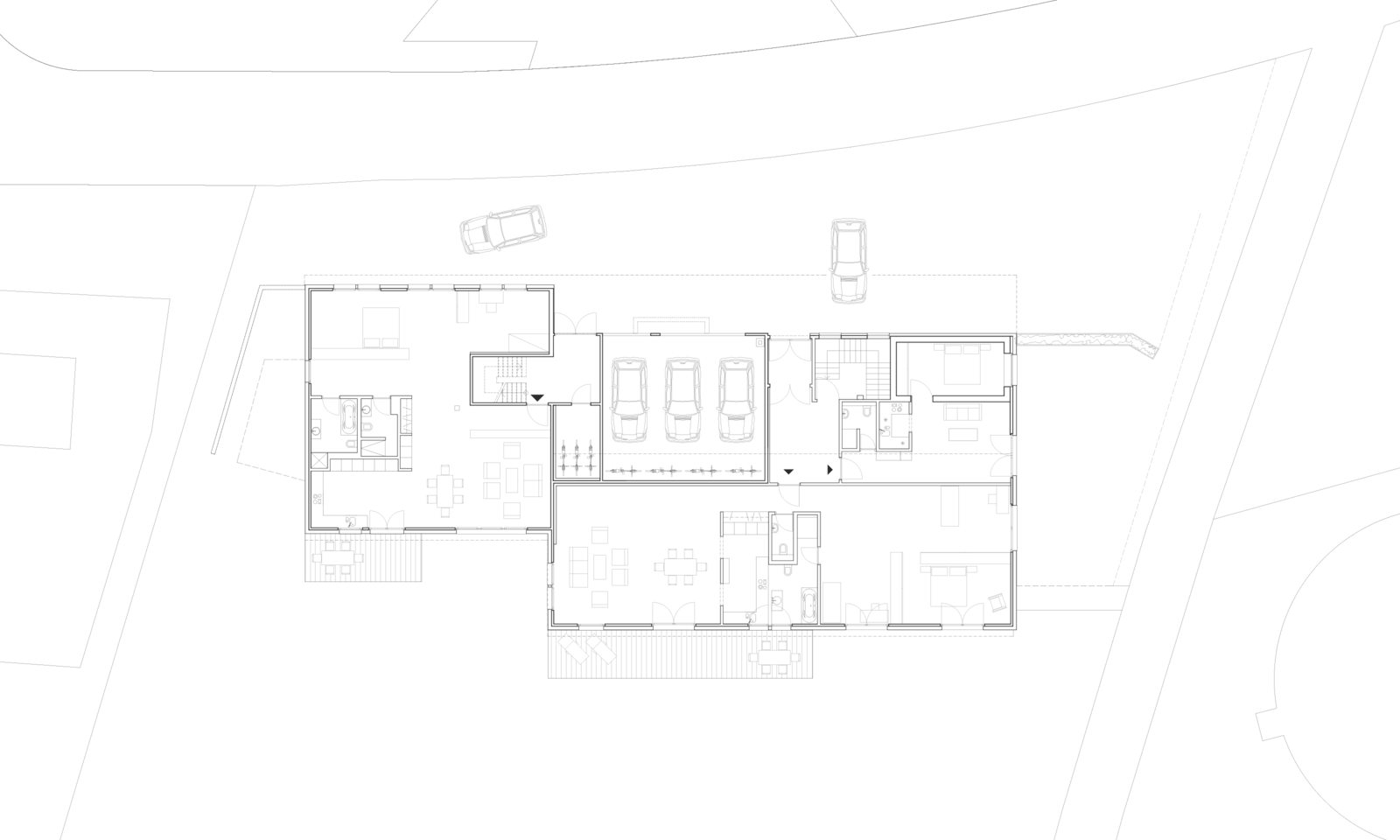
Die ehemalige Gewerbeliegenschaft mit sehr schöner Aussichtslage wird für Wohnzwecke umgenutzt.

In den bestehenden Baukörper werden 5 Loftwohnungen und 1 Kleinwohnung eingebaut; Ausmass der Eingriffe in die vorhandene Bausubstanz wird auf ein Minimum reduziert. Der raumtrennende Körper mit Nasszellen und Küche in Leichtbauweise und die vorgelagerte Balkonschicht pro Wohneinheit bilden den konzeptionellen Grundgedanken des Umbaus.

Die Wohnungen erhalten einen „lofttypischen“ Ausbaustandard; bestehende Böden werden abgeschliffen und veredelt, Wände und Decken werden weitgehend in ihrem Zustand belassen. Die homogene Farbigkeit von Boden, Wand und Decke unterstreicht die grosszügigen, kraftvollen Räume.

Auftraggeber:Privat
Fotografie: Goran Potkonjak
Fotografie: Goran Potkonjak
Fotografie: Goran Potkonjak
Fotografie: Goran Potkonjak
Fotografie: Goran Potkonjak
Fotografie: Goran Potkonjak
Innenausbauarbeiten, Stand Frühjahr 2012
Innenausbau, Stand Frühjahr 2012
Skizze
Innenausbauarbeiten, Stand Frühjahr 2012
Skizze
Dachgeschoss und Schnitt
1. Obergeschoss
Gartengeschoss
Aussicht