TEUF – Teufenthal

Neubau Mehrfamilienhaus

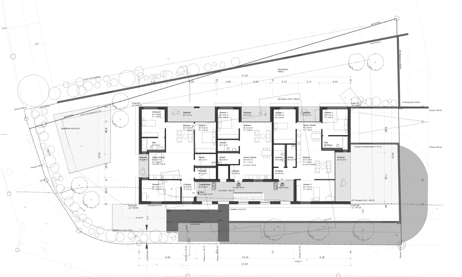
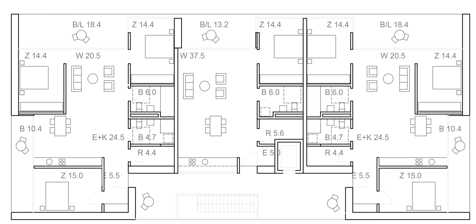
Die Parzelle befindet sich innerhalb der Dorfzone in der als Strassendorf konzipierten Gemeinde Teufenthal. Ehemals an der alten Landstrasse gelegen, bewirkt die neue Kantonsstrasse eine veränderte Position und das Grundstück rückt nun in die zweite Reihe zur Hauptverkehrsstrasse. Das bisherige EFH soll abgebrochen und hierfür ein MFH mit sechs Einheiten realisiert werden. Ziel ist es, einen unaufgeregten Baukörper zu platzieren, der sich in Grösse und Position an den bestehenden  Häusern orientiert. Die Dachflächen werden aus drei aufeinanderfolgenden Satteldächern unterschiedlicher Neigung gebildet und machen somit die Dreibündigkeit der Grundrissorganisation nach aussen lesbar. Zwei Vollgeschosse und ein Dachraum, der als Estrich und als überhöhter Wohnraum für das darunterliegende Geschoss dient, bilden den Körper in seiner Aussenwirkung. Die Erschliessung der Wohnungen erfolgt über einen offenen Laubengang, der durch seine Orientierung und Grösse als halbprivater Aussenraum dient. Die seitlichen Wohnungen verfügen über zwei, die mittleren über  einen grosszügigen Balkon. Der Gartenbereich wird durch eine mittelhohe Wand gefasst, der Privatsphäre zur angrenzenden projektierten Bebauung garantiert und zugleich die Terrainsituation löst. Ein umfassendes Grünband mit Büschen und Bäumen, die als dichtes Gründach ausgebildet werden, ermöglichen das sprichwörtliche dörfliche Wohnen im Grünen. Mit einer Hauptorientierung nach Südosten werden alle Wohnräume lange mit Sonnenschein verwöhnt und gegen Nachmittag wird die Abendsonne zum willkommenen Gast des Laubenganges. .

Auftraggeber:Privat
Modellfoto
Modellfoto
Erdgeschoss
Modellfoto
Modellfoto
Ansicht West
Erdgeschoss mit Umgebung
1. Obergeschoss
Modellfoto
Luftbild 1923
Skizze
Fotografie Bauland
Perspektive
Skizze