DAMM – Aarau

Ersatzneubau Mehrfamilienhaus im Dammquartier

Hinter dem Bahndamm im Anschluss des Schachen in Aarau erstreckt sich ein Wohn- und Gewerbequartier, das dank seiner eingeschlossenen Sackgassenlage sehr ruhig, aber dennoch zentrumsnah gelegen ist. Auf einem durch verschmutzte Böden belasteten Grundstück, wurden im Zuge der Bodensanierung die bestehenden Wohnbauten und Einzelgaragen abgebrochen und ein Ersatzneubau mit Carport und Gartensitzplatz erstellt.

Die Situation am Dammweg 5 ist für das Quartier von entscheidender Wichtigkeit: Das Gebäude fungiert als eigentliche Adressbildung des Quartiers. Durch die Unterführung des Bahndammes kommend, wird das Gebäude als erstes wahrgenommen. Der Neubau Dammweg 5 übernimmt die Setzung des bestehenden Wohngebäudes parallel zum Dammweg. Das Haus erhält dadurch eine Strassenseite und eine Garten- oder Hofseite. Das Volumen tritt zur Strasse hin viergeschossig in Erscheinung und ist so präsenter als der Bestand. Das Haus definiert sich durch drei präzise Volumensegmente, welche im Grundriss zueinander versetzt angeordnet sind. Zur Hofseite tritt das Volumen in der Höhe gestaffelt in Erscheinung und nimmt Bezug zum Terrassenhaus Dammweg 5b. Das Umgebungskonzept greift das Thema der hintereinander geschichteten Volumensegmente des Mehrfamilienhauses auf und führt sie weiter.

Die Aussenwände sind auf Wunsch der Bauherrschaft als Zweischalenmauerwerk im Minergie-P Standard mit einer Dicke von über 60 cm ausgebildet. Die Architektur des Neubaus reagiert darauf mit einer massiven und muralen Erscheinung. Der strenge und präzise Raster definiert die Strassenfassade mit der Laubengangerschliessung. Die erhöhte «Piazzetta» auf Erdgeschossniveau bildet den Übergang zwischen Fassade und Strassenraum.

Auftraggeber:Personalvorsorgestiftung der Ringier Gruppe, Zofingen
Fotografie: Goran Potkonjak
Fotografie: Goran Potkonjak
Fotografie: Goran Potkonjak
Fotografie: Goran Potkonjak
Fotografie: Goran Potkonjak
Fotografie: Goran Potkonjak
Fotografie: Goran Potkonjak
Fotografie: Goran Potkonjak
Fotografie: Goran Potkonjak
Fotografie: Goran Potkonjak
Fotografie: Goran Potkonjak
Fotografie: Goran Potkonjak
Fotografie: Goran Potkonjak
Fotografie: Goran Potkonjak
Fotografie: Goran Potkonjak
Fotografie: Goran Potkonjak
Fotografie: Goran Potkonjak
Fotografie: Goran Potkonjak
Fotografie: Goran Potkonjak
Schwarzplan
Umgebungsplan
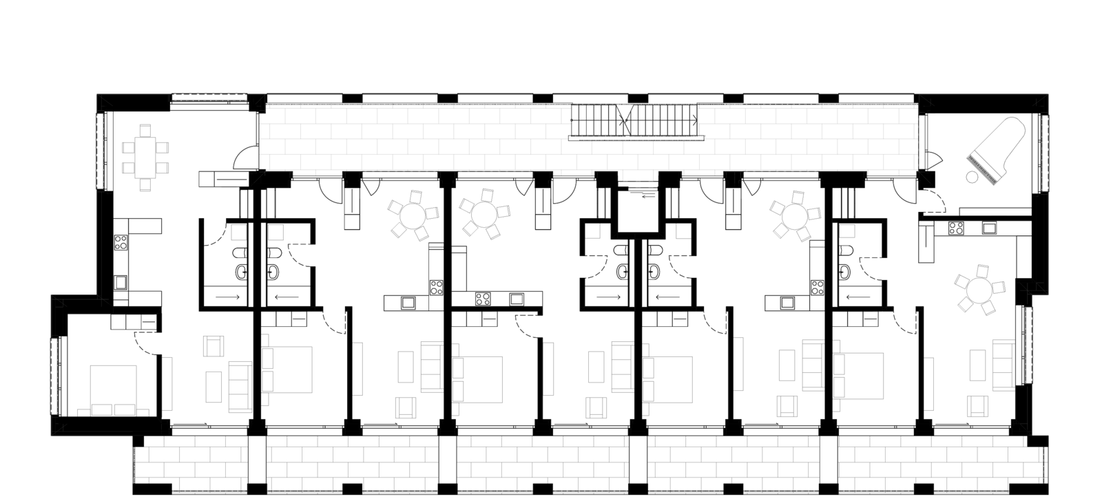
1.Obergeschoss
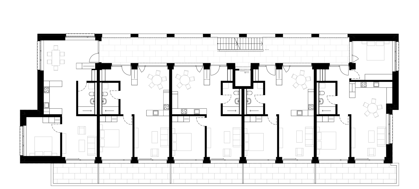
2. Obergeschoss
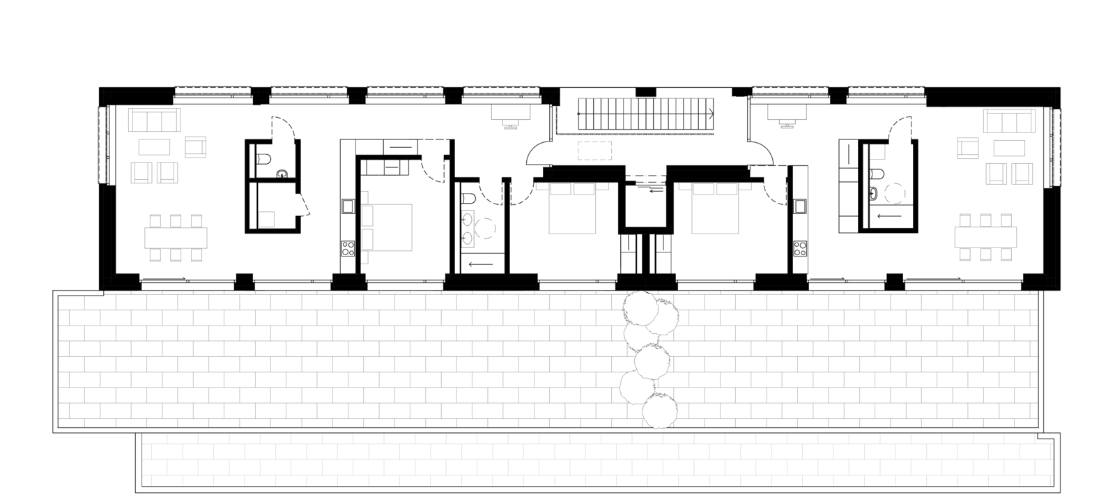
Attikageschoss
Südost Ansicht
Schnitt
Fassade Materialisierung
Fotografie: Goran Potkonjak
Fotografie: Goran Potkonjak
Fotografie: Goran Potkonjak