GÖSG – Niedergösgen

Ersatzneubau Mehrfamilienhaus

Die am östlichen Tor liegende Kernzone formt sich mit vielen kleinen Läden entlang der Hauptstrasse. Die Parzelle ist in Kern- und W3-Zone geteilt. Das bestehende Haus bleibt Bestandteil der Strassenzeile und im ruhigen Raum dahinter entsteht ein zweigeschossiges Volumen mit Satteldach. Anstelle der typischen Kreuzquergiebeln prägen grosse, flache Dachgauben das Dach. Sie werden zueinander versetzt angeordnet.

Das Dach geht flächenbündig in die Fassade über. Es läuft über die Trauflinie in die Fassadefläche. Dach und Fassade bilden somit eine Einheit, die kubische Wirkung des Volumens wird gestärkt. Die einheitliche Farbgebung von Dach und Fassade unterstützt dies zusätzlich. Das gesamte Gebäude wird in einem hellen Bronzeton gehalten und passt sich damit gut in die Umgebung ein. Die versetzten Fenster betonen die Horizontalität und tragen dazu bei, dass das Gebäude als ein kompakter Kubus wahrgenommen wird.

Die Erschliessung der Parzelle ab der Hauptstrasse ist gewährleistet; östlich  für den Individualverkehr und westlich für den Langsamverkehr.

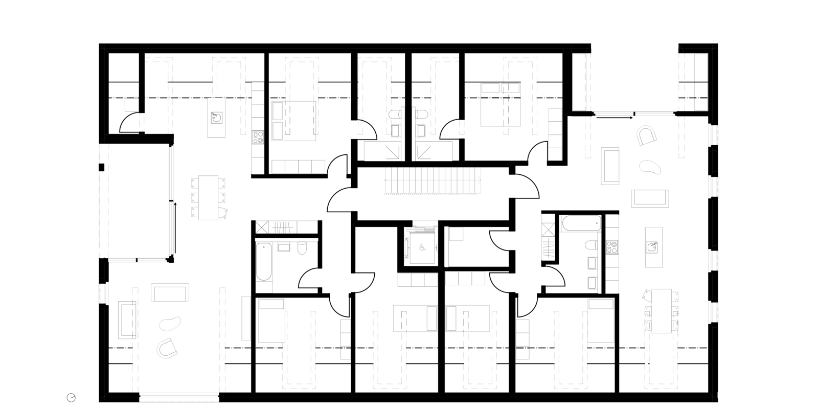
Das Mehrfamilienhaus ist dreispännig organisiert und bietet insgesamt 8 Eigentumswohnungen. Die 3.5 Zi – 4.5 Zi Wohnungen erhalten mindestens eine zweiseitige Besonnung. Die eingezogenen Loggien gewährleisten trotz der höheren Dichte in der Kernzone einen privaten Aussenraum.

Auftraggeber:Maier Partner GmbH
Fotografie: Goran Potkonjak
Fotografie: Goran Potkonjak
Fotografie: Goran Potkonjak
Fotografie: Goran Potkonjak
Fotografie: Goran Potkonjak
Fotografie: Goran Potkonjak
Fotografie: Goran Potkonjak
Innenperspektive, Visualisierung Husistein & Partner AG
Innenperspektive, Visualisierung Husistein & Partner AG
Innenperspektive, Visualisierung Husistein & Partner AG
Schwarzplan
Erdgeschoss
Dachgeschoss
Schnitt
Ansicht West
Ansicht Ost
Ansicht Süd
Ansicht Nord