OBDO – Buchs AG

Wohnüberbauung

In einem Quartier mit Einfamilienhäusern und niedrigen Mehrfamilienhäusern sowie vereinzelten einstigen bäuerlichen Gebäuden, realisieren wir eine Siedlung mit drei Mehrfamilienhäusern.

Dem Quartier und der Zone entsprechend, verfügen die Gebäude über lediglich zwei Ober-geschosse und ein Attikageschoss.

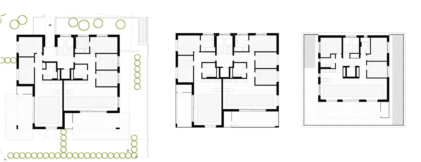
Die 18 Wohnungen in den drei Häusern sind über einen vierseitig gefassten, gemeinsamen Hof mit Baumhain und pavillonartigem Gemeinschaftsraum erschlossen. Ergänzt um eine Boule- und Sandfläche sowie breite Sitzstufen, entsteht ein Treffpunkt, der zugleich die gemeinsame Adresse der drei neuen Häuser schafft.

Die Gebäude erfüllen den Minergie-P-Standard.

Auftraggeber:Trilix AG
Fotografie: Radek Brunecky
Fotografie: Radek Brunecky
Fotografie: Radek Brunecky
Fotografie: Radek Brunecky
Fotografie: Radek Brunecky
Fotografie: Radek Brunecky
Fotografie: Radek Brunecky
Fotografie: Radek Brunecky
Fotografie: Radek Brunecky
Fotografie: Radek Brunecky
Schwarzplan
Situationsplan
Haus A
Haus B
Haus C
Ansichten
Ansichten
Luftbild