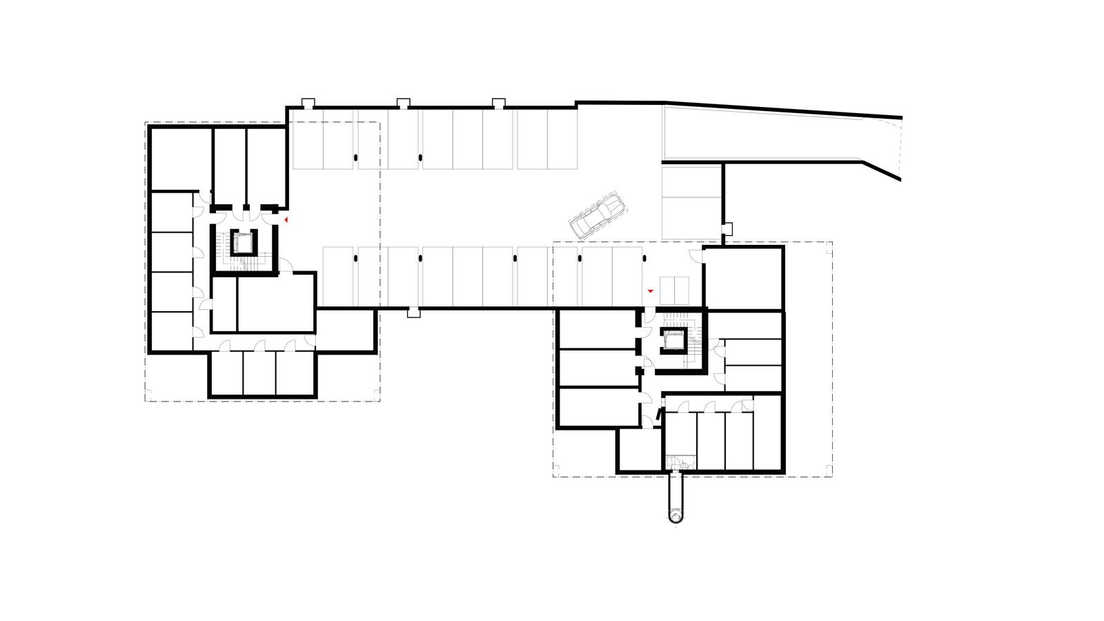
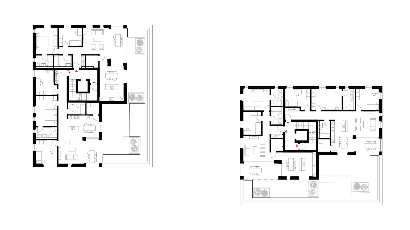
Arealüberbauung Kirchberg
Die zwei geplanten Mehrfamilienhäuser fügen sich gut in den örtlichen Kontext ein indem die annähernd quadratischen Grundrisse angemessener Körnigkeit bringen. Zur optimierten Einordnung sind die beiden Neubauten in der Höhe gestaffelt. Die jeweils zweiten und dritten Obergeschosse sind reduziert, was eine interessante und unaufdringlich wirkende Volumetrie ergibt. Lediglich je ein Teil der Nord- und der Ostfassaden sind viergeschossig.
Mit der Reduktion auf zwei eher punktförmige Gebäude ergeben sich auch durchlaufende Aussenraum- und Sichtbeziehungen.
Die Fassaden sind hell verputzt und geschossweise fein unterteilt. Die Fensteröffnungen inklusive der mit einem Kammputz erkennbaren Fensterstürze gliedern die Fassaden jeweils auf der ganzen Geschosshöhe. Die Öffnungen weisen unterschiedliche Breiten auf, welche von breiten, doppelflügligen Fenstertüren bis hin zu sehr schmalen, fast schlitzartigen Fenstern reichen und rhythmisch angeordnet sind. Dieses Prinzip erstreckt sich über alle vier Fassaden.
Die beiden Mehrfamilienhäuser weisen insgesamt je sechs 3½- und 4½-Zimmer-Wohnungen sowie vier 5½-Zimmer-Wohnungen auf.
Wir danken der Auftraggeberschaft Baugesellschaft Kirchbergstrasse Küttigen und dem ganzen Planungsteam für die erfolgreiche Zusammenarbeit!
Vermarktung: Markstein AG Baden, www.markstein.ch/immobilien/a0evj000005fl2rmagde-projektankuendigung/
| Auftraggeber: | Baugesellschaft Kirchbergstrasse Küttigen |
Publikationen