THURN – Thürnen

Wohnüberbauung mit Doppel- und Einfamilienhäusern

Am südlichen Eingang von Thürnen, BL, planen wir eine Siedlung mit 13 DEFH und 2 EFH als Wohneigentum. Die 11’787 m2 grosse, Richtung Osten orientierte, Parzelle liegt an ruhiger Hanglage und grenzt an eine geschützte Grünzone. Sie bietet eine unverbaubare Aussicht auf die Umgebung. An der Süd- und Nordgrenze der Parzelle verlaufen jeweils zwei kleine Bäche.

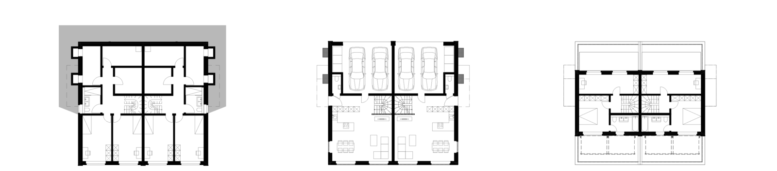
Die Überbauung konzipiert sich aus vier dem Hang folgenden Häuserreihen, die insgesamt eine niedrige, aber dichte Bebauung ergeben. Die Wohntypologie von DEFH ist die Reaktion auf die heutigen Bedürfnisse nach Selbstbestimmung, privaten Rückzugsmöglichkeiten sowie eigenen Grünraum. Jede Haushälfte verfügt über private Garten- und Terrassenflächen sowie eine eigene Zufahrt mit Parkierung, teils im Sockelgeschoss teils in eigenen Carports.

Die Gebäudekörper der DEFH sind durch einen Versatz in Höhe und Fassadengestaltung volumetrisch getrennt. Eine Variation von sechs verschiedenen Häusertypen wirkt einer Stereotypisierung entgegen. Die 5.5 und 6.5 Zimmer-Häuser bestehen aus einem Sockel-, einem Voll- sowie einem Attikageschoss und verfügen über 135 – 158 m2 Wohnfläche.

Thematisch wird die Staffelung in der Materialisierung aufgegriffen. Die Ost- und Westseite der Volumina bestehen aus einer geschlossenen Holzfassade, die anderen Seiten zeigen eine Putzfassade mit Besenstrichoptik. Durch Scheibenelemente wird der Kontrast des Materialwechsels zwischen den Fassadenseiten akzentuiert.

Auftraggeber:MCO Baudienstleistungen AG, Spreitenbach
Visualisierung Avendo AG
Visualisierung Avendo AG
Schwarzplan
Umgebung
Sockelgeschoss, Erdgeschoss, Attika - Typ A, A1, A2
Sockelgeschoss, Erdgeschoss, Attika - Typ B, B1
Sockelgeschoss, Erdgeschoss, Attika - Typ C
Ansichten Ostfassade
Ansichten Südfassade
Schnitt
Schnitt
Fassade Materialisierung