ERLIN – Erlinsbach

Zwei Terrassenhäuser

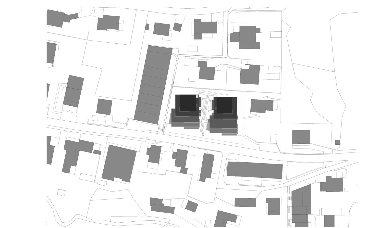
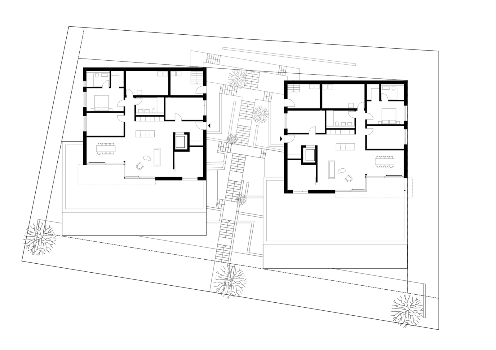
An der Brühlstrasse 73/75 in Erlinsbach, Aargau wurden 2 Terrassenhäuser erstellt mit je 4 Eigentumswohnungen. Die dem Hang folgende, langgezogene Quartierstrasse verfügt über eine lockere Bebauungsstruktur, bestehend aus Einfamilienhäusern, einigen kleineren Mehrfamilienhäusern und wenigen Terrassenhäusern. Auf den beiden Parzellen standen zwei ältere Einfamilienhäuser. Mit dem Ersatz durch die Terrasseneinheiten wurde eine Verdichtung erreicht.

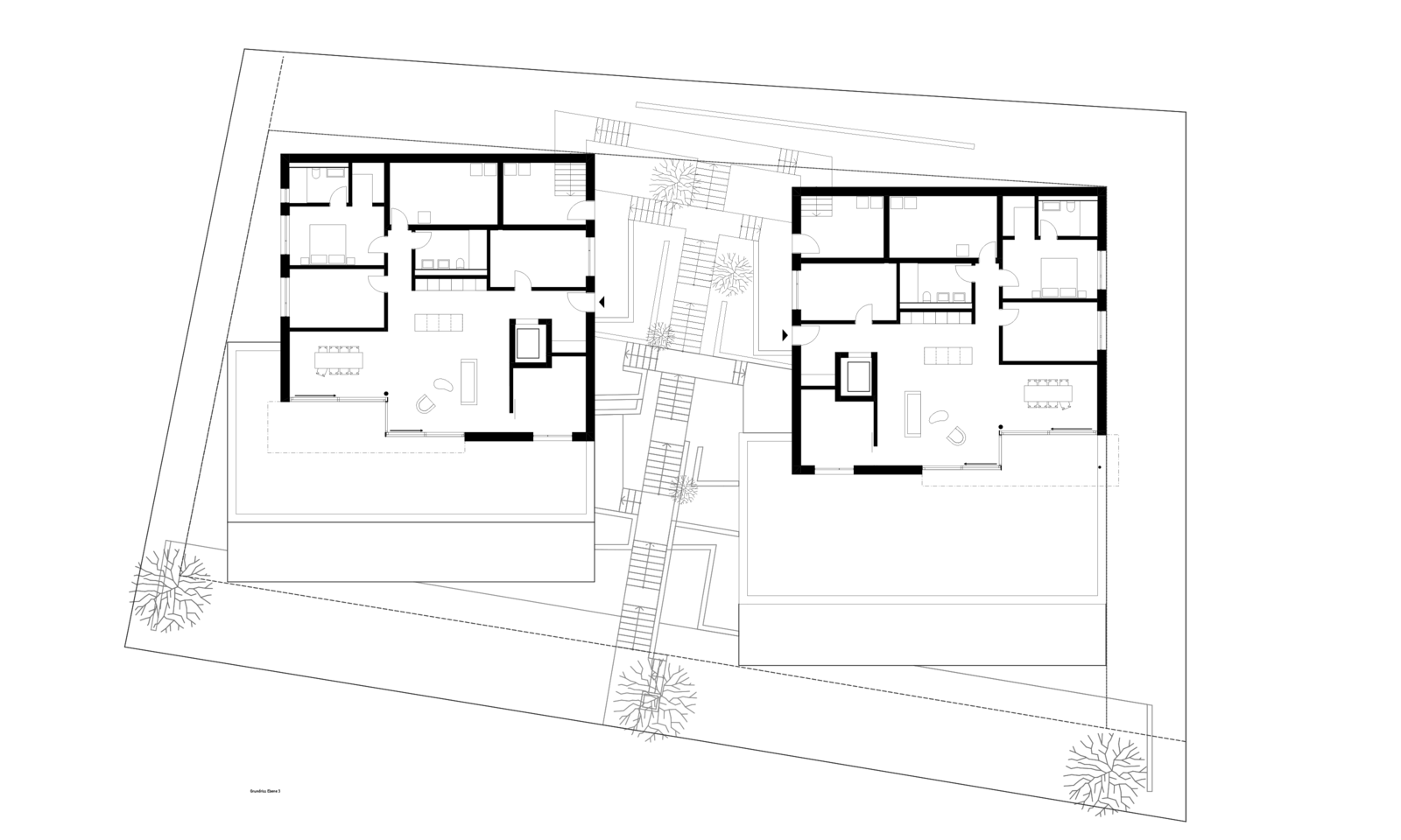
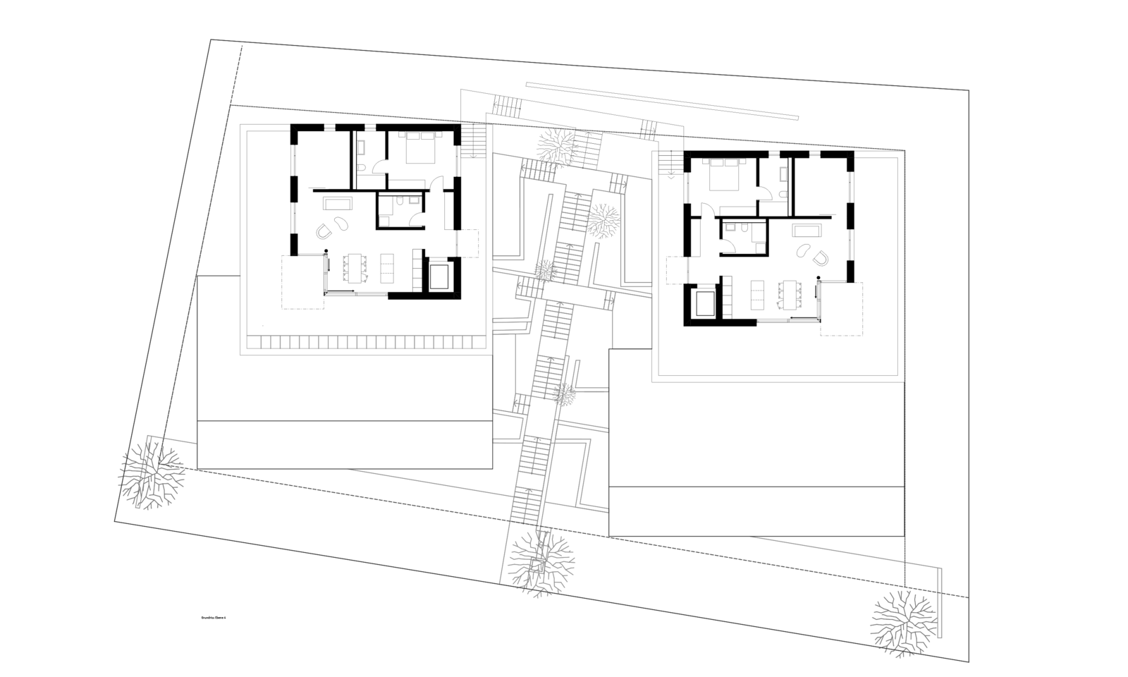
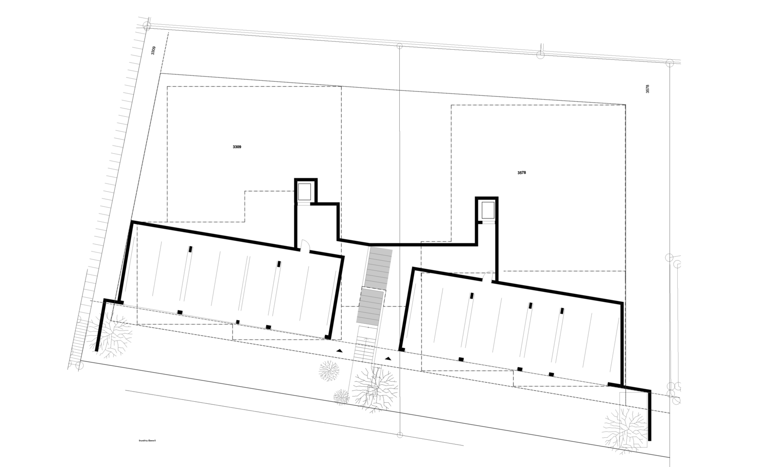
Die zwei Wohnbauten, welche sich von der Grösse her an den umliegenden Häusern orientieren, sind sorgfältig in den Hang eingepasst. Das Sockelgeschoss mit Garage orientiert sich parallel zur Strasse; die darüberliegenden Wohngeschosse wurden leicht gedreht angeordnet. Die Gebäude sind in mehrere Richtungen gestaffelt, die Schachtelstruktur wird durch eine horizontale Gliederung verstärkt. Die Ausrichtung der Hauptfassade nach Westen sorgt für viel Licht in den Wohn- und Schlafräumen.

Als Erschliessung windet sich zwischen den beiden Häusern eine Kaskadentreppe mit dichter Bepflanzung. Eine Baumgruppe definiert die Adressierung.

Der Ausdruck der Verschachtelung wird durch Strukturveränderungen im Putz, bei den Vordächern und den Blechabschlüssen betont. Das Farbkonzept wurde mit einer hellen Putzfassade und bronzefarbenen Elementen umgesetzt.

Die Flachdächer sowie die Umgebung wurden begrünt. Die Wärmeerzeugung erfolgt mittels Erdsonden-Wärmepumpe.

Auftraggeber:Eglin Immobilien AG, Baden
Fotografie: Goran Potkonjak www.goranpotkonjak.com
Fotografie: Goran Potkonjak www.goranpotkonjak.com
Fotografie: Goran Potkonjak www.goranpotkonjak.com
Fotografie: Goran Potkonjak www.goranpotkonjak.com
Fotografie: Goran Potkonjak www.goranpotkonjak.com
Fotografie: Goran Potkonjak www.goranpotkonjak.com
Schwarzplan
Ebene
Baufortschritt April 2023, Fotografie: Goran Potkonjak www.goranpotkonjak.com
Baufortschritt April 2023, Foto: Goran Potkonjak www.goranpotkonjak.com
Aushub August 2022, Foto: Husistein & Partner AG
Umgebung
Situationsplan
Erdgeschoss
1. Obergeschoss
2. Obergeschoss
3. Obergeschoss
4. Obergeschoss
Ansicht West Haus A und Haus B
Ansicht Nord Haus B
Ansicht Süd Haus A
Ansicht Süd Haus B
Schnitt
Fassaden