FORCH WW – Zollikerberg

Wohnüberbauung an der Forchstrasse

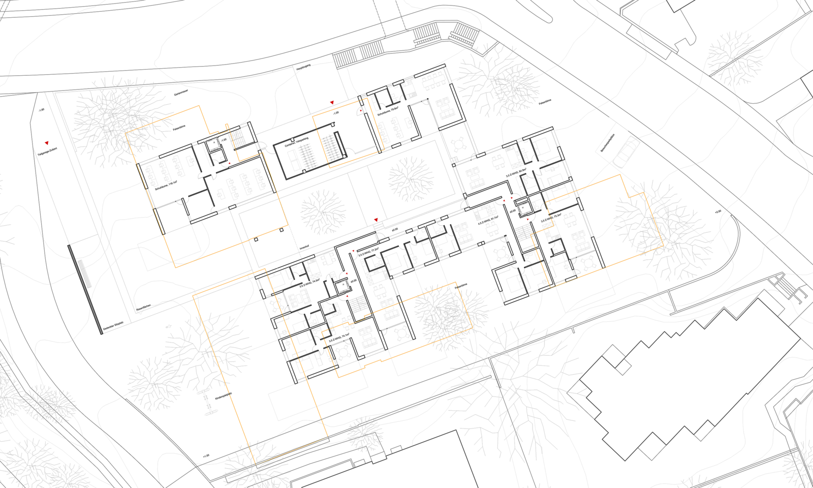
In Anlehnung an das Bebauungsmuster der Nachbarschaft wird ein neues Ensemble entwickelt welches aus vier einzelnen Häusern besteht. Eine bereits bestehende Tiefgarage wird weitergenutzt. Die Häuser werden durch ein klares Erschliessungssystem untereinander verbunden. Alle Wohnungen haben mindestens zwei Ausrichtungen und verfügen über grosszügige Aussenräume. Sie sind aufgrund ihrer Lage und ihres Zuschnitts für Familien attraktiv, der hofartige Aussenraum schirmt von der Strasse ab und definiert kindgerechte Aussenräume. Hindernisfreie Zugänge ermöglichen altersgerechtes Wohnen und rollstuhlgängige Erschliessung. Es besteht eine direkte Anbindung an die Stadt Zürich. Die Gebäude werden in Massivbauweise errichtet, der MINERGIE-Standard angestrebt. Durch die Verwendung von trennbaren Materialien, dem Einsatz von Recycling-Produkten und einer guten Tageslichtausnutzung wird den Anforderungen der Nachhaltigkeit Rechnung getragen.

Auftraggeber:privat
Visualisierung: Maaars
Visualisierung: Maaars
Visualisierung: Maaars
Erdgeschoss mit Umgebung
Fotografie Bestand 2010
Perspektive, Visualisierung Husistein & Partner AG
Luftbild Bestand
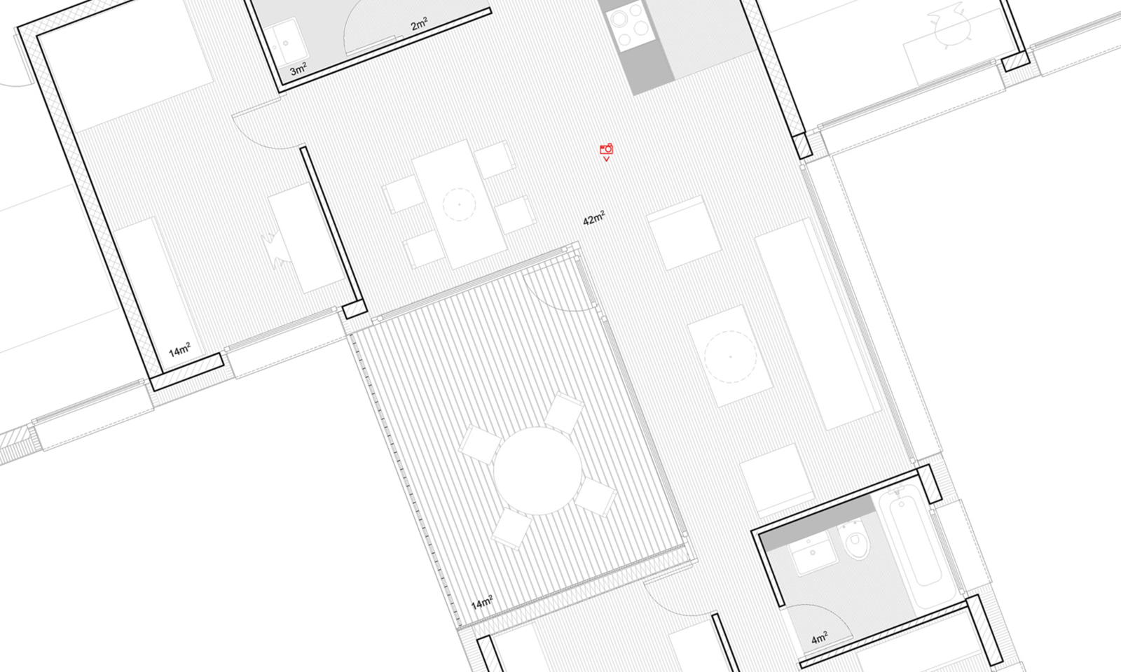
Grundriss Ausschnitt
Wohnungskonfiguration
Skizze
Schnitt