WERK WW – Lenzburg

Erweiterungsbau Kantonaler Werkhof

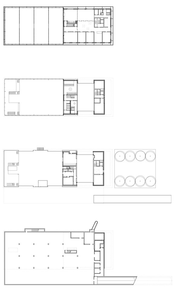
Kunst am Bau als integraler Bestandteil der Raumbildung. Minergie-ECO als Garant für nachhaltiges Bauen. Eine bestehende Werkhalle wird durch den Kanton übernommen. An der schnurgeraden Strasse von Hunzenschwil nach Lenzburg soll der neue Werkhof des Kantons (Kreis I) entstehen. Massgebende Basis des Entwurfes bilden die Struktur der bestehenden Halle und die örtlichen Begebenheiten, wie Lage zur Strasse und Blickachsen zur Kirche von Staufen. Die neuen Bauteile fügen sich mit der Halle zu einem Ganzen. Mittels der vermittelnden gewebeartigen Fassade bildet das Haus eine neue Adresse. Der Nutzung entsprechend sind unterschiedliche Erschliessungen des Hauses nötig und möglich. Besucher werden durch die volumetrische Ausformulierung des Gebäudes geleitet. Nutzung, Struktur und Konstruktion sind in Grundriss und Schnitt ablesbar. Die beiden Nutzungen sind einzeln betreibbar und ihren Anforderungen entsprechend angeordnet. Mit der Disposition der Nutzung über dem bestehenden Waschplatz ist die Kommunikation zwischen den beiden Bereichen einfach möglich. Der Holzbau nimmt Bezug auf die vorhandene statische Struktur des Untergeschosses und erfüllt die Kriterien der Nachhaltigkeit. Der Werkhof ist Minergie zertifiziert mit AG-02-ECO.

Auftraggeber:Kanton Aargau BVU
Fotografie: Roger Frei, Zürich
Fotografie: Roger Frei, Zürich
Fotografie: Roger Frei, Zürich
Fotografie: Roger Frei, Zürich
Fotografie: Roger Frei, Zürich
Fotografie: Roger Frei, Zürich
Grundrisse
Schnitte
Modellfoto
Rohbau Juni 2017, Fotografie: Roger Frei, Zürich
Skizze
Errichtung Holzelemente Juni 2017, Fotografie: Roger Frei, Zürich
Kontrollplan
Rohbau Juni 2017, Fotografie: Roger Frei, Zürich
Schnitte
Fassaden Textil