DORF – Erlinsbach

Studienauftrag, Dorfplatz 2

Die Bebauung am Dorfplatz ist – typisch für geschlossene Bebauungen im ländlichen Umfeld – nicht vollständig «zu» und von eher heterogener Struktur betreffend Gebäudefluchten und Höhen. Der Vorschlag nimmt Bezug auf diese Rhythmisierung. Das Gebäude des ehemaligen Consumvereins bildete zusammen mit der Schmitte ein Gebäudepaar. Seine heutige gegliederte Erscheinung ist auf unterschiedliche Erweiterungen und Aufstockungen zurückzuführen. Das neue Haus am Dorfplatz verfügt lediglich über zwei Geschosse und ordnet sich folglich hierarchisch der Schmitte unter. Der nach Westen freigestellte Giebel ist die Reminiszenz an die ländlich-teilgeschlossene Bebauung. Der Verzicht auf den Einbau von Wohnungen im Dachraum führt «zwangsläufig» zu einer grosszügigen und ruhig gestalteten Dachfläche.

Der Raum zwischen den beiden benachbarten Gebäudepaaren nimmt ein eingeschossiger Baukörper ein. Ist das Haus in Verputz materialisiert, so ist diese «Nutzbaute» mit einer Schalung versehen. Den Eingang zu den publikumsorientierten Nutzungen (Arztpraxis und Ergotherapie) und den Übergang zum öffentlichen Dorfplatz markiert eine Baumgruppe in Reihenpflanzung. Die Erschliessung für Kunden erfolgt vom Dorfplatz her. Die Mitarbeiter der Praxis und der Ergo sowie die Bewohner erreichen das Gebäude über die Schmiedegasse.

Das Öffnungsverhalten des Hauses nimmt die Thematik von Fenstern mit Klappläden auf und transformiert diese in eine zeitgemässe Form. Stehende Fensterformaten sind einseitige, bündig eingelassene Läden in Holz zugeordnet. Die Nutzbaute hat insgesamt einen grösseren Öffnungsanteil, diese Öffnungen sind aber einfacher gestaltet.

Auftraggeber:Gemeinde Erlinsbach
Perspektive
Perspektive
Schwarzplan
Situationsplan
Erdgeschoss
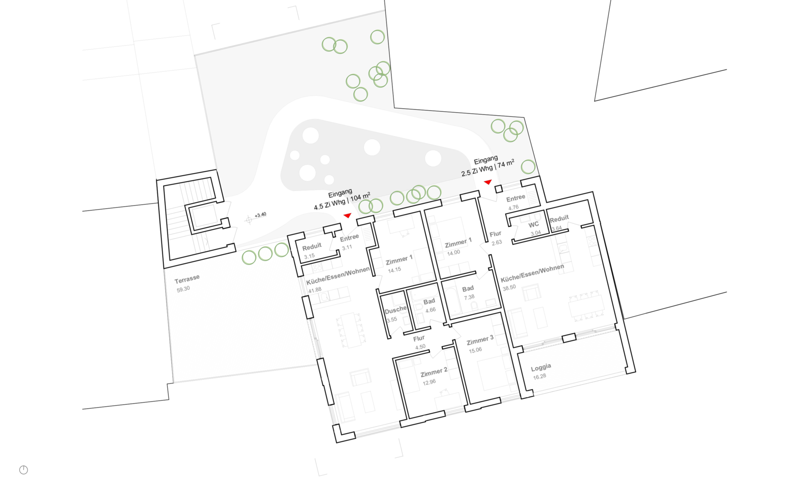
1. Obergeschoss (Variante 1)
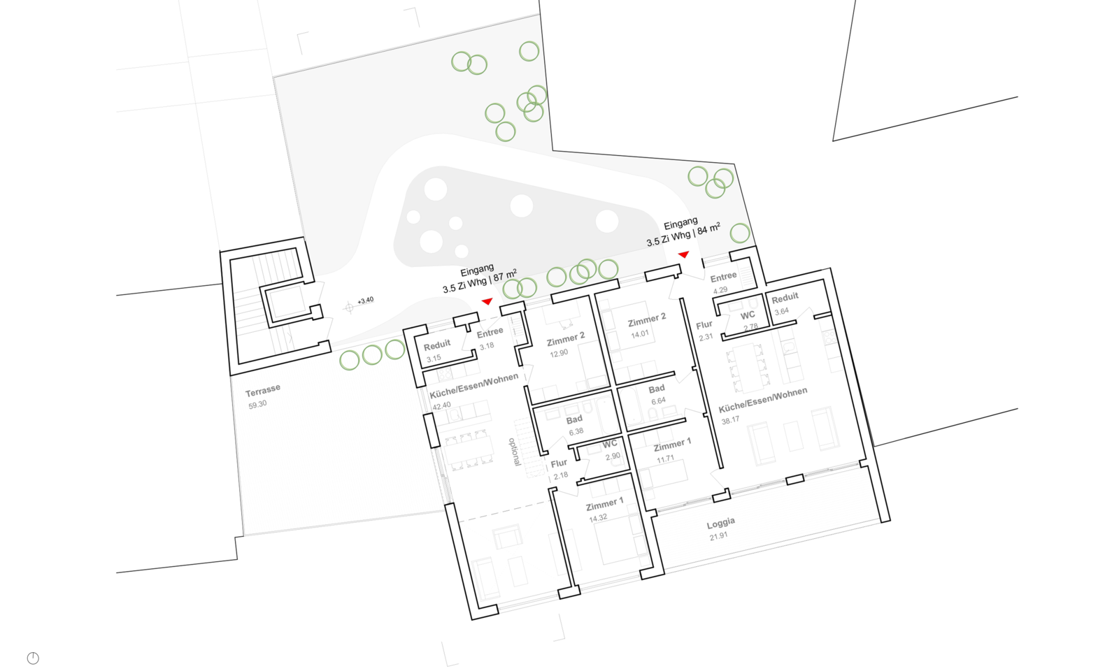
1. Obergeschoss (Variante 2)
Querschnitt
Querschnitt mit Ansicht
Ansicht Bestand
Ansicht Süd
Ansicht Nord
Modell
Modell
Modell
Modell