TRIAS WW – Wangen-Brüttisellen

Wohnüberbauung Riedmühle, Wettbewerb 1. Rang

Das nach Westen ausgerichtete, leicht abfallende Terrain, der nordwestlich liegende Bahndamm, die weiten Freiräume in südlicher Richtung und der vorhandene Siedlungsduktus im Rücken sind prägende Faktoren der neuen Wohnbebauung «TRIAS» am Siedlungsrand.

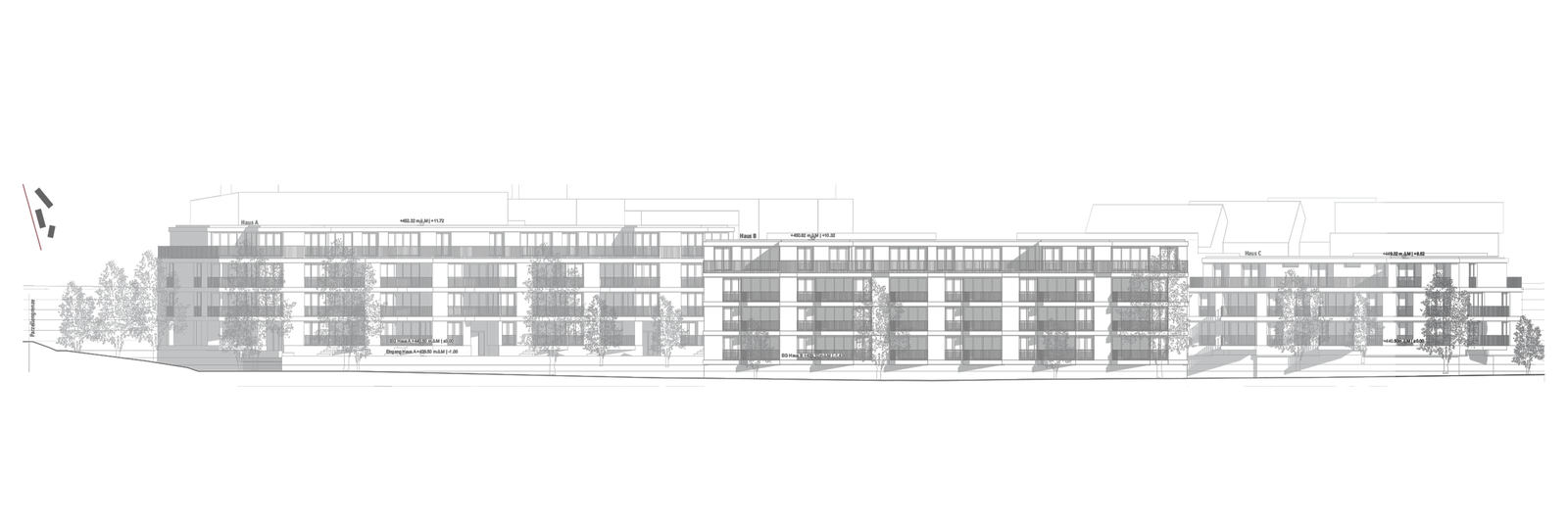
Die drei Körper bilden zusammen mit der vorhandenen Besiedlung zwischen Riedmühlestrasse und Lindenbuckweg einen adressbildenden Rahmen für die neue Bebauung sowie auch für das vorhandene Quartier.

Die schlanken, längsgerichteten Körper – und damit die Wohneinheiten – sind konsequent nach Westen und Südwesten zum grossen Landschaftsraum hin ausgerichtet. Der Freiraum fliesst in die Siedlung und verbindet diese.

Die Typologien der Häuser führen zu einem breiten Angebotsspektrum an unterschiedlichen Wohnungsgrössen und -grundrissen. Im identischen Fussabdruck des Gebäudes können sowohl „Durchwohntypen“ als auch «Tag-/Nachttypen» disponiert werden.

Die Disposition der Häuser, deren Auftritte als auch die Wohnungskonzeptionen beziehen sich auf das Nachfragesegment mit einem aufgeschlossenen bis individualisierten Lebensstil. Erreicht wird dies über eine wertige und differenzierte Gestaltung der Aussenräume, die attraktiven Sichtbezüge und Zwischenräume sowie eine adäquate Ausformulierung von Fassade und Materialisierung.

Die hinterlüftete Fassade fügt sich aus horizontalen Bändern, geschosshohen Fenstern sowie unregelmässig gewellten Faserzementelementen – versteinerten Vorhängen gleich - zusammen. Die Gliederung von Körper und Fassade sowie die gewählte Materialisierung und Farbigkeit betten die Siedlung in den Landschaftsraum ein. Die Tonalitäten der Materialien und Farben lehnen sich an natürliche Erden und Gewächse des umgebenden Landschaftsraumes an. Die Fügung und Eigenverschattung der Elemente tragen zu einem angenehm massstäblich gegliederten Bild der Körper in der Landschaft bei.

Wir waren verantwortlich für den Wettbewerb sowie das Bauprojekt. Die Realisierung wurde von fsp Architekten Spreitenbach übernommen.

Auftraggeber:BVK Personalvorsorge des Kantons Zürich
Fotografie Goran Potkonjak www.goranpotkonjak.com
Fotografie Goran Potkonjak www.goranpotkonjak.com
Fotografie Goran Potkonjak www.goranpotkonjak.com
Fotografie Goran Potkonjak www.goranpotkonjak.com
Baufortschritt April 2023, Fotografie Goran Potkonjak
Baufortschritt April 2023, Fotografie Goran Potkonjak
Schwarzplan
Schema-Wohnungsmix
Umgebungsplan
Erschliessungsschema
Regelgeschoss
Ansicht Südwest
Fassade Materialisierung