WSW – Wohlenschwil

Siedlungsüberbauung

Für das Gebiet Grossfeld / Nüeltsche wurde basierend auf der Testplanung «Fruchtfolge» (Husistein & Partner AG, 2014) ein Gestaltungsplan etabliert. Das Areal stellt den Bauzonenrand, den Übergang zur Landwirtschaftszone dar. Nach Westen sanft ansteigend grenzen intensiv genutzte Agrarflächen direkt an die zukünftige Bebauung. Auch am nördlichen Rand des Perimeters markieren diese den Rand der Siedlungsstruktur. Durch die Hanglage ist die Bebauung sehr gut einsichtig und somit deren Vernetzung mit der Umgebung und der Landschaft entsprechend sensibel und präzise vorzunehmen.

Die Bebauung Grossfeld / Nüeltsche orientiert sich betreffend Lage und Ausrichtung an der bestehenden Siedlung und den Felderstrukturen der landwirtschaftlichen Nutzung. Die Besiedlung erfolgte durch eine, dem Höhenverlauf folgende, Erschliessungsachse. Diese wurde bergseitig ausgeweitet, um Vorplätzen und Gebäuden Platz zu schaffen und bildete so eine Insel in der Landschaft. Dieser Ansatz stellt die Idee für das Konzept dar. Entlang der mittig liegenden Erschliessungsachse - einer Begegnungszone - werden drei inselartige Ausweitungen etabliert, die je drei Mehrfamilienhäuser aufnehmen können. Diese «Platz» genannten Bereiche scheiden wieder um die sogenannten «Felder» aus. Hier werden kleinteiligere, feinkörnigere Volumina angeordnet. Während die «Plätze» stärker (bis zu einem Geschoss) in den Hang eingeschnitten werden können, bleibt der Höhenverlauf der «Felder» nah am gewachsenen Terrain.

Die Lage am Siedlungsrand, der landschaftliche Bezug, der sanfte Hügelverlauf und die Beziehung zum Reusstal stellen wichtige identitätsstiftende Elemente dar. Dazu gesellen sich die «inneren» identitätsstiftende Massnahmen der Siedlung. Genannt seien die zentrale Erschliessungs- und Begegnungsachse, ein übergeordnetes gestalterisches Konzept der Bauten und Anlagen sowie der Umgebungsgestaltung. Das Areal dient der Wohn- oder wohnnahen Nutzung, untergeordnet auch Dienstleistungs- oder Gewerbenutzungen. Neben den Wohnungen in den Mehrfamilienhäusern «Platz» sind in den Bereichen «Feld» Reihenhäuser oder grosszügigere, einfamilienhausartige Geschosswohnungen angeordnet. Der Wohnungsmix lässt ein breites Spektrum an möglichen Zielgruppen zu. Wir waren verantwortlich für die Testplanung und das Richtprojekt inklusive Gestaltungsplanverfahren.

Auftraggeber:Acama Immobilien AG, Sursee
Fertiggestellte Siedlung Juli 2023. Fotografie: Goran Potkonjak
Fertiggestellte Siedlung Juli 2023. Fotografie: Goran Potkonjak
Fertiggestellte Siedlung Juli 2023. Fotografie: Goran Potkonjak
Fertiggestellte Siedlung Juli 2023. Fotografie: Goran Potkonjak
Fertiggestellte Siedlung Juli 2023. Fotografie: Goran Potkonjak
Schwarzplan
Analyse Haus, Garten, Landschaft 1930 bis 1976
Landschaftsanalyse
Situationsplan
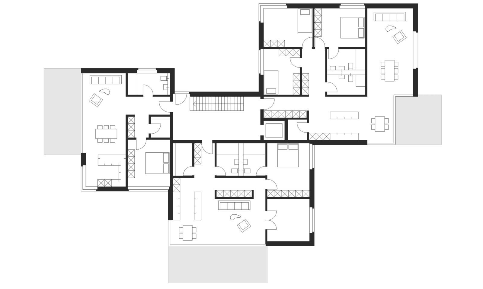
Regelgrundriss Platz I Haus II
Regelgrundriss Platz II Haus I
Perspektive Platz I Haus III
Perspektive Platz III Haus I
Perspektive Platz III
Perspektive Platz I
Schnitte
Schnitte
Modell