BZU WW – Unterentfelden

Sanierung des Bildungszentrums, Wettbewerb

Der Vorschlag «Lisière» präzisiert und schärft, ausgehend von der Fassadensanierung, die architektonische Erscheinung und die räumliche Struktur der BZU Unterentfelden. Die innenräumlichen Beziehungen von Eingängen, Erschliessungsflächen und Raumkörpern werden bereinigt womit der Grundentwurf der Anlage lesbarer wird. Augenfälligste Massnahme der Sanierung ist die elementierte Fassade. Die Repetition und die Vereinheitlichung der Elemente sowie die verstärkte Bindung zwischen den einzelnen Baukörpern machen das Gebäude grosszügig und geben ihm eine zeitgemässe Erscheinung. Die Kombination der skulptural ausformulierten Elemente mit den mehrfarbigen und texti-len Sonnenschutzrollos unterstützt die Typologie einer Schule. Die Konstruktion der Fassade in Aluminium lässt sehr tiefe Unterhaltskosten erwarten. Zu-dem sind die Beständigkeit und die Dauerhaftigkeit der eloxierten Elemente überdurch-schnittlich.

Auftraggeber:Kanton Aargau, Immobilien Aargau
Ansicht West
Visualisierung
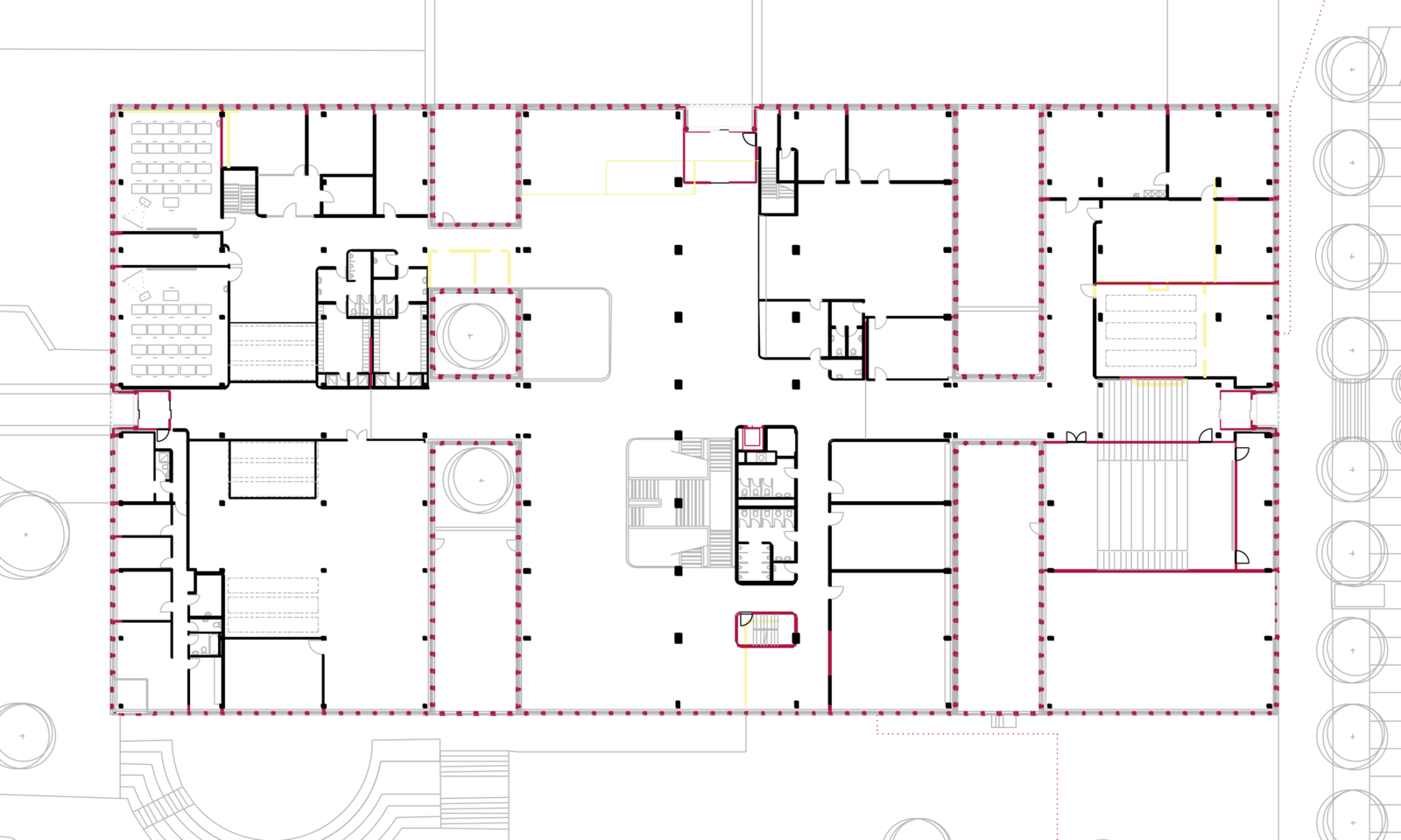
Erdgeschoss
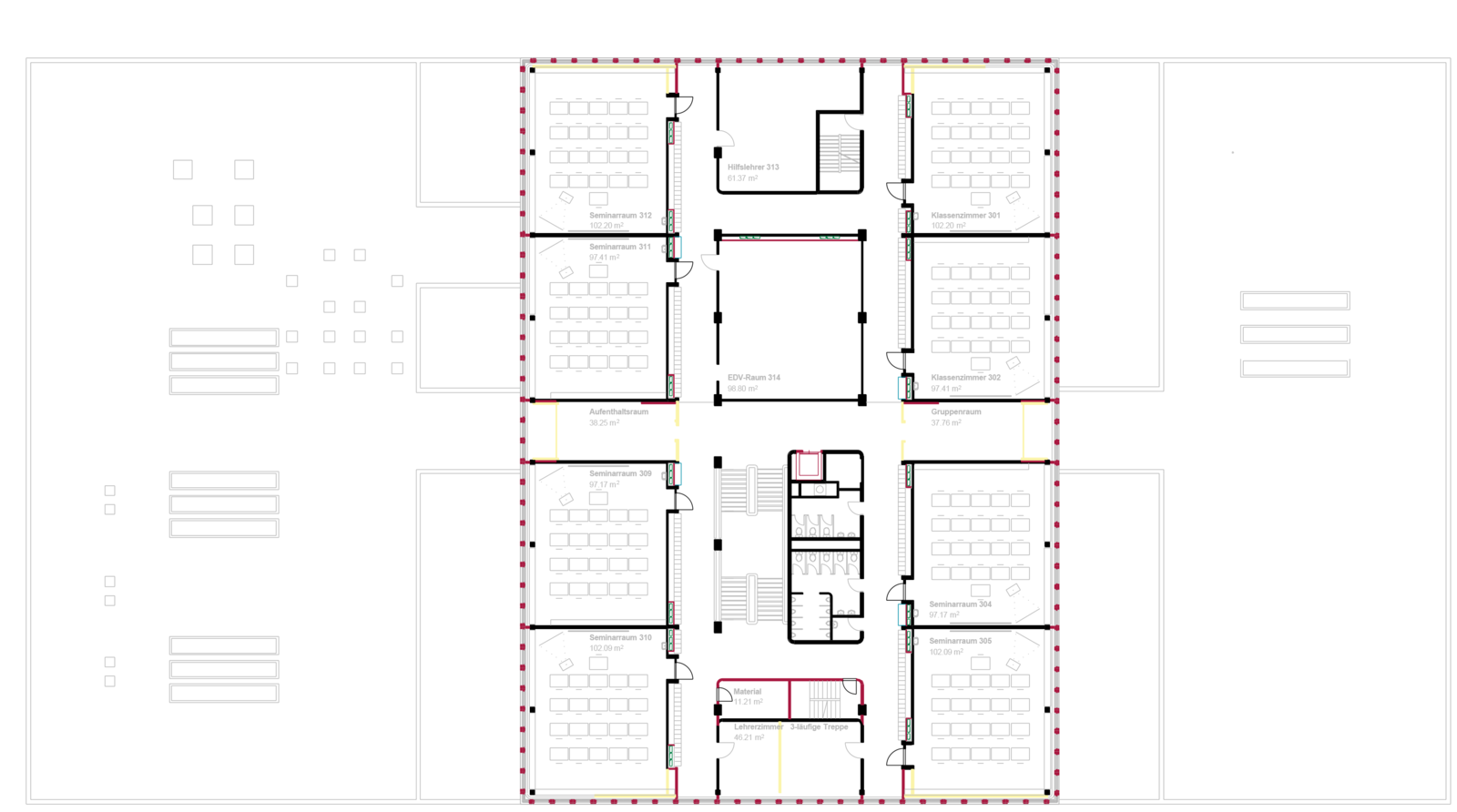
1. Obergeschoss
Querschnitt, Visualisierung Husistein & Partner AG
Fotografie vom März 2009
Isothermen
Konstruktionsschnitte
Ansicht Nord
Visualisierung Husistein & Partner AG