BRUTTO WW – Brüttisellen

«Pas de deux» Ideenstudie Arealentwicklung Brüttiseller Tor, Wettbewerb 3. Rang

Wenn – unter anderem – der Erschliessungsgrad mittels Bahn und Autobahn als Inkubator für Stadtentwicklung betrachtet werden kann, so hat dies bisher in Wallisellen, Schwamendingen und Oerlikon zu dichteren Bebauungen und höheren Häusern geführt als in Brüttisellen. Hier scheinen die negativen Auswirkungen des Autobahnanschlusses und seines Verkehrsstromes bisher vorgeherrscht zu haben. Das zu beplanende Grundstück bietet in dieser Hinsicht Potential, den Ort gewissermassen umzuwidmen. Eine hohe Bebauung unterstützt die Identifikationsstiftung und kann zusammen mit einer geeigneten Nutzung eine entsprechende Entwicklung des Ortsteils in Bewegung setzen. Die dichte Bebauung wird gewissermassen der Wichtigkeit der Achse und des Knotens gerecht.

Die Setzung beruht auf drei Elementen:

- Zwei Baukörper, welche sich zum Knotenpunkt Zürichstrasse / Autobahnzubringer erhöhen

- aufgespreizte blockrandbegleitende Bebauung

- vermittelnder Z-förmiger Freiraum zwischen den beiden Baukörpern

Die winkelförmigen Bauten fassen den Ort, definieren den hofartigen Zwischenraum und sorgen für eine gute Schallverschattung: der eine kann nicht ohne den anderen. Nur im System erreicht die Setzung ihre Wirkung. Die Gebäudegruppe ist identitätsstiftend für den Ort, sie etabliert einen neuen Schwerpunkt im städtebaulichen Gefüge. Das Auftrennen des Blockrandes – als Reaktion auf die Gebäudehöhen und -distanzen – und die vertikale Gliederung durch die Freiraumschicht stellen die Bezüge zum ortsbaulichen Kontext her.

Auftraggeber:WBZ Immobilien AG
Visualisierung: Radek Brunecky
Visualisierung: Radek Brunecky
Visualisierung: Radek Brunecky
Analyse
Entwicklung
Schwarzplan
Situationsplan
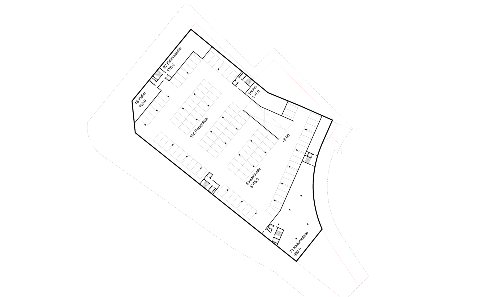
1. Untergeschoss
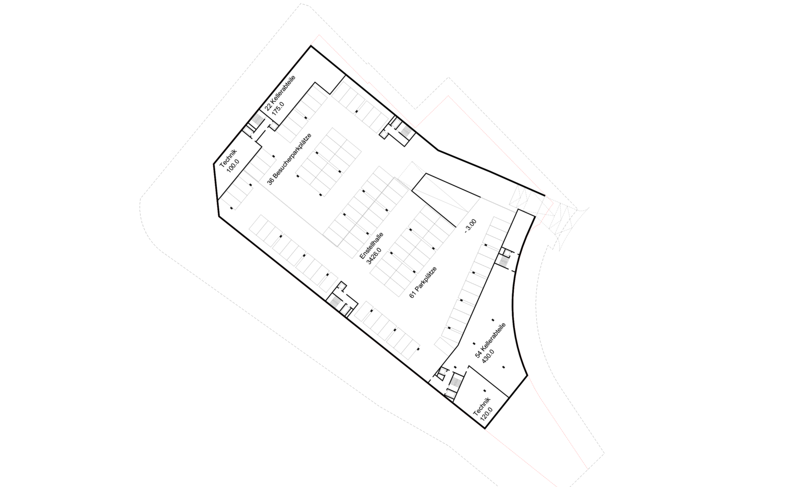
2. Untergeschoss
Erdgeschoss
1. Obergeschoss
4. Obergeschoss
5. Obergeschoss
Wohnungstypen
Wohnungstypen
Längsschnitt
Querschnitt
Ansicht West
Ansicht Ost
Axonometrie