PARE WW – Rheinfeld

«P-ARC-EN-CIEL» Studienauftrag: Umbau und Erweiterung Parkresort

Die Bäder- und Hotelanlage, mit Grundstein Mitte des 19. Jahrhunderts, hat sich bis heute als Aneinanderfügung neuer Bauteile entwickelt. Das Projekt spinnt diesen Faden weiter, indem es den Komplex mit einem modernen Gebäudetrakt abschliesst.

Inspiriert von der historischen Loggia der Restaurantterrasse erhält der Gebäudekörper eine von einer schwungvollen Balkonschicht gebildete Bekleidung, deren Stützen und Rundbögen aus hellem Sichtbeton mit Kalksteinzuschlag eine der prominenten Lage angemessene Erscheinung bilden. Die dahinterliegenden Fassadenteile sind mit grosszügigen Fensterflächen versehen, die den Ausblick sowohl in die Parklandschaft als auch über den Rhein inszenieren.

Die prägnante Wegachse, welche die Kuranlage erschliesst, wird aufgewertet und verbindet die Roberstenstrasse ohne Geländesprung mit dem Rheinweg und öffnet sich am Ende zu einem wohldimensionierten Platz. Vom bestehenden Kurhotel und dem Neubau gefasst entsteht ein Kurgarten mit Aussicht auf den Rhein.

Das Erschliessungskonzept des Gebäudes hat die Optimierung aller betrieblichen Abläufe unter Berücksichtigung der innen- und aussenräumlichen Qualitäten zum Ziel. Für den Neubau sieht es eine konsequente Entflechtung der Besucher-, Nutzer- und Bewohnerströme vor. Mit getrennten Liften kann so jede Gruppe ihre Nutzungseinheit individuell erreichen.

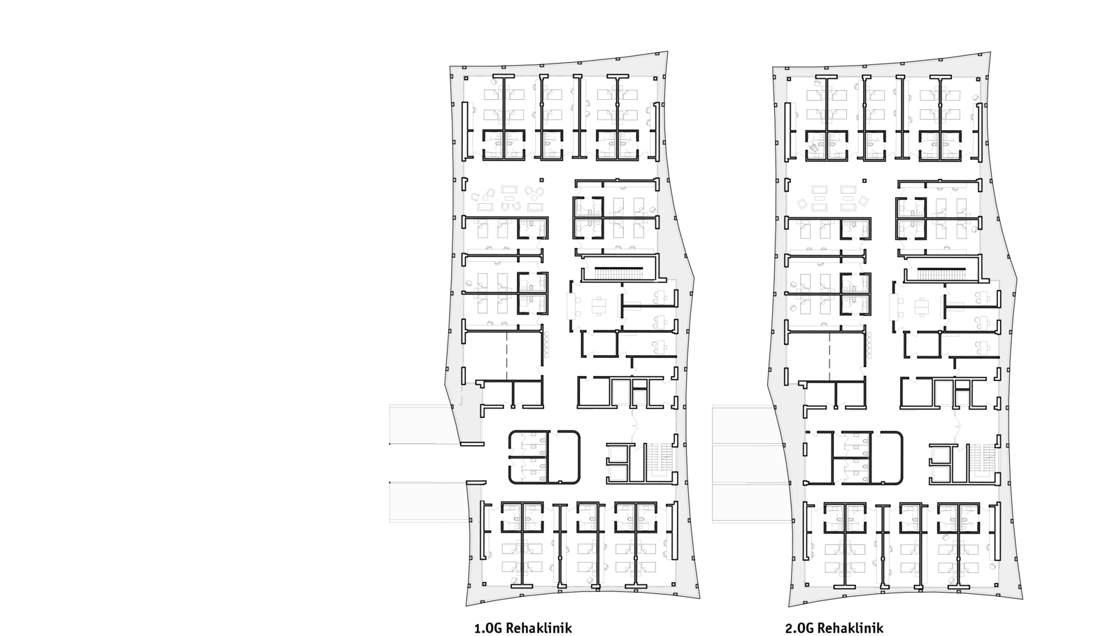
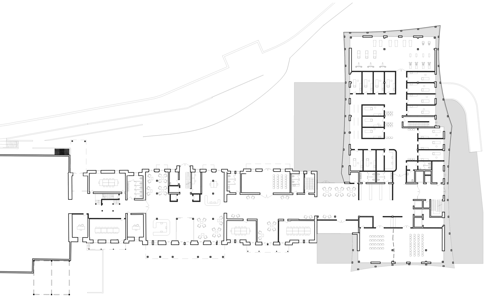
Die einzelnen Funktionen sind geschossweise gestapelt. Mit den Therapieräumen im Erdgeschoss nutzt man die Lagequalität für eine stark frequentierte Nutzung, die neue Klinik in den darüber liegenden Geschossen kann mit der bestehenden Klinik zusammengeschlossen werden und mit dem Fachärztezentrum findet der medizinische Teil des Neubaus seinen Abschluss. Das Hotelgeschoss und besonders die Residenzwohnungen in den beiden obersten Geschossen profitieren von der privilegierten Lage samt Aussicht auf Parklandschaft und Rhein. Rund um die Schnittstelle zum Altbau sind schlussendlich die Seminar- und Veranstaltungsräume gruppiert.

Auftraggeber:Parkresort Rheinfelden Holding AG
Visualisierung Maaars
Visualisierung Maaars
Visualisierung Maaars
Fassadenausschnitt Materialisierung
Umgebungsplan
Erdgeschoss
1. Obergeschoss, 2. Obergeschoss
3. Obergeschoss, 4. Obergeschoss, 5./ 6. Obergeschoss
Ansicht Nord, Ansicht West
Schnitt | Nutzungskonzept
Nutzungs- und Veränderbarkeitsschema
Schwarzplan