BSL2 WW – Lenzburg

Neubau Weiterbildungszentrum, Wettbewerb 2. Rang

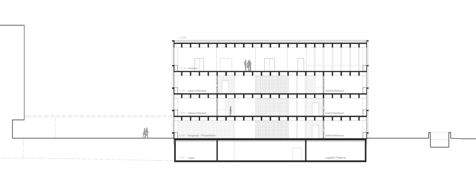
Weiterbildungszentrum und Kongressnutzung. Dem Campus-Gedanken verpflichtet, ordnet sich das Weiterbildungszentrum in die Schulanlage ein. Die halböffentliche Nutzung für Seminare und Konferenzen macht das Gebäude zu einem wichtigen Vermittler innerhalb und ausserhalb der Schulanlage. Die Klassenzimmer sind gruppenweise um den Betonkern angeordnet, sie spielen Flächen zu Gunsten von Gruppenräumen frei. Zwischen Betonkern und tragender Fassade (Holzbau mit Aluminium-Fassade), ist eine Kassettendecke gespannt. Die nichttragenden Klassenwände lassen gitterartig das Tageslicht in den Innenbereich dringen. Wettbewerb mit Präqualifikation.

Auftraggeber:Stadt Lenzburg
Visualisierung Husistein & Partner AG
Visualisierung Husistein & Partner AG
Visualisierung Husistein & Partner AG
Visualisierung Husistein & Partner AG
Ansicht Ost
Schnitt
Luftbild
Ansicht Nord
Skizze
Skizze
Konstruktionsschnitt
Skizze
Schnitt
Situationsplan
1. Obergeschoss
Fotografie