BWW WW – Beinwil am See

Neubau Bauamt und Feuerwehrgebäude, Wettbewerb 3. Rang

Die zu bebauende Parzelle ist von industriellen Grossvolumen umschlossen und liegt in der Gewerkzone am nördlichen Dorfeingang von Beinwil am See. Das neue Gebäude bettet sich volumetrisch so ins leicht abfallende Gelände, dass die Erschliessung der verschiedenen Niveaus optimal erfolgen kann.

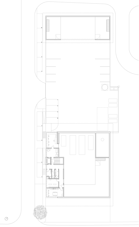
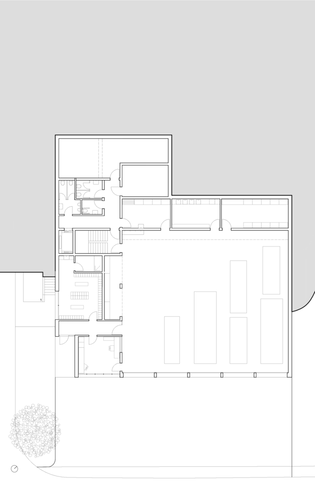
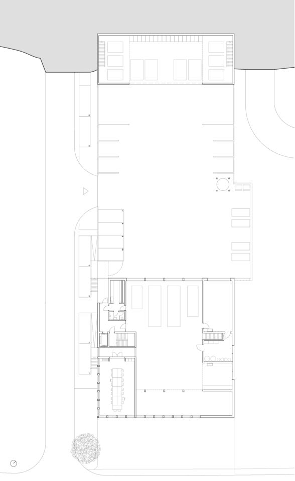
Die Warmbereiche der Bauamt- und Feuerwehrnutzung werden zu einem kompakten Gebäudekörper arrondiert. Die Feuerwehrnutzung ist direkt auf die Industriestrasse orientiert. Die darüber angeordnete Halle des Werkhofes hat so genügend Frei- und Arbeitsraum nach Westen: hier bildet der Unterstand den räumlichen Abschluss der Anlage. Die Hallen der Feuerwehr und des Werkhofes werden südlich von eher kleinteiligeren Nutzungen flankiert. Hier sind Büros, Garderoben, Nebenräume und weitere angeordnet. Im Kern der Schicht liegt der Multifunktionsraum. Er ist aus allen Bereichen gut erschlossen und erreichbar. Die geschichtete Anordnung mit bis zu vier Ebenen schiebt sich exakt so tief ins Gelände ein, dass auf der Zwischenebene der Multifunktionsraum und die optionale Wohnung direkt und separat erschlossen werden können.

Aussenperspektive, Visualisierung Maaars
Schwarzplan
Situationsplan
Erdgeschoss
1. Obergeschoss
2. Obergeschoss
Attikageschoss
Skizze
Modell