LASTA WW – Wettingen

Mehrfamilienhäuser Wettbewerb 1. Rang

Der Schild an der Land-, der Staffel- und der Mattenstrasse weitet sich hier von zwei auf drei Bautiefen aus. Entlang der Landstrasse sind punktförmige, entlang der Mattenstrasse zeilenförmige Bautypen vorherrschend. Dazwischen sind heute eher kleine Wohnbauten angeordnet.

An der Landstrasse schlagen wir einen fünfgeschossigen Bau (plus Attika) vor. Hier bietet sich neben der Gewerbefläche die Realisierung von Mietwohnungen an. Als Reaktion auf den gartenhofartigen Raum zwischen erster und dritter Bautiefe setzen wir hier einen orthogonalen Baukörper mit ondulierender Balkonschicht. So kann einerseits der spezifischen Lage des Gebäudes Rechnung getragen und andererseits können Eigentumswohnungen mit einem identitätsstiftenden USP realisiert werde

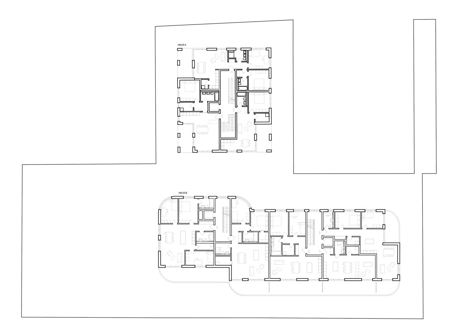
Das Gebäude an der Landstrasse beherbergt im EG eine Gewerbefläche, in den Obergeschossen kleinere und grössere 3 ½ Zimmerwohnungen (total 14 Einheiten). Alternativ sind auch 2 ½ und 4 ½ Zimmerwohnungen machbar.

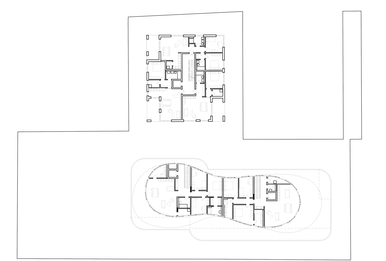
Das Gartengebäude ist als Dreibünder konzipiert, es beinhaltet 3 ½ und 4 ½ Zimmerwohnungen sowie zwei exklusive Attikawohnungen im 4. OG (total 18 Einheiten).

Auftraggeber:Immojar 1 AG
Perspektive
Perspektive
Schwarzplan
Modellfoto
Situationsplan
Umgebungsplan
Regelgeschoss
4. Obergeschoss
5. Obergeschoss
Ansicht Landstrasse
Ansicht Mattenstrasse