FUSTA WW – Aarau

Neubau Kinderkrippe, Wettbewerb 1. Rang

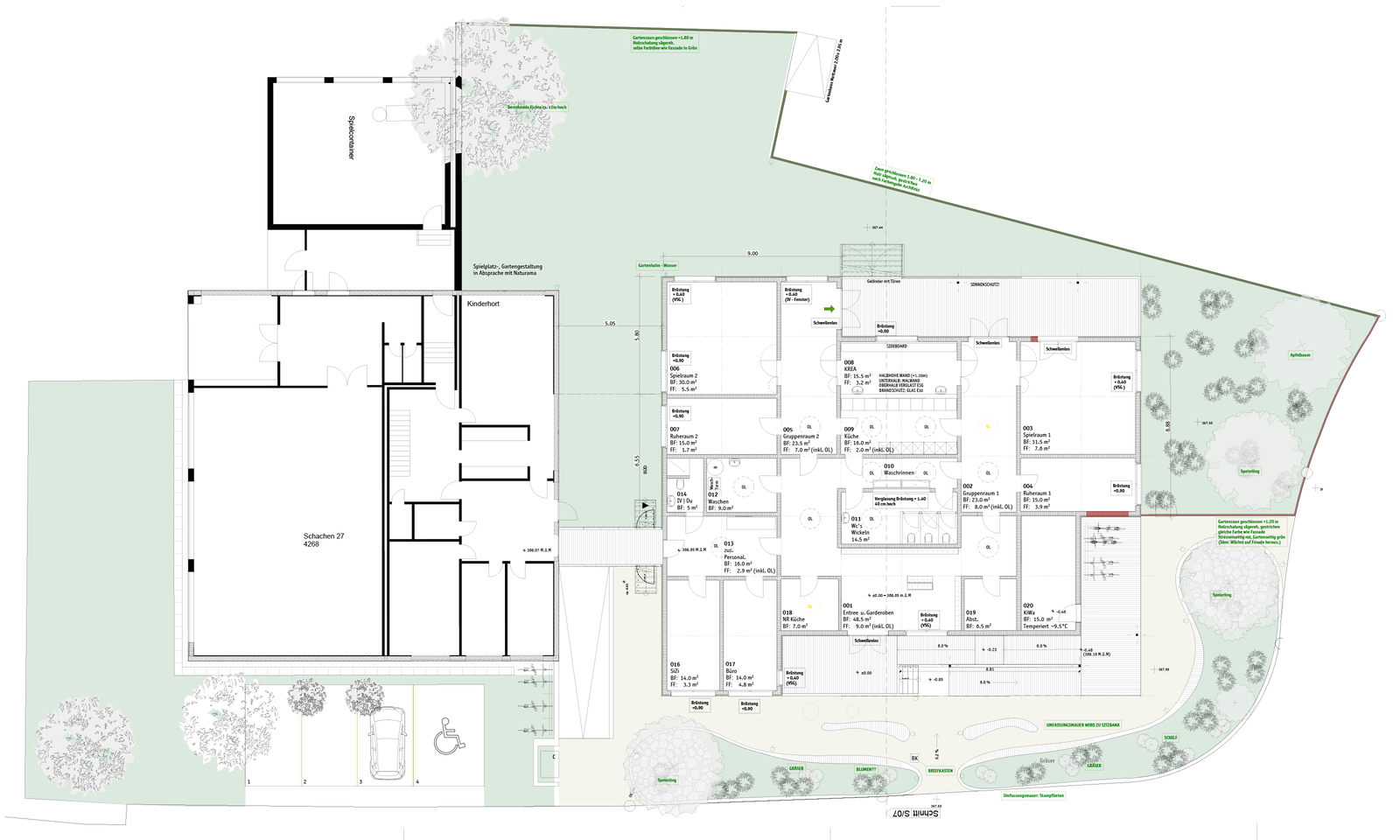
Im Aarauer Schachen, am Rande des Primarschulareals, liegen Hort sowie familien- und schulergänzende Tagesstrukturen. Die Raumbedürfnisse werden mittels Sanierung der bestehenden Räumlichkeiten und einem Neubau befriedigt.

Die enge Terminvorgabe und der Wunsch, das Gebäude bei Bedarf umplatzieren zu können, führten zum Entscheid einen Holzelementbau zu produzieren.

Nach einer Machbarkeitsstudie und einem Planerwahlverfahren, startete die Planung im Dezember 2011. Nach der Baueingabe im Januar 2012 und der Generalunternehmersubmission im Februar 2012 erfolgte die Realisierung bereits im April 2012. Die effektive Bauzeit betrug von Juni - August lediglich 3 Monate.

Das Gebäude ist nach Minergie-Eco zertifiziert. Die – unter anderem – schadstoffarme Bauweise eignet sich insbesondere für Nutzungen mit Kindern. Sie hilft dank der vorgeschriebenen Lüftung auch mit, mögliche Restausdünstungen der Baustoffe abzuführen, die der kurzen Bauzeit geschuldet sind.

Mit je einem grossen Einschnitt im fast quadratischen, eingeschossigen Baukörper reagiert dieser auf den Strassenraum und auf die Vernetzung mit der Umgebung.

Auftraggeber:Einwohnergemeinde Aarau
Fotografie: Goran Potkonjak
Fotografie: Goran Potkonjak
Fotografie: Goran Potkonjak
Fotografie: Goran Potkonjak
Fotografie: Goran Potkonjak
Fotografie: Goran Potkonjak
Fotografie: Goran Potkonjak
Fotografie: Goran Potkonjak
Fotografie: Goran Potkonjak
Fotografie: Goran Potkonjak
Fotografie: Goran Potkonjak
Fotografie: Philipp Husistein
Farbkonzept
Umgebungsplan
Schwarzplan