MIRLO WW – Rupperswil AG

Wohnüberbauung am Amselweg, Wettbewerb 1. Rang

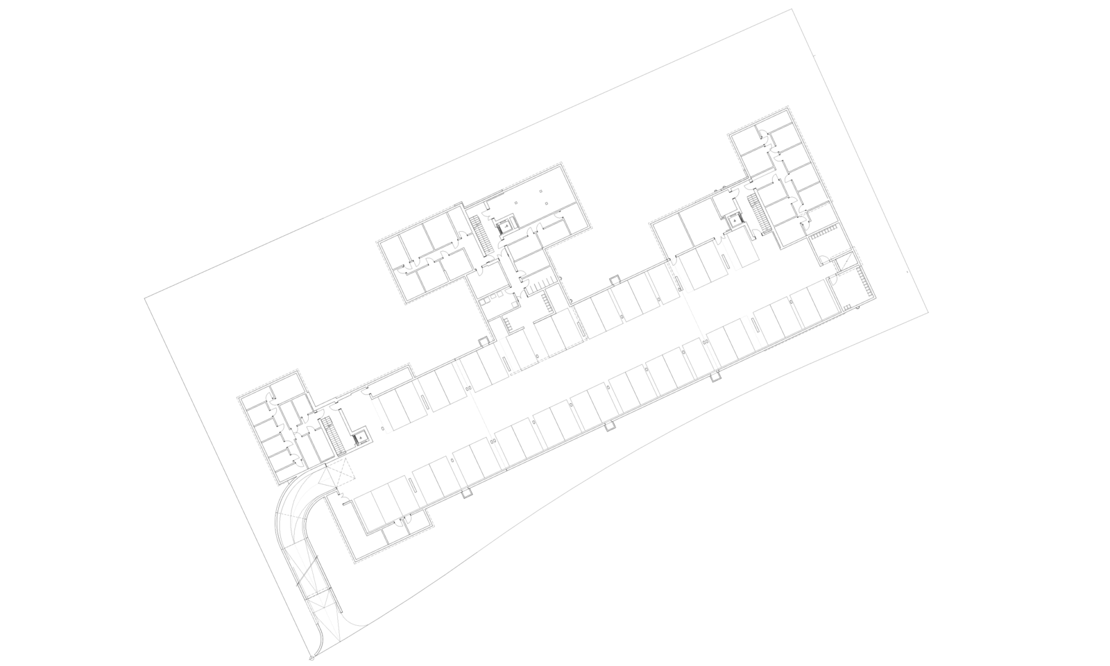
Im neu erschlossenen Gebiet Amselweg / Breechli gelegen, ist das Grundstück umgeben von einer heterogenen Struktur neuerer und älterer Mehrfamilienhäuser. Im engeren Umfeld herrscht ein gewisser Mangel an identitätsstiftenden Elementen. Die Siedlung muss gewissermassen eigenständig sein und die Identität selber erzeugen. Drei Häuser, allesamt dreiflügelig, bilden eine Mitte, die sich mit dem Umfeld eng verknüpft. Die Vernetzung erfolgt über differenzierte funktionale Aussenräume: von der Quartierstrasse über die privaten Gärten bis hin zum Aareraum.

Die drei Gebäude sind schachbrettartig zueinander angeordnet. So werden Durchblicke ermöglicht und jede Wohneinheit kann von grosszügigen Blickachsen profitieren. Dank des dreiflügeligen und dreibündigen Konzepts, können die Wohnungen flexibel auf die jeweilige Ausrichtung und gewünschten Bedürfnisse zugeschnitten werden.

Das Leitthema für die Gestaltung des Aussenraumes sind die privaten Bereiche der erdgeschossigen Wohnungen. Diese Nutzschicht bildet quasi einen Filter zu den Gebäuden und scheidet fast beiläufig das Wegenetz aus. Die grösseren Zwischenräume dienen der Ankunft und Parkierung oder sind als Spielplatz und Begegnungsbereich ausgestaltet.

Auftraggeber:Grundmann Bau AG, Kellermüller Partner AG
Fotografie Goran Potkonjak
Fotografie Goran Potkonjak
Fotografie Goran Potkonjak
Fotografie Goran Potkonjak
Fotografie Goran Potkonjak
Fotografie Goran Potkonjak
Fotografie Goran Potkonjak
Fotografie Goran Potkonjak
Fotografie Goran Potkonjak
Fotografie Goran Potkonjak
Fotografie Goran Potkonjak
Fotografie Goran Potkonjak
Fotografie Goran Potkonjak
Fotografie Goran Potkonjak
Fotografie Goran Potkonjak
Fotografie Goran Potkonjak
Rohbau April 2018, Fotografie Goran Potkonjak
Rohbau April 2018, Fotografie Goran Potkonjak
Rohbau April 2018, Fotografie Goran Potkonjak
Fotografie Goran Potkonjak
Fotografie Goran Potkonjak
Fotografie Goran Potkonjak
Fotografie Goran Potkonjak
Baustelle November 2017, Fotografie Goran Potkonjak
Baustelle November 2017, Fotografie Goran Potkonjak
Baustelle Juni 2017, Fotografie Goran Potkonjak
Baustelle Mai 2017, Fotografie Goran Potkonjak
Aussenperspektive, Visualisierung www.swissinteractive.ch
Entwurfsschritte
Landschaftskonzept
Situationsplan
Erdgeschoss
1. Obergeschoss
Attikageschoss
Untergeschoss
Ansicht West
Schnitt
Varianten 1
Varianten 2