TRAFO2 WW – Baden

Hotel, Wohnen und Einkaufen im Trafo, Wettbewerb

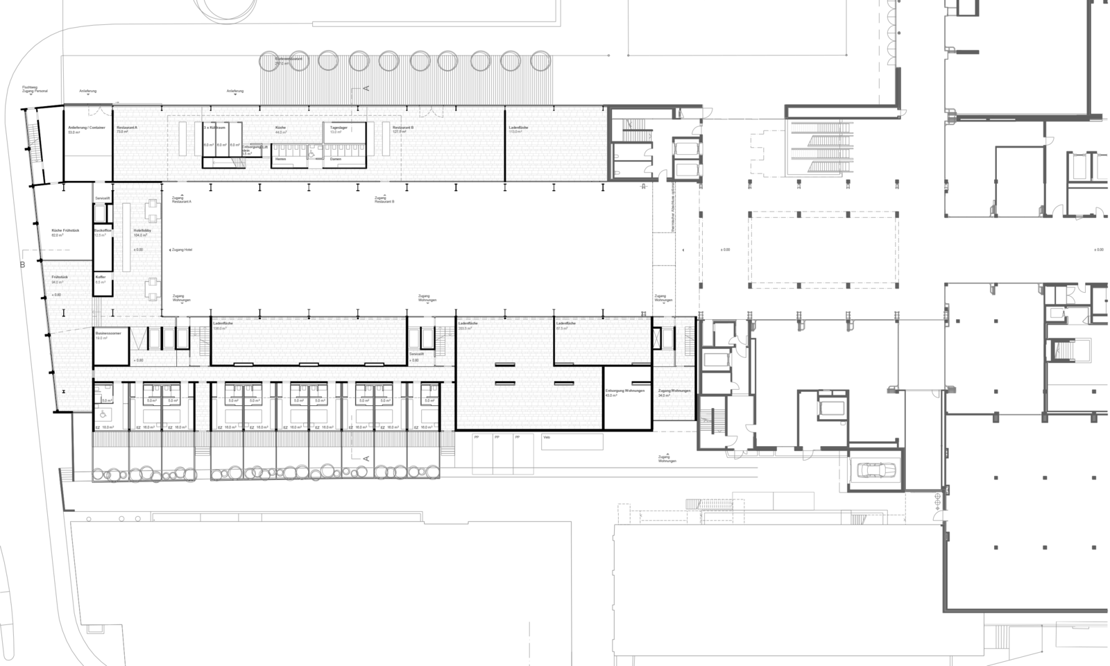
Die Umnutzung der Hallen 36, 37 und 38 hat – dank ihrer grossen Dimension – das Potential, die Mall zu bevölkern, den TRAFO zu beleben und Baden Nord einen weiteren Impuls zu verleihen. Patchworkartig wird auf dem Areal seit jeher gebaut, und entwickelt. Die Fügungen erfolgten dabei nicht nur in horizontaler Abfolge sondern auch in vertikaler Schichtung. Die Nutzung für die Hallen 36, 37 und 38 beinhaltet schwergewichtig zwei Teile: öffentliche Bereiche für Gastronomie, Läden und Veranstaltungen sowie privatere Bereiche für Wohnen und wohnnahe Nutzungen wie Hotel und Hotelwohnungen. Die unterschiedlichen Nutzungen sind ablesbar. Mit kleinen volumetrischen Massnahmen wird der Körper gegliedert, die differenzierte Individualisierung unterstützt die Massnahme. Der Neubau wendet die Mischbauweise von Stahl, Glas und gestrichenem Beton des Bestandes weiterhin an.

Auftraggeber:Baugesellschaft Trafo II, Baden
Nordfassade, Visualisierung Husistein & Partner AG
Erdgeschoss
Ansicht
5. Obergeschoss
Querschnitt
Ansicht
Schema
Nutzung
1. Obergeschoss
Visualisierung Husistein & Partner AG
Hotelzimmer, Visualisierung Husistein & Partner AG