SOLO WW – Solothurn

Doppelturnhalle und Lehrschwimmbecken, Wettbewerb

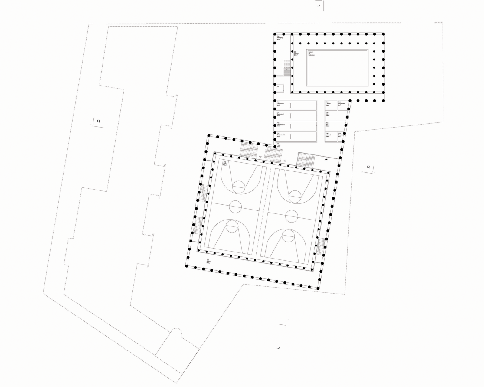
Zu Gunsten einer angemessenen städtebaulichen Ordnung, einer guten Nutzbarkeit der Hofflächen und einer adäquaten aussenräumlichen Gestaltung sind die gebäude vollständig ins Terrain abgesenkt. Definiert durch doppelte Säulenreihen liegen die Hallen in den von Bohrpfählen gesicherten Volumina.

Auftraggeber:Stadt Solothurn
Perspektive
Perspektive
Querschnitt
Situationsplan
2. Untergeschoss
Erdgeschoss (Schematisch)
Schnitt (Schematisch)
Schnitt (Schematisch)