RAIFF WW – Gansingen

Der Hauptsitz der Raiffeisenbanken, Wettbewerb

Der bestehende Hauptsitz der Raiffeisenbanken im Mettauertal wird nutzungsgerecht umgebaut. Ein möglicher Rückbau in eine Geschäftsstelle mit Drittnutzung wird dabei berücksichtigt.

Lesbarkeit

Die Bank befindet sich in einem ländlichen Dorfzentrum. Formal spielt sie mit den typischen Bauformen der Nachbargebäude und bringt durch ihre Reduktion in der Form das Wesentliche daran zu Tage.

Die frei gesetzten Fenster, welche die innere Struktur abbilden, verhelfen dem strengen Körper zu einer agilen Ausstrahlung. Die grossen Fensteröffnungen nehmen zum Äusseren Bezug, der Innenraum wird zum offenen Raumkontinuum. Die Nutzungen der oberen Geschosse sind im Innenraum als eingebettete Körper lesbar.

Das Gebäude dient nach dem Umbau vollständig der Banknutzung. Die Räume und Raumbeziehungen sind so disponiert, dass bei einer allfälligen späteren Reduktion der Geschäftsstelle alle Banknutzungen im Erdgeschoss angeordnet werden können.

Das integrale Haustechnikkonzept und die Zertifizierung nach ECO-Standard stellen ein gutes Innenraumklima sicher.

Auftraggeber:Raiffeisen Bank
Visualisierung: Maaars
Ansicht Nord-Ost
Ansicht Nord-West
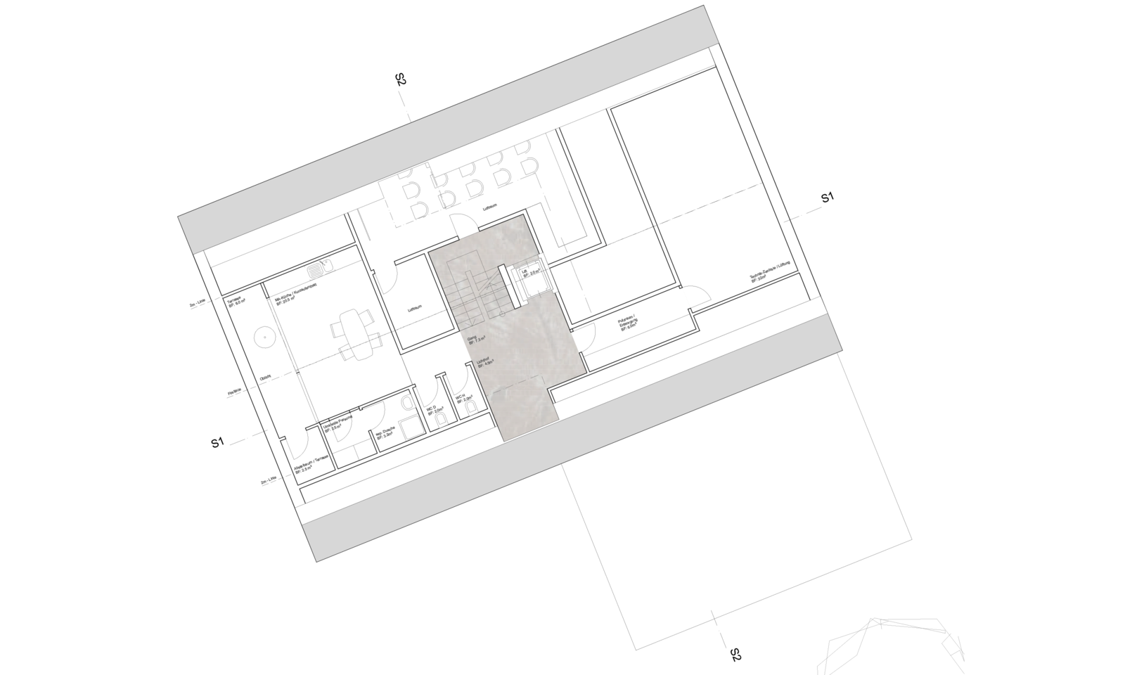
1. Obergeschoss
2. Obergeschoss
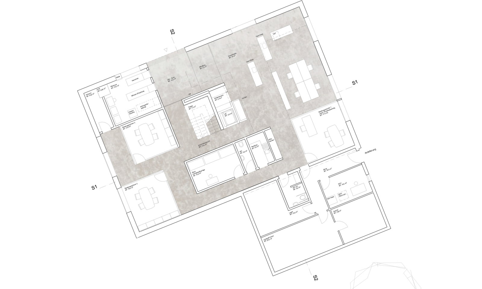
Erdgeschoss
Querschnitt
Situationsplan
Visualisierung: Maaars
Visualisierung: Maaars
Erdgeschoss mit Umgebung