HIRS WW – Aarau

Erweiterung von Hirslanden Klinik, Wettbewerb 4. Rang

Das historische Ensemble am Viehmarktplatz galt je her als beliebter Treffpunkt. Nicht nur die längst etablierten Restaurants bestätigen diesen Eindruck, sondern auch die bedeutende Stellung im Freiraumentwicklungskonzept der Stadt Aarau.
Der Spitalneubau steht im direkten Bezug zum Viehmarkt und positioniert sich klar als Teil der privilegierten Lage an den Pforten zur Stadt. Der grosszügige Vorplatz der Spitalwelt versteht sich nicht nur als Freiraum für Patienten, Ärzte und Besucher, sondern auch als Beitrag und Identitätsstiftender des Viehmarktes.

Das neue Haus C verfügt einerseits über adressbildende Alleinstellungsmerkmale, andererseits hat es eine wichtige integrative Funktion für die heutigen Bebauungen der «Hirslanden Klinik Aarau», sowie eine scharnierbildende Lage zum «Kern-Areal».


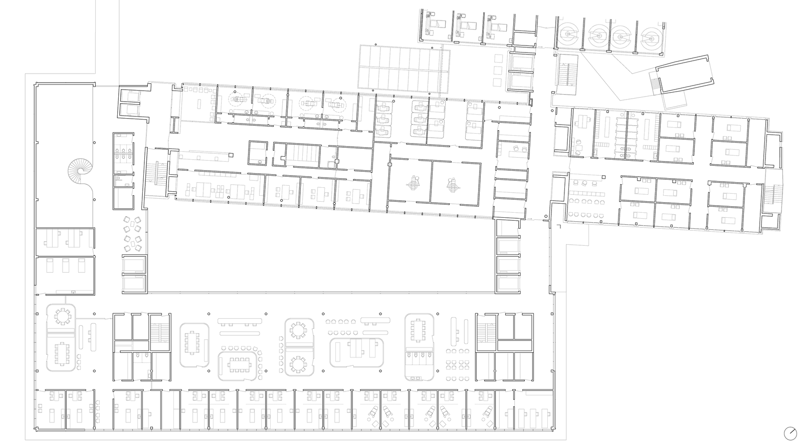
Der Winkelbau hat Nutzflächen nach Südosten und nach Nordwesten. Reine Erschliessungsbauwerke werden so minimiert, Verkehrswege verkürzt und Flächenverhältnisse optimiert. Zu Gunsten einer guten Belichtung und guten Nutzbarkeit sind die Grundrisse von eher schlanker Natur. Eine Raumschicht schliesst in der Regel einseitig vollständig an die Fassade an, die andere Seite (meist entlang des Hofes) dient zur Belichtung der Raumtiefe und zur Erschliessung. Die Verkehrswege mäandrieren zwischen den beiden Seiten und führen zu gut nutzbaren, angenehm proportionierten und spannenden Räumen und Nischensituationen.
Das Gebäude wird strukturell in einer Stützen-Decken-Bauweise errichtet, damit wird eine maximale planerische und nutzungsmässige Flexibilität erreicht.

Horizontale, bänderförmige Lamellen prägen primär den Ausdruck des neuen Kopfbaus. Die Fassade in zweiter Schicht erhält dadurch mehr Freiheitsgrade, geschlossene und offene Teile können frei kombiniert werden. Die opaken Bauteile sind in vorfabriziertem Beton vorgesehen, die verglasten Bauteile sind passend zum Raster normale Fensterelemente mit Brüstungsanteil.

Visualisierung: Maaars
Visualisierung: Maaars
Visualisierung: Maaars
Visualisierung: Maaars
Visualisierung: Maaars
Fotografie
Situationsplan
Verkehrsschema
Abteilungen und interner Verkehr
Eingangsschema
Axonometrie Bestand und Neubau
Dachaufsicht
1. Obergeschoss
2. Obergeschoss
Ärztezentrum
Bettenzimmer Frauenklinik
Ansicht Nord-West
Innenhof
Modell
Bestehend
Jahr 2020
Jahr 2030
Jahr 2050