IDEAL WW – Aarau

Architektur Wettbewerb Ersatzneubau Kasino Ideal Aarau

Der Ersatzneubau vom Kasino Ideal ist sowohl als einzelner klarer Bau, sowie auch in seinen einzelnen Teilen erkennbar. Das Gebäude wird in Massivbauweise erstellt und hat eine Fassade mit vorgehängten Faserzementelementen. An der Kasinostrasse orientiert sich der Neubau an der Höhe vom Bestand des Zeilenbaus und markiert mit dem Flachdach den Abschluss von der Zeile und den Eingang zum Platz. Zum Platz hin entwickelt das Gebäude seine volle Höhe. Vom auskragenden Gebäudekörper wird der Platz zusammen mit den denkmalgeschützten Bestandesbauten sowie dem Aufgang vom Kasernen-Parking, welcher den Platz bereits aktiviert, gefasst.

Zusammen mit dem Überhang auf der Nordseite und dem höheren Kopfbau an der Kasinostrasse, wurde die Ausnutzung optimiert. Durch Teilaktivierung von Gewerbeflächen im UG wurde der oberirdische Wohnanteil optimiert. Dadurch wird gekonnt auf die unterschiedlichen Städtebaulichen Situationen eingegangen und ein Städtebaulicher sowie wirtschaftlicher Körper geschaffen.

An der Kasinostrasse mit hoher Laufkundschaft ist ein Gastrobetrieb über zwei Geschosse geplant. Vom Platz erschlossen, erstrecken sich flexibel unterteilbare Retailflächen über EG und UG. Die Vertikal-Erschliessungen von Gewerbe und Wohnen ist getrennt geführt. Der Hauseingang befindet sich an der Ostfassade. Vom Treppenhaus werden bis zu 7 Wohnungen pro Geschoss erschlossen. Durch Anordnung der grösseren Wohnungen im Norden und Süden wird das Treppenhaus flächeneffizient. Dazwischen befinden sich primär die 1,5 Zimmer Wohnungen. Durch die Ausrichtung der Balkone bekommen diese ein Südlicht in die Wohnung. Zudem kann die Küche/Arbeitsnische von dem Erschliessungskern aus zusätzlich natürlich belichtet werden. Das Treppenhaus an der Brandmauer ist durch drei Lufträume und zenitale Belichtung Lichtdurchflutet.

Auftraggeber:Senda Immobilien AG, Zug
Visualisierung www.obra.ch
Schwarzplan
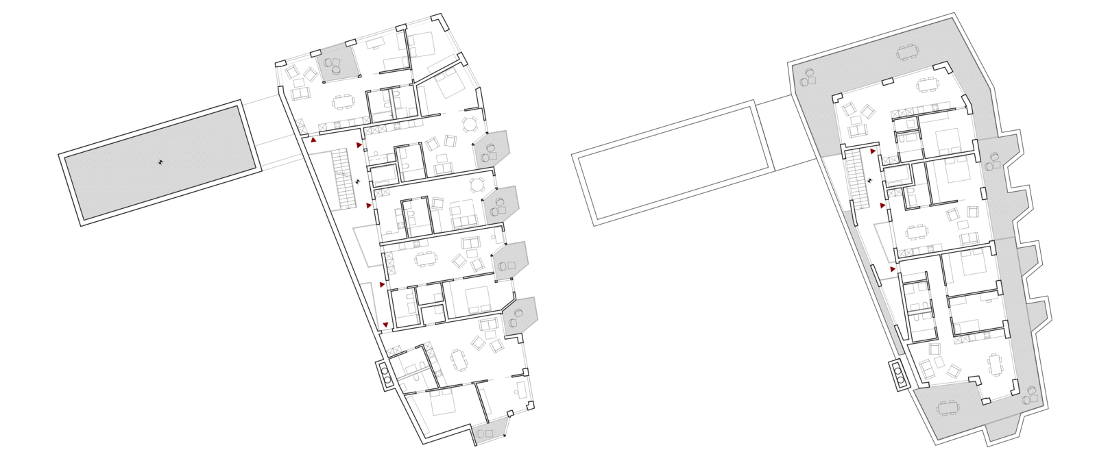
1. Obergeschoss, 2. Obergeschoss
3. Obergeschoss, 4. Obergeschoss
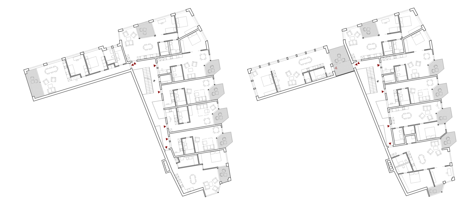
5. Obergeschoss, 6. Obergeschoss
Möblierte Wohnungsgrundrisse
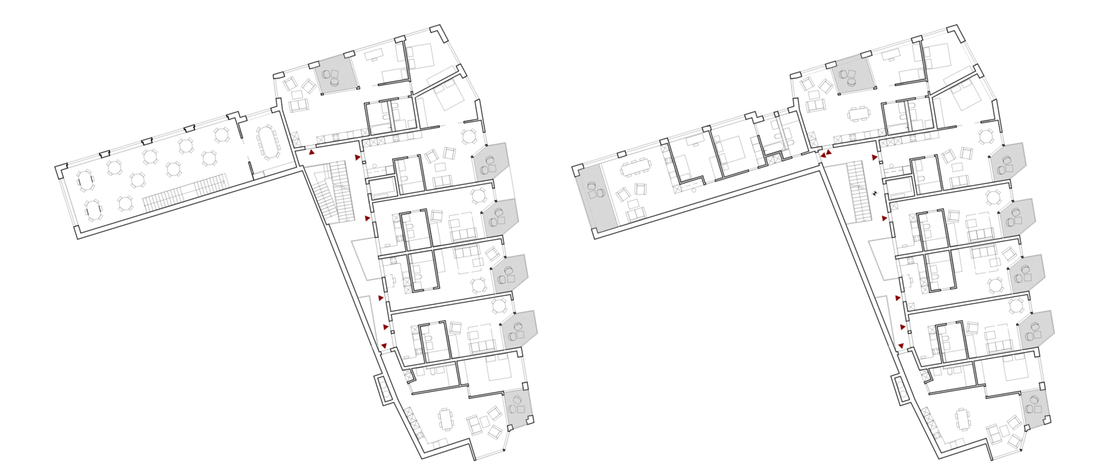
Untergeschoss, Erdgeschoss
Ansicht Nord
Ansicht West
Ansicht Ost
Perspektive Platz und Nord-Ost
Schnitte 1
Schnitte 2
Schnitte 3