OLUK_S – Oberlunkhofen

Städtebaulich kommunale Konzeptstudie

Das Andermatt-Areal befindet sich im Zentrum von Oberlunkhofen an der Zürcherstrasse und soll gesamtheitlich, auf die übergeordneten Planungen und Studien abgestimmt, entwickelt werden. Basierend auf den Resultaten der Testplanung von 2014 wurden die städtebaulichen Setzungen in Hinblick auf den Gestaltungsplan und die Projektierung für das Andermatt-Areal definiert. Künftig soll die Gemeinde einen attraktiven und belebten Dorfkern erhalten.

Die angrenzende Zürcherstrasse ist besonders vom Durchgangsverkehr betroffen, was die Aufenthaltsqualität sowie die Ausstrahlungskraft erheblich beeinträchtigt. Dieses wichtige Vernetzungsglied soll bis hin zur Einmündung in die Zugerstrasse mit in die Planung einbezogen werden.

Die Hauptachse des Andermatt-Areals bildet die neue verkehrsberuhigte Verbindung sowie Begegnungszone zwischen altem Dorfkern und Schulanlage. Sie soll ein Erlebnis- und Aufenthaltsort für den Fuss- und Radverkehr werden. Die Zone wird als Mischverkehrsfläche ausgebildet, punktuell sind Anlieferung und vereinzelte oberirdische Parkfelder möglich. Grünbereiche, Einzelbäume und Sitzflächen prägen die Achse, entlang derer auf 6 Baufeldern die neuen Gebäude der Überbauung entstehen.

Die Gebäude des Richtprojektes werden entlang der Hauptachse als Punktbauten ausgebildet und orientieren sich in ihrer Höhe am stark vom Norden nach Süden abfallenden Terrainverlauf. Die Einzelbauten werden städtebaulich aufeinander abgestimmt und mit Wohnungen sowie Dienstleistung und Gewerbe durchmischt. Eine wichtige Nutzung für die Planung stellt das «Wohnen im Alter» dar. Das Ziel: Hier leben Jung und Alt in Miete und Eigentum neben- und miteinander.

Auftraggeber:Gemeinde Oberlunkhofen
Perspektive
Nutzungsverteilung Perspektive I
Nutzungsverteilung Perspektive II
Situationsplan
Attikageschoss Haus I, II
Erdgeschoss Haus III, IV, V
1. Obergeschoss Haus III, IV, V
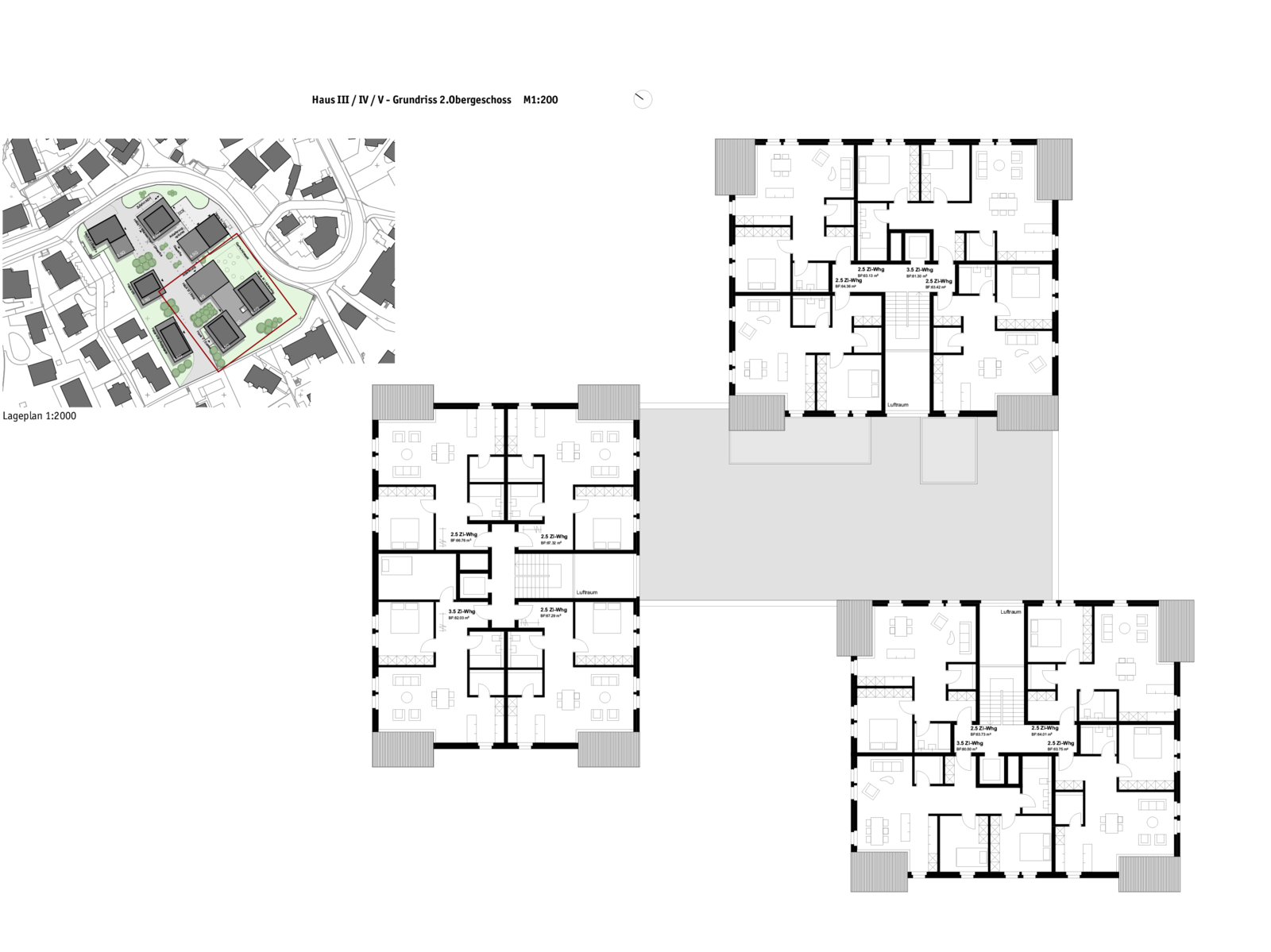
2. Obergeschoss Haus III, IV, V
3. Obergeschoss Haus III, IV, V
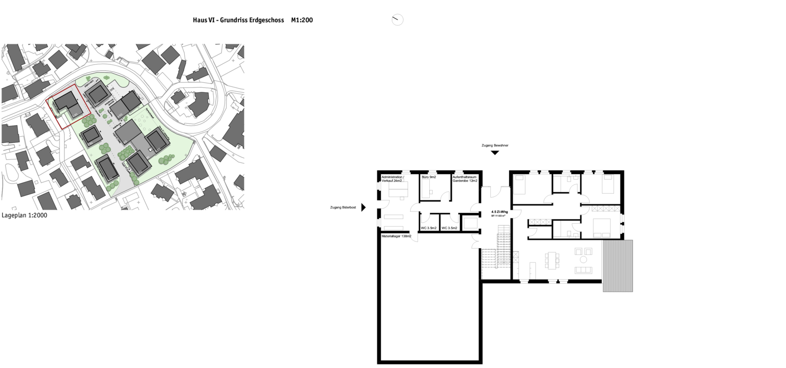
Erdgeschoss Haus VI
1. und 2. Obergeschoss Haus VI
Modellfoto
Modellfoto
Luftaufnahme