DULLI – Dulliken

Arealüberbauung Neumatt, Studie 1. Rang

Das Grundstück zwischen Bahnhofstrasse und Langmatt wird durch die Verlängerung der Bodenackerstrasse neu arrondiert. Die Bodenackerstrasse markiert damit neu die Schnittstelle zwischen kleinteiligen und grösseren Strukturen. Vorhanden sind hierbei ostseitig das Gebäude des ehemaligen Konsumvereins (heute Denner) und westseitig die Einkaufsmöglichkeiten rund um den Coop. Damit wird das zu beplanende Areal sowohl nutzungsmässig als auch strukturell Teil der grossvolumigen Bebauungen, die über eine gute MIV- und ÖV-Anbindung verfügen.

Als Akzentuierung zum Bahnhof ist eine Höhenentwicklung in Richtung Niederämterstrasse angezeigt. Zur Adressbildung (sowohl «nach aussen» zur Niederämterstrasse als auch «nach innen» ins Quartier) macht eine Grundrissgliederung der zukünftigen Bebauung Sinn. Die Gliederung erlaubt räumliche Bezüge zu den angrenzenden Häusern und hierarchisiert die Aussen- und Freiräume; die Strassenräume werden rhythmisiert und einer «Korridorwirkung» wird so entgegengewirkt. Last but not least resultiert aus der Gliederung eine grössere Fassadenabwicklung, die der Wohnnutzung in den oberen Geschossen dient. In der Höhenentwicklung wird die Bebauung gestaffelt, damit so orts-baulich auf die unterschiedlichen Situationen reagiert werden kann.

Je nachdem, ob die angrenzenden Parzellen einbezogen werden, ergeben sich leicht unterschiedliche Proportionen der Volumina. Zusammenfassend kann festgehalten werden, dass eine attraktive Bebauung in allen drei Varianten möglich ist. Tatsächlich ist jedoch eine Entwicklung des gesamten Areals sowohl ortsbezogen– insbesondere im Hinblick auf die Adressbildung – als auch ökonomisch (höhere Ausnutzungsziffer bei gleichzeitig großzügigeren Außenräumen) am sinnvollsten.

 

Auftraggeber:Privat
Visualisierung www.obra.ch
Modellfoto
Schwarzplan
Umgebungsplan
1. Obergeschoss
2. Obergeschoss
5. Obergeschoss
6 . Obergeschoss
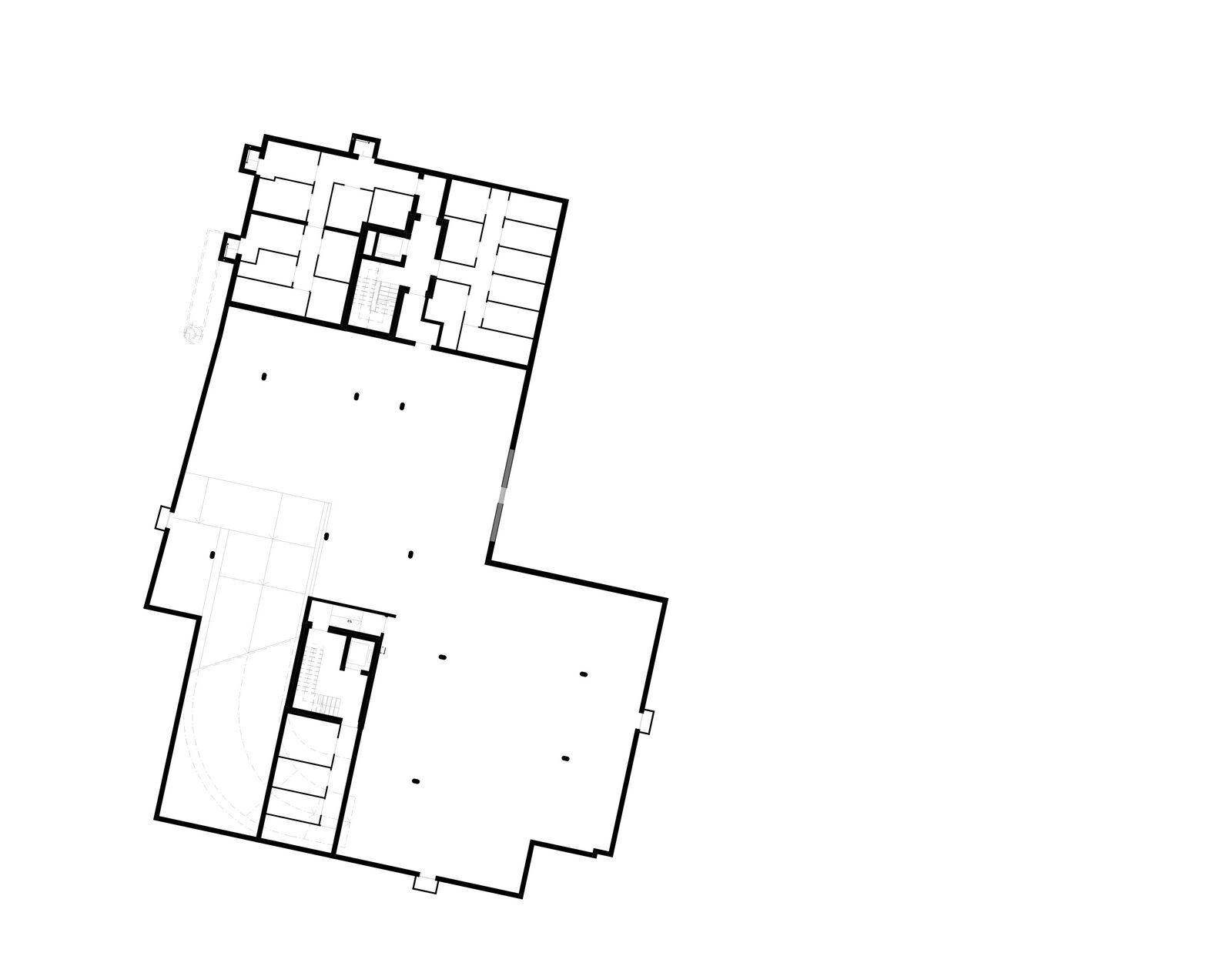
1. Untergeschoss
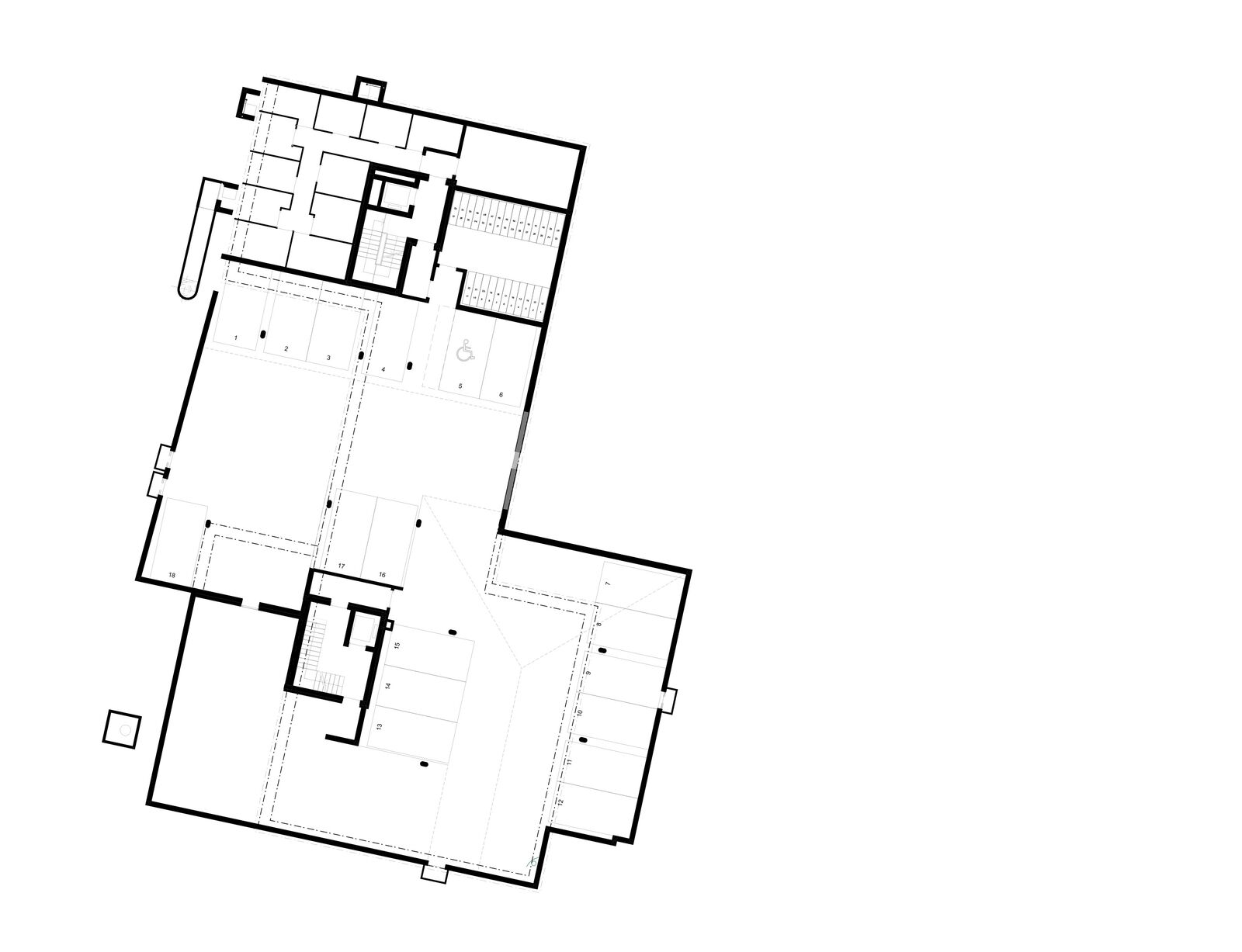
2. Untergeschoss
Ansicht Ost
Schnitt 1
Collage