FAERBI – Birrwil

Die Liegenschaften der ehemaligen Färberei Fehlmann in Birrwil sind Zeugen der Industrialisierung einer einst agrarisch geprägten Landschaft. Am Siedlungsrand gelegen, erzeugen sie eine für das Ortsbild spannende Dichte und markieren den prägnanten Siedlungsrand.

Das Areal lag seit langem brach, in den bestehenden Gebäuden haben sich teilweise Zwischennutzungen etabliert, eine intensivere Nutzung des Areals wurde lange – trotz bewilligtem Gestaltungsplan – nicht erreicht.

Um die Entwicklung in Gang zu setzen, wurde der bestehende Gestaltungsplan von uns erneuert. Neben der volumengeschützten Shedhalle und der bestehenden ehemaligen Fabrik, umfasste das Programm auch den Neubau von Mehrfamilienhäusern.

Die Wege auf dem Areal führen vorbei an Erinnerungsorten wie dem Hochkamin, der Villa im Park, der grossen Blutbuche, dem historischen Brunnen und der geschützten Shedhalle. Die identitätsstiftenden Elemente lassen die Industriegeschichte lesbar bleiben und bilden quasi das Rückgrat der Entwicklung. Entlang dieser Achse entstehen Gebäude und Siedlungsteile in verwandter aber unterschiedlicher Erscheinung und Prägung. Wir waren verantwortlich für die städtebauliche Planung, den Richtplan, den Gestaltungsplan und das Bauprojekt des Areals.

Auftraggeber:Privat
Foto Goran Potkonjak
Foto Goran Potkonjak
Foto Goran Potkonjak
Foto Goran Potkonjak
Schwarzplan
Modell
Foto Goran Potkonjak
Foto Goran Potkonjak
Luftbild
Perspektive
Modell
Modell
Modell
Modell
Modell
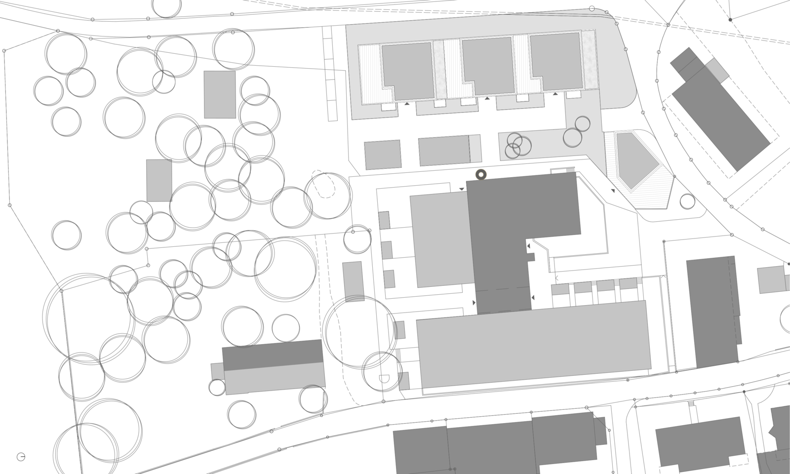
Situationsplan
Untergeschoss
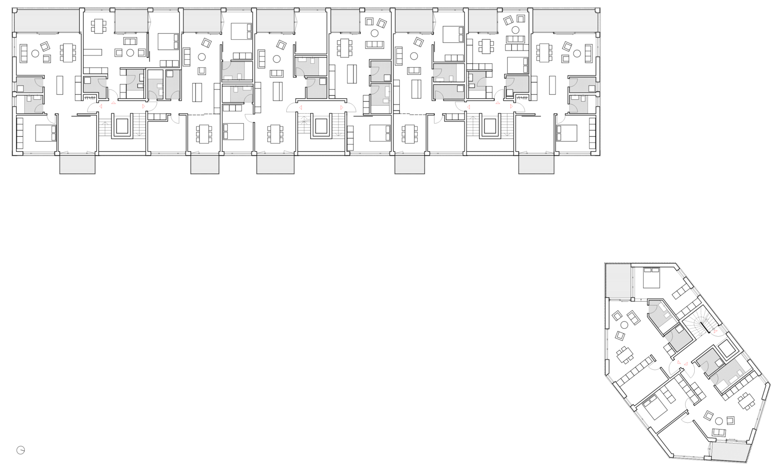
Erdgeschoss
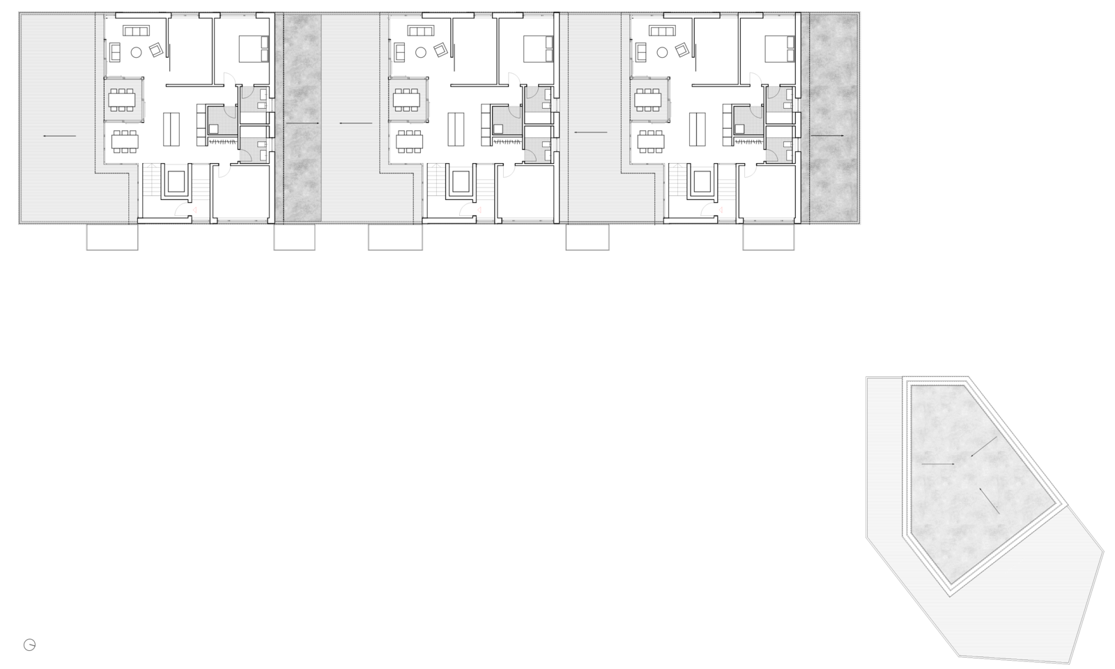
Regelgeschoss
Attikageschoss
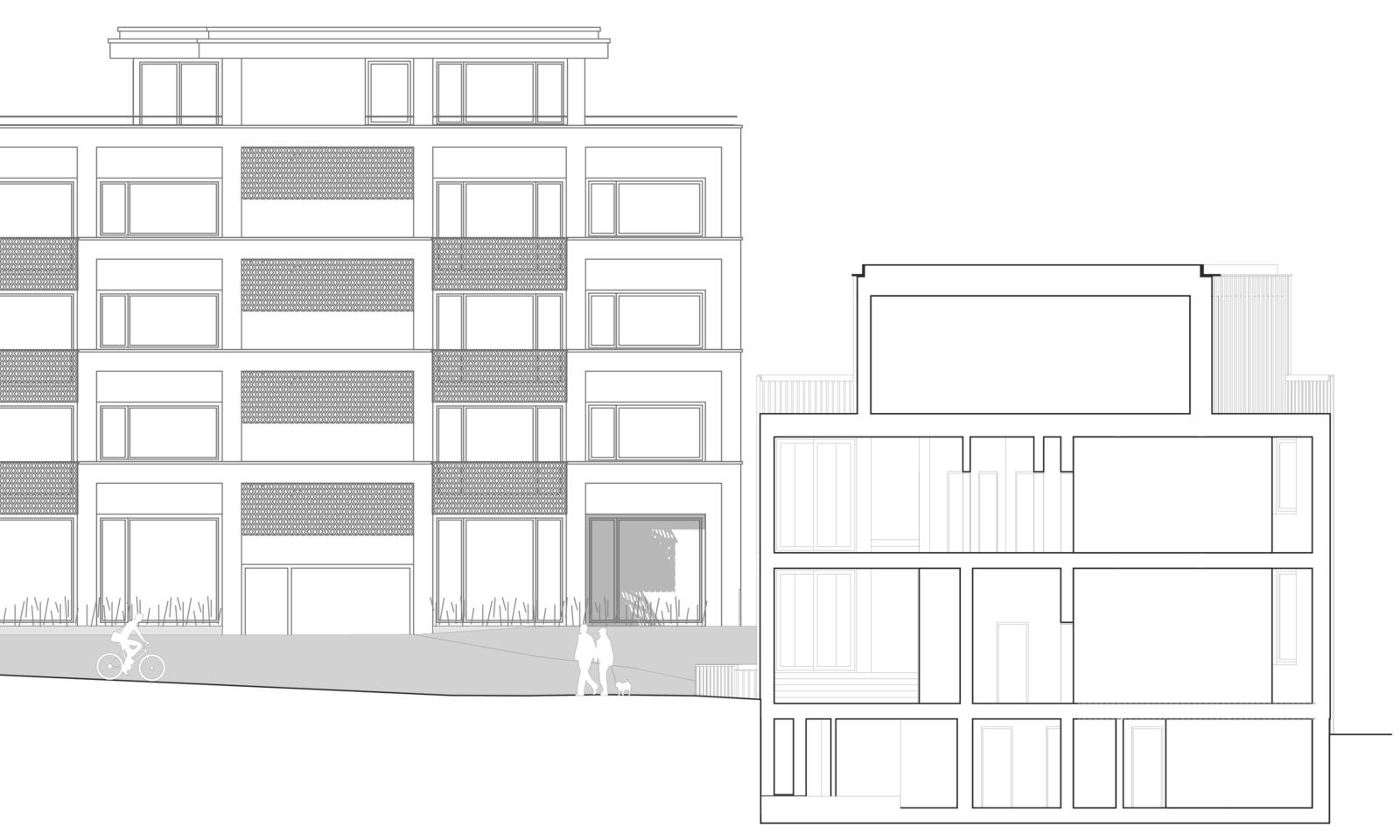
Querschnitt
Längsschnitt
Querschnitt
Ansicht Ost
Ansicht West
Ansicht Ost
Ansicht Nord
Westfassade Materialisierung
Fassade Materialisierung: Holzbau
Gestaltungsplan