KOWE – Aarau

Bürogebäude und Parkhaus im Telli-Ost

Die Parzellen liegen an der Weihermattstrasse, im Gebiet «Telli-Ost», in Aarau. In unmittelbarer Nachbarschaft an die Schule für Gestaltung und dem CH Media Gebäude gelegen. Gegen Süden liegt die Aaretalstrasse, die als wichtiger Zubringer der Stadt fungiert und von wo aus das Areal und das zukünftige neue Gebäude gut ersichtlich sein wird.

In diesem gewerblichen Umfeld projektieren wir den neuen Hauptsitz der weltweit tätigen Firma Swisslog. Daneben wird ein Parkhaus entstehen, welches die Bedürfnisse des Bürogebäudes abdeckt. Die Anforderungen an das Bürogebäude sollen zwei Ansprüchen genügen. Einerseits demjenigen der gewerblichen Nutzung, teils heute, aber auch in Zukunft. Andererseits soll ein ansprechendes, zeitgemässes und identitätsstiftendes Arbeitsumfeld realisiert werden. Eine sehr klare Aussenraumgestaltung ist das Resultat, die das Bürogebäude und das Parkhaus aufwertet und in die weitere Umgebung einbindet.

Das Konzept für das Bürogebäude sieht ein klares Volumen vor, welches sich selbstverständlich in die Umgebung einreiht und mit Einschnitten, auf unterschiedlichen Höhen, Bezug auf diese nimmt. Das fünfgeschossige Volumen wird so gegliedert und verfeinert, während dem Innenraum auf jeder Etage ein Aussenraum, mit individuellem Charakter, zugeordnet wird. Ein zweigeschossiger Eingangsbereich setzt einen klaren Akzent zur Weihermattstrasse und auf der obersten Ebene ist der Eventbereich mit grosszügiger Terrasse vorgesehen.
Diese Dynamik wird verstärkt durch die horizontalen Bänder, die allseitig um das Gebäude verlaufen und für die optimale Beschattung sorgen werden.

Die zugrundeliegende Fassade besteht aus Bandfenstern und geschlossenen Elementen, in gleichmässigem Rhythmus. Das ganze Gebäude wird dabei gleich behandelt, so dass das Gebäude als Ganzes wahrgenommen wird, welches die unterschiedlichen Situationen ganz selbstverständlich zulässt.

Auftraggeber:Koman Liegenschaften AG
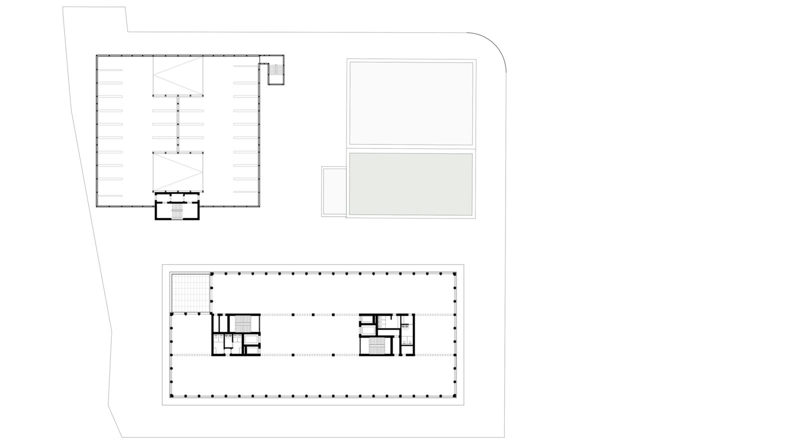
Schwarzplan
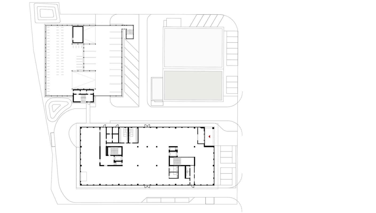
Umgebungsplan
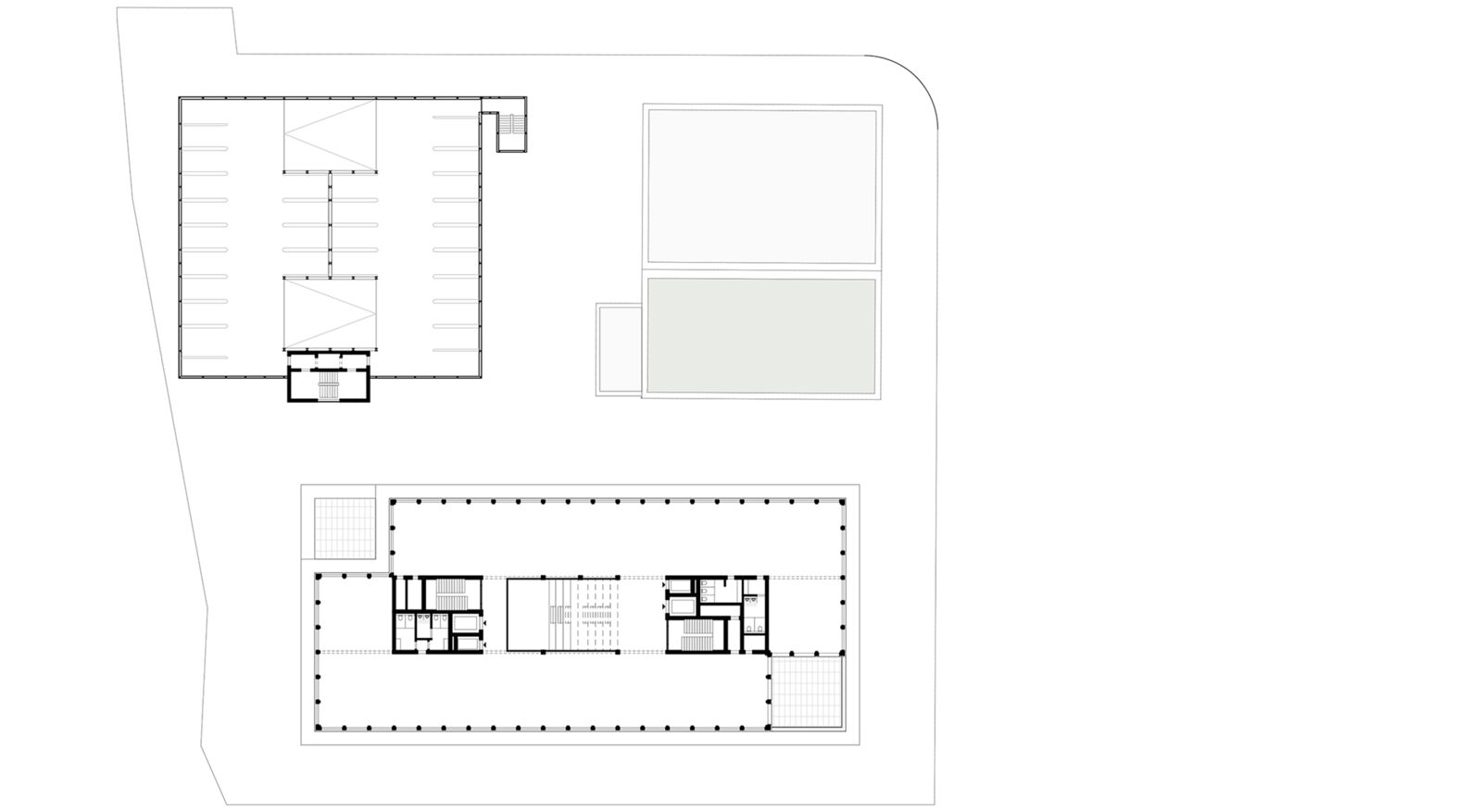
Erdgeschoss
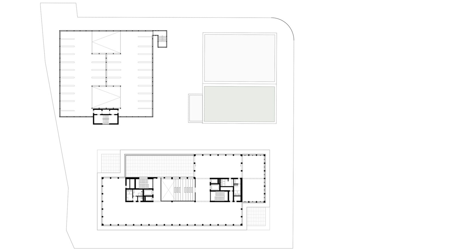
1. Obergeschoss
2. Obergeschoss
3. Obergeschoss
4. Obergeschoss
5. Obergeschoss
Dachaufsicht
Ansicht Nord
Ansicht Ost
Ansicht Süd
Ansicht West
Längsschnitt
Schnitt Bürogebäude
Fassade Bürogebäude
Fassade Parkhaus