KLING – Klingnau

Bauen zwischen Stadtmauer und Probstei

Das Grundstück – in früheren Jahren mit zwei steildachgedeckten Gebäuden bebaut – liegt im Sichtbereich des vom Torbogen gesäumten Hofes von Propstei und St. Blasier-Haus. Die neue Bebauung liegt aber ausserhalb der Umfassungsmauer der Propstei und ist damit wichtiger Teil des Strassenraumes der Unterstadtgasse und der städtischen Befestigung.

Die «zwei neuen Häuser» sind «ein Haus». Die vorgeschlagene Setzung nimmt Bezug auf die ursprüngliche Bebauung. Die längsrechteckige Proportion des Grundstückes unterstützt eine Lösung mit zwei Giebeln. Zum einen entstehen so attraktive, traufständige Gebäude zur Unterstadtgasse und zum anderen bleiben aber First und Traufe in einem verträglichen Mass bezüglich Altstadt und Propstei. In Grundriss und Höhe gegliedert verschmelzen die beiden Volumina aber letztlich zu einem Gebäude. Das optimiert die Nutzungsmöglichkeiten und die Erschliessung, nicht zuletzt ist es auch Merkmal einer Bebauung aus einem Guss und in einer Etappe. Das zweiteilige Schrägdach bindet sich «niedrig» in die Silhouette entlang der Stadtmauer ein. Der östliche Ausschnitt markiert den Zugang zum Gebäude und dient als Aussichtsterrasse.

Ikonographischen Charakter hat die Setzung des Städtchens mit Kirche und Schloss auf der Anhöhe. Die Propstei liegt südlich des Städtchens auf der Ebene rund acht Meter unter der Anhöhe. Das längliche, nach Westen spitz zulaufende Grundstück liegt an der Befestigung des Hangfusses. Die laterale Strasse wird partiell von Bauten gesäumt, zwischen Scheune und Propstei verläuft eine Hofmauer mit einer torartigen Öffnung zum Areal der Propstei. Östlich begrenzt eine Treppenanlage, welche die beiden Ebenen verbindet, die Parzelle.

Perspektive
Perspektive
Situationsplan
Analyse
Lageplan
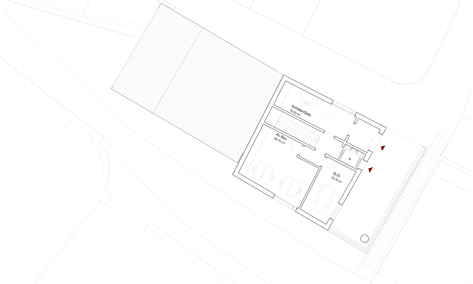
Erdgeschoss
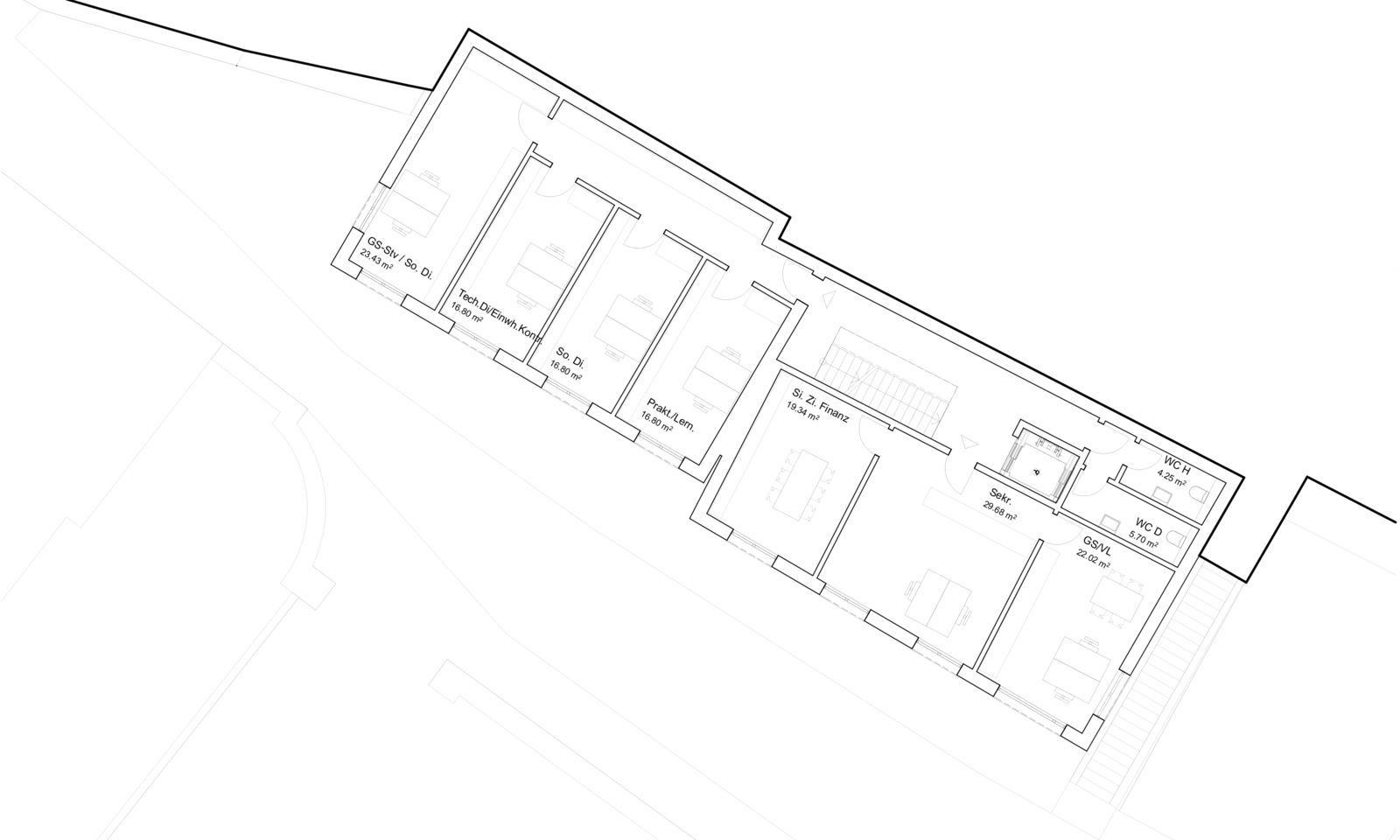
1. Obergeschoss
Grundriss 2. OG
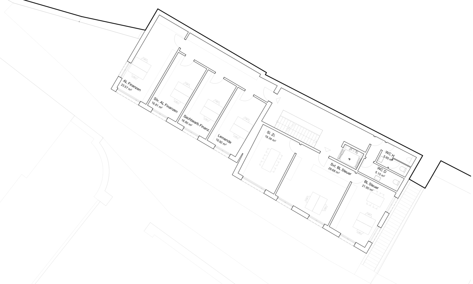
3. Obergeschoss
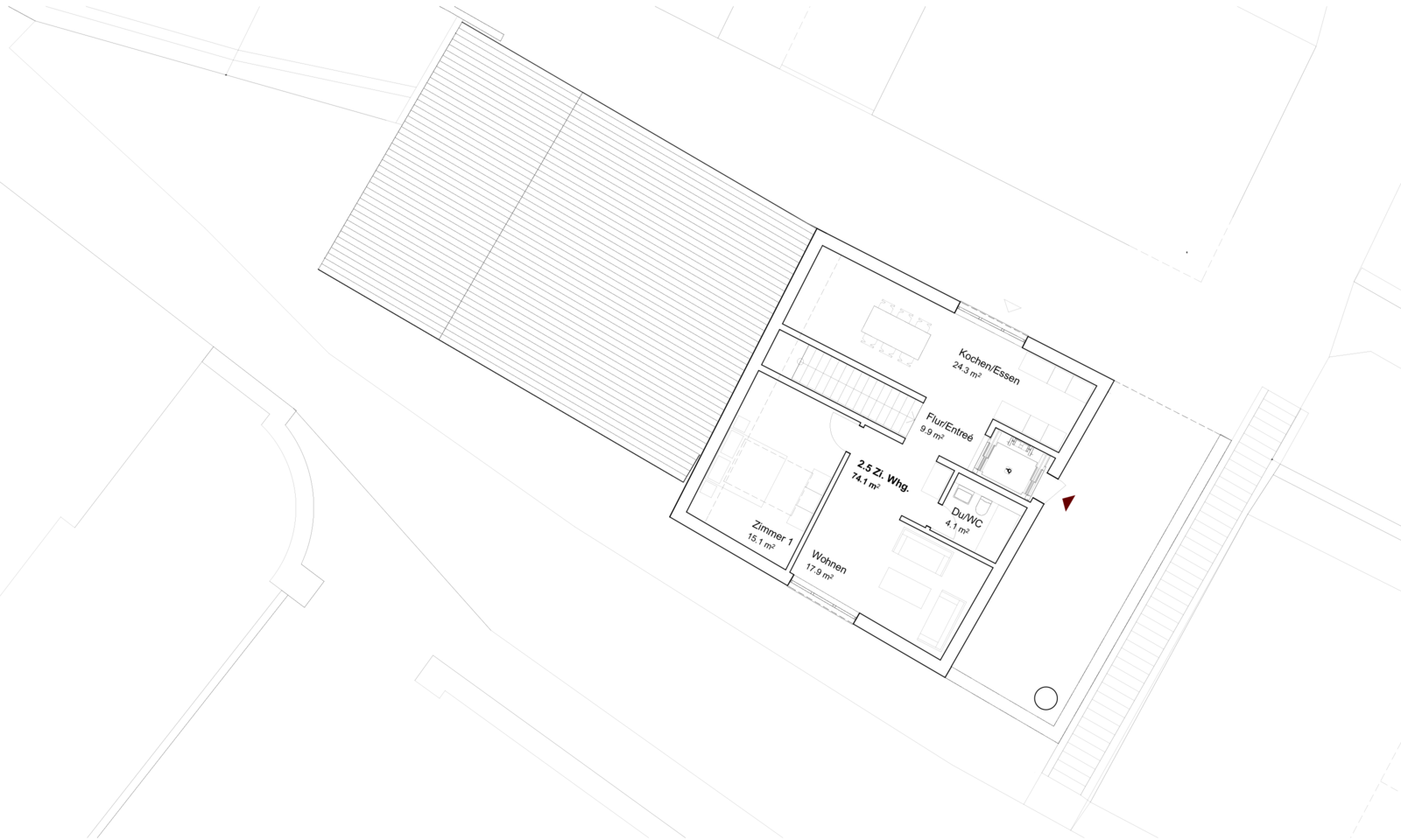
1. Obergeschoss, Variante mit Wohnungen
3. Obergeschoss, Variante mit Wohnungen
Längsschnitt
Querschnitt
Ansicht Süd-West
Ansicht Süd-Ost
Ansicht Nord-West
Ansicht Nord-Ost
Fassadenausschnitt